Godwin Curtis Ltd says ..
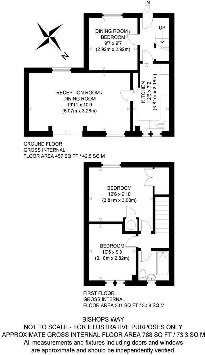
A very well presented three double bedroom extended end-of-terrace house, situated on a double-width plot and located in a sought-after cul-de-sac in St Dunstans within easy reach of Canterbury West railway station, the city centre, Blean Primary School and the University of Kent. The proper (cont.)
Property Oracle says ..
Therefore, we give this property 5 / 10. *Disclaimer: This is our option and does constitute a recommendation or financial advice. Do your own research. *
- Price
- 3
- Condition
- 5
- Location
- 7
- Land
- 7
- Bedrooms
- 3
- Bathrooms
- 1
- Sqft (est)
- 617.71
The heatmap indicates the level of crime in the area. The color of the heatmap indicates the crime severity and recency.
Metrics Year-on-Year
- Average area value
- 222,854.00 £Decreased by 15.77 %
- Est sale value
- 177,900.48 £Decreased by 6.19 %
- Average area rental value
- 1,201.00 £/moIncreased by 7.91 %
- Est letting value
- 617.71 £/moUnchanged by 0.00 %
- Est rental Yield
- 6.47 %Increased by 28.12 %
- Crime Rate
- 2.00 %Unchanged by 0.00 %
from 264,570.00 £
from 189,636.97 £
from 1,113.00 £/mo
from 617.71 £/mo
from 5.05 %
from 2.00 %
Agent Activity
Godwin Curtis Ltd created the listing.
Nearby Schools
| Name | Type | Ofsted | Distance |
|---|---|---|---|
| Bemix | Special Post 16 Institution | Requires improvement | 0.72 KM |
| The Canterbury Academy | Academy Converter | Good | 0.78 KM |
| The Canterbury Primary School | Academy Converter | Good | 1.08 KM |
| St Edmund'S School Canterbury | Other Independent School | 1.13 KM | |
| St Peter'S Methodist Primary School | Voluntary Controlled School | Good | 1.24 KM |
Images
Nearby Streets
| Name | Average Price | Average Sqft | Distance |
|---|---|---|---|
| St Dunstan's Close | £ 0 | 0 | 0.00 KM |
| Bishops Way | £ 0 | 0 | 0.00 KM |
| St. Mary's Court | £ 350,000 | 0 | 0.00 KM |
| Maynard Road | £ 0 | 0 | 0.00 KM |
| St. John's Court | £ 0 | 0 | 0.00 KM |
Nearby Transport
| Name | NLC | TLC | Distance |
|---|---|---|---|
| Canterbury West | 5007 | CBW | 0.95 KM |
| Canterbury East | 5164 | CBE | 1.54 KM |
| Chartham | 5008 | CRT | 6.18 KM |
| Sturry | 5029 | STU | 6.41 KM |
| Bekesbourne | 5198 | BKS | 8.16 KM |
Nearby Listings
| Address | Price | Type | Score | Distance |
|---|---|---|---|---|
| Bishops Way, Canterbury | £ 325,000 | BUY | 5 / 10 | 0.00 KM |
| Ramsey Close, Canterbury, CT2 8DL | £ 350,000 | BUY | Unknown | 0.12 KM |
| Ramsey Close, Canterbury | £ 370,000 | BUY | 6 / 10 | 0.12 KM |
| Somner Close, Canterbury | £ 350,000 | BUY | 6 / 10 | 0.13 KM |
| Ramsey Close, Canterbury, Kent, CT2 | £ 370,000 | BUY | 6 / 10 | 0.15 KM |
Nearby Properties
| Address | Price | Distance |
|---|---|---|
| 5 Westgate Court Avenue | £ 270,000 | 0.06 KM |
| 22 Somner Close | £ 242,000 | 0.09 KM |
| 38 Somner Close | £ 235,000 | 0.09 KM |
| 26 Somner Close | £ 225,000 | 0.09 KM |
| 8 Somner Close | £ 59,950 | 0.09 KM |