Littleham, Bideford
ST

Littleham, Bideford

By Stags

£ 1,650,000

Reviews

3 out of 5 stars

Stags says ..

An extensively refurbished and hugely successful holiday letting business with 5 bedroom period farmhouse in a tranquil location with outstanding views, close to the north Devon coast

Property Oracle says ..

This property in Littleham, Bideford, is a charming and spacious home situated in a tranquil rural setting. The property consists of multiple buildings, including a main house and what appears to be converted outbuildings. The interior is bright and airy, with a modern aesthetic. The kitchen features a prominent Aga range cooker, and the living areas are well-proportioned and benefit from natural light. The property boasts five bedrooms and three bathrooms, making it suitable for a large family or those who enjoy hosting guests. The extensive grounds offer a significant amount of land, providing ample space for outdoor activities and offering a high degree of privacy. The lack of nearby public transportation and the distance to schools may be considered drawbacks. The list price of £1,650,000 requires further investigation to determine its reasonableness in relation to comparable properties with similar features and plot sizes in the area. A precise plot size would be beneficial in determining the overall value. The property’s rural location and extensive grounds are major selling points, but potential buyers should carefully consider the implications of the distance to amenities.

Therefore, we give this property 6 / 10. *Disclaimer: This is our option and does constitute a recommendation or financial advice. Do your own research. *

Price
6
Condition
8
Location
4
Land
7
Bedrooms
5
Bathrooms
3
Sqft (est)
441.32

The heatmap indicates the level of crime in the area. The color of the heatmap indicates the crime severity and recency.

Metrics Year-on-Year

Average area value
346,250.00 £
Increased by 44.46 %
from 239,681.00 £
Est sale value
129,748.08 £
Decreased by 1.34 %
from 131,513.36 £
Average area rental value
785.00 £/mo
Decreased by 22.05 %
from 1,007.00 £/mo
Est letting value
0.00 £/mo
Decreased by 100.00 %
from 441.32 £/mo
Est rental Yield
2.72 %
Decreased by 46.03 %
from 5.04 %
Crime Rate
0.00 %
from 0.00 %

Agent Activity

  • Stags created the listing.

Nearby Schools

NameTypeOfstedDistance
Bideford CollegeAcademy Sponsor LedRequires improvement2.47 KM
West Croft SchoolCommunity SchoolRequires improvement2.69 KM
St Helen'S Church Of England SchoolAcademy Converter2.88 KM
Kingsley SchoolOther Independent School3.00 KM
St Mary'S Church Of England Primary SchoolVoluntary Controlled SchoolGood4.17 KM

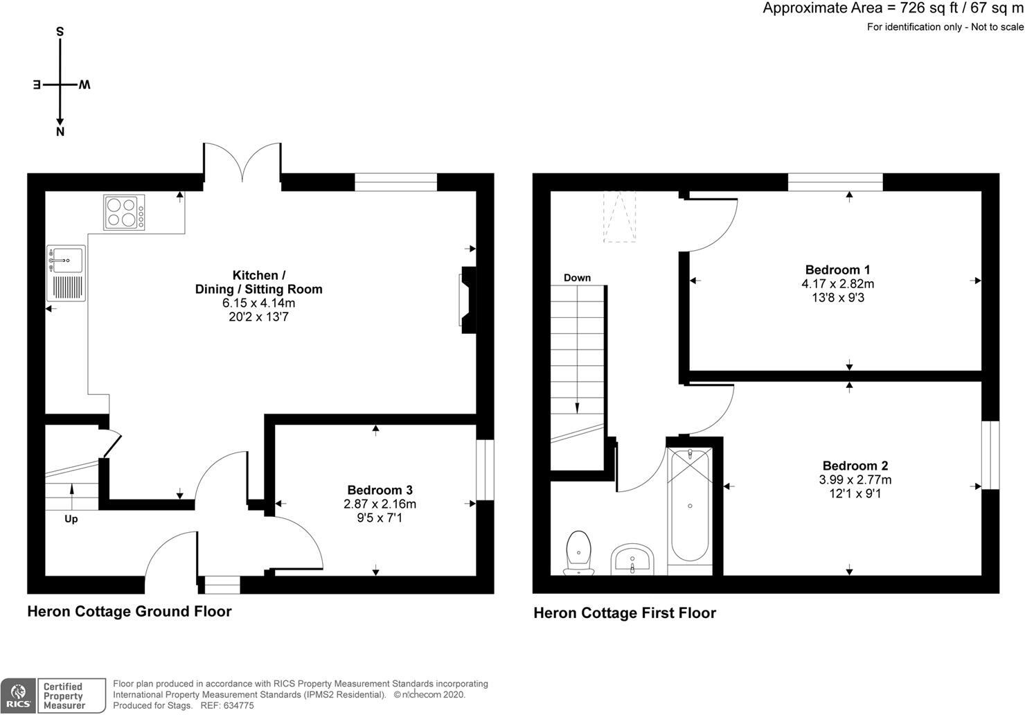
Images

Robin Hill Farm Robin Hill Farm Robin Hill Farm View Dog Proof Paddock Cottages Robin Hill Kitchen, Farmhouse Sitting Room Farmhouse Dining Room, Farmhouse Garden Room , Farmhouse Master Bedroom, Farmhouse Farmhouse, Bedroom 3 Family Bathroom (Farmhouse) Bedroom 5 (Farmhouse) Kingfisher Wren Cottage Puffin Cottage Heron cottage Gull Cottage Gull Cottage Twin Room Gull Cottage Robin Hill Farm Secure Dog Proof Paddock Bedroom 2, Ensuite (Farmhouse) Farmhouse Farmhouse Master Ensuite (Farmhouse) Bedroom 3 Ensuite (Farmhouse) Bedroom 2, Farmhouse Farmhouse Kitchen, Farmhouse Dining Room, Farmhouse Kitchen, Farmhouse Dining Room, Farmhouse Kitchen, Farmhouse Sitting Room, Farmhouse 1225456 (27).jpg Bedroom 3 Dining Room, Farmhouse Bedroom 5 Staircase, Farmhouse Farmhouse Garden Room , Farmhouse Dining Room, Farmhouse Bedroom, Farmhouse

Nearby Streets

NameAverage PriceAverage SqftDistance
App's Lane £ 000.00 KM
Council Cottages £ 425,00000.00 KM
Mount Pleasant £ 650,00000.00 KM
Langerton Manor £ 000.00 KM
Grenville Estate Crescent £ 195,00000.00 KM

Nearby Listings

AddressPriceTypeScoreDistance
Littleham, Bideford £ 1,650,000BUY6 / 100.00 KM
Littleham Court, Littleham, Bideford, EX39 £ 355,000BUY7 / 100.83 KM
Littleham £ 295,000BUY6 / 100.93 KM
Littleham, Nr Bideford £ 275,000BUY6 / 100.97 KM
Littleham, Bideford £ 400,000BUY6 / 100.98 KM

Nearby Properties

AddressPriceDistance
Hullacott £ 392,5000.76 KM
4 Littleham Court £ 96,0000.76 KM
5 Littleham Court £ 193,3000.76 KM
The Round House £ 440,0000.76 KM
16 Mount Pleasant £ 262,5001.02 KM