Sims Williams says ..
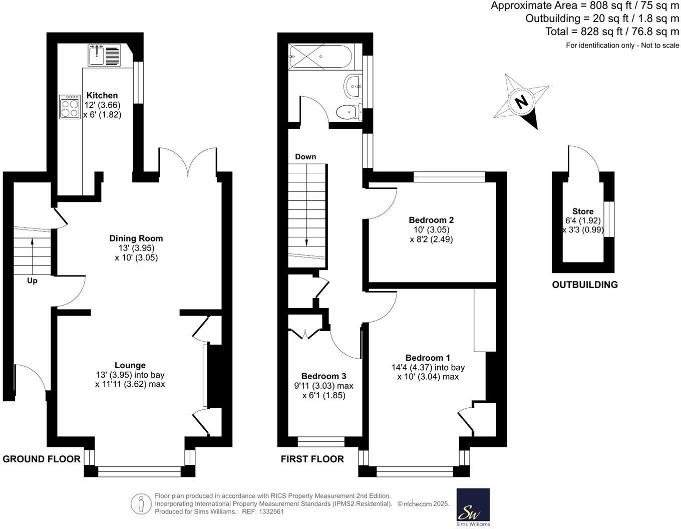
Well-presented three-bedroom end-of-terrace home in a convenient setting. Features a double aspect living/dining room, large master with wardrobes, driveway for two cars, and a courtyard garden. Close to local amenities, schools, and train station.
Property Oracle says ..
Therefore, we give this property 6 / 10. *Disclaimer: This is our option and does constitute a recommendation or financial advice. Do your own research. *
- Price
- 8
- Condition
- 5
- Location
- 7
- Land
- 6
- Bedrooms
- 3
- Bathrooms
- 1
The heatmap indicates the level of crime in the area. The color of the heatmap indicates the crime severity and recency.
Metrics Year-on-Year
- Average area value
- 636,667.00 £Decreased by 17.62 %
- Average area rental value
- 2,030.00 £/moIncreased by 3.89 %
- Est rental Yield
- 3.83 %Increased by 26.40 %
- Crime Rate
- 6.00 %Unchanged by 0.00 %
from 772,798.00 £
from 1,954.00 £/mo
from 3.03 %
from 6.00 %
Agent Activity
Sims Williams created the listing.
Nearby Schools
| Name | Type | Ofsted | Distance |
|---|---|---|---|
| Bognor Regis Nursery School | Local Authority Nursery School | Outstanding | 0.50 KM |
| Bognor Children And Family Centre | Children's Centre | 0.57 KM | |
| South Bersted Cofe Primary School | Voluntary Controlled School | Good | 0.59 KM |
| Bersted Green Primary School, Bognor Regis | Community School | Good | 0.62 KM |
| Treehouse Children & Family Centre (Bersted) | Children's Centre | 0.65 KM |
Images
Nearby Streets
| Name | Average Price | Average Sqft | Distance |
|---|---|---|---|
| Fletcher Way | £ 0 | 0 | 0.00 KM |
| The Paddock | £ 289,950 | 0 | 0.00 KM |
| Chichester Road | £ 316,667 | 0 | 0.00 KM |
| Hawthorn Road | £ 265,000 | 0 | 0.00 KM |
| Gordon Avenue | £ 0 | 0 | 0.00 KM |
Nearby Transport
| Name | NLC | TLC | Distance |
|---|---|---|---|
| Bognor Regis | 5253 | BOG | 0.69 KM |
| Barnham | 5252 | BAA | 6.11 KM |
Nearby Listings
| Address | Price | Type | Score | Distance |
|---|---|---|---|---|
| Dorset Road, Bognor Regis | £ 280,000 | BUY | 6 / 10 | 0.00 KM |
| Murina Avenue, Bognor Regis, West Sussex, PO21 | £ 285,000 | BUY | 7 / 10 | 0.04 KM |
| Murina Avenue, Bognor Regis, PO21 | £ 350,000 | BUY | 7 / 10 | 0.07 KM |
| Essex Road, Bognor Regis, West Sussex | £ 200,000 | BUY | 5 / 10 | 0.08 KM |
| Essex Road, Bognor Regis, PO21 | £ 300,000 | BUY | 7 / 10 | 0.08 KM |
Nearby Properties
| Address | Price | Distance |
|---|---|---|
| 6 Murina Avenue | £ 262,500 | 0.04 KM |
| 32 Murina Avenue | £ 246,000 | 0.04 KM |
| 5 Murina Avenue | £ 245,000 | 0.04 KM |
| 8 Murina Avenue | £ 159,000 | 0.04 KM |
| 27 Murina Avenue | £ 162,000 | 0.04 KM |