Westerham Road, Ruddington, Nottingham
By Benjamins
£ 295,000
Reviews
2 out of 5 stars
Benjamins says ..
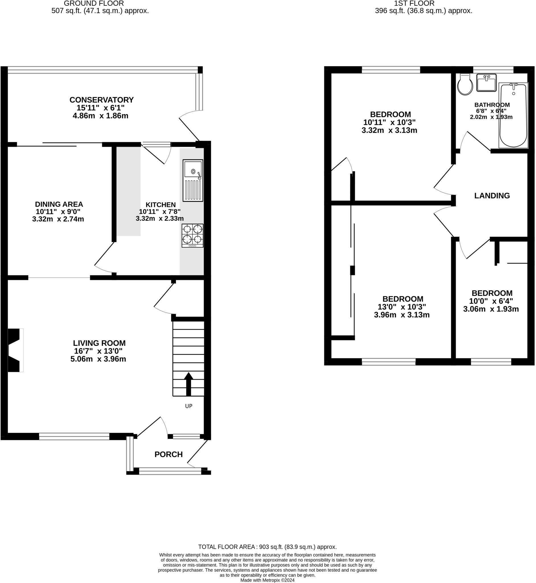
PRICE *** £295,000 *** Benjamins welcome to the market this three bedroom family home in the heart of Ruddington in South Nottinghamshire. Property comprises of: Entrance porch, living room, dining room, kitchen, conservatory. Stairs to first floor accommodation is the master b (cont.)
Property Oracle says ..
This three-bedroom semi-detached house on Westerham Road, Ruddington, presents a mixed bag of opportunities and challenges for potential buyers. The property is situated in the desirable village of Ruddington, Nottinghamshire, which benefits from excellent primary and secondary schools, nearby amenities, and transport links to Nottingham. This makes the location a significant plus point for families.
However, the property’s condition is a key factor to consider. The images reveal a property that is dated and in need of significant modernisation. Wallpaper, flooring, and kitchen fixtures all appear outdated and would require considerable investment to bring the property up to modern standards. While the presence of a garden and conservatory is positive, the garden’s size appears relatively modest based on the provided photos.
The asking price of £295,000 sits within the range of similar properties on Westerham Road and in neighboring streets of Ruddington, which is a good indicator. However, it’s crucial to factor in the substantial costs associated with the necessary renovations. Potential buyers should carefully budget for a full refurbishment before committing to a purchase, as these costs could significantly impact overall value. A thorough survey is strongly recommended before proceeding further. In short, this property offers a good location, but buyers should be prepared for a substantial renovation project.
Therefore, we give this property 5 / 10. *Disclaimer: This is our option and does constitute a recommendation or financial advice. Do your own research. *
- Price
- 7
- Condition
- 4
- Location
- 7
- Land
- 5
- Bedrooms
- 3
- Bathrooms
- 1
- Sqft (est)
- 903.00
The heatmap indicates the level of crime in the area. The color of the heatmap indicates the crime severity and recency.
Metrics Year-on-Year
- Average area value
- 242,833.00 £Decreased by 39.14 %
- Est sale value
- 252,840.00 £Increased by 21.74 %
- Average area rental value
- 1,075.00 £/moDecreased by 0.83 %
- Est letting value
- 903.00 £/mo
- Est rental Yield
- 5.31 %Increased by 62.88 %
- Crime Rate
- 11.00 %Unchanged by 0.00 %
Agent Activity
Benjamins created the listing.
Nearby Schools
| Name | Type | Ofsted | Distance |
|---|---|---|---|
| James Peacock Infant And Nursery School | Community School | Outstanding | 0.41 KM |
| St Peter'S Cofe Junior School | Voluntary Controlled School | Good | 1.78 KM |
| Nethergate Academy | Academy Special Converter | Outstanding | 1.82 KM |
| Farnborough Spencer Academy | Academy Sponsor Led | 2.21 KM | |
| The Milford Academy | Academy Converter | Good | 2.32 KM |
Images
Nearby Streets
| Name | Average Price | Average Sqft | Distance |
|---|---|---|---|
| Peacock Close | £ 512,500 | 0 | 0.00 KM |
| Blenheim Close | £ 335,000 | 0 | 0.00 KM |
| Spencer Close | £ 0 | 0 | 0.00 KM |
| Barton Close | £ 0 | 0 | 0.00 KM |
| Pipet Drive | £ 108,000 | 0 | 0.00 KM |
Nearby Transport
| Name | NLC | TLC | Distance |
|---|---|---|---|
| Nottingham | 1826 | NOT | 6.30 KM |
| Beeston | 1625 | BEE | 6.40 KM |
| Attenborough | 1624 | ATB | 8.31 KM |
Nearby Listings
| Address | Price | Type | Score | Distance |
|---|---|---|---|---|
| Westerham Road, Ruddington, Nottingham | £ 295,000 | BUY | 5 / 10 | 0.00 KM |
| Churchill Drive, Ruddington | £ 345,000 | BUY | 7 / 10 | 0.11 KM |
| Churchill Drive, Ruddington, Nottingham | £ 340,000 | BUY | Unknown | 0.12 KM |
| Churchill Drive, Ruddington | £ 300,000 | BUY | Unknown | 0.12 KM |
| Churchill Drive, Ruddington, Nottingham, Nottinghamshire, NG11 | £ 325,000 | BUY | Unknown | 0.16 KM |
Nearby Properties
| Address | Price | Distance |
|---|---|---|
| 22 Westerham Road | £ 252,000 | 0.04 KM |
| 14 Westerham Road | £ 152,500 | 0.04 KM |
| 2 Westerham Road | £ 164,000 | 0.04 KM |
| 24 Westerham Road | £ 237,500 | 0.04 KM |
| 18 Westerham Road | £ 124,000 | 0.04 KM |