TH
Fitzgerald Close, Castleford, WF10
By The Agency UK
£ 260,000
Reviews
3 out of 5 stars
The Agency UK says ..
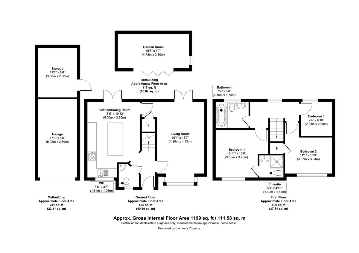
A VIEWING IS A MUST ON THIS STUNNING HIGH SPEC 3 BEDROOM DETACHED HOME
Property Oracle says ..
Therefore, we give this property 7 / 10. *Disclaimer: This is our option and does constitute a recommendation or financial advice. Do your own research. *
- Price
- 9
- Condition
- 8
- Location
- 7
- Land
- 7
- Bedrooms
- 3
- Bathrooms
- 2
- Sqft (est)
- 1,122.27
The heatmap indicates the level of crime in the area. The color of the heatmap indicates the crime severity and recency.
Metrics Year-on-Year
- Average area value
- 420,000.00 £Decreased by 24.04 %
- Est sale value
- 983,108.52 £Increased by 140.00 %
- Average area rental value
- 1,475.00 £/moDecreased by 37.68 %
- Est letting value
- 3,366.81 £/moIncreased by 200.00 %
- Est rental Yield
- 4.21 %Decreased by 18.09 %
- Crime Rate
- 2.00 %Unchanged by 0.00 %
from 552,933.00 £
from 409,628.55 £
from 2,367.00 £/mo
from 1,122.27 £/mo
from 5.14 %
from 2.00 %
Agent Activity
The Agency UK created the listing.
Nearby Schools
| Name | Type | Ofsted | Distance |
|---|---|---|---|
| Airedale Academy | Academy Converter | Good | 0.99 KM |
| Castleford Townville Infants' School | Community School | Requires improvement | 1.16 KM |
| Airedale Children'S Centre | Children's Centre | 1.33 KM | |
| Airedale Infant School | Academy Converter | Good | 1.37 KM |
| Airedale Junior School | Academy Sponsor Led | Good | 1.37 KM |
Images
Nearby Streets
| Name | Average Price | Average Sqft | Distance |
|---|---|---|---|
| Elliots Close | £ 260,000 | 0 | 0.00 KM |
| Hillcrest Close | £ 0 | 0 | 0.00 KM |
| Hillcrest Road | £ 370,000 | 0 | 0.00 KM |
| Park Crescent | £ 0 | 0 | 0.00 KM |
| Gemmi Court | £ 0 | 0 | 0.00 KM |
Nearby Transport
| Name | NLC | TLC | Distance |
|---|---|---|---|
| Pontefract Monkhill | 8548 | PFM | 1.66 KM |
| Pontefract Tanshelf | 8541 | POT | 2.38 KM |
| Pontefract Baghill | 8540 | PFR | 2.43 KM |
| Glasshoughton | 8360 | GLH | 3.70 KM |
| Castleford | 8359 | CFD | 5.22 KM |
Nearby Listings
| Address | Price | Type | Score | Distance |
|---|---|---|---|---|
| Fitzgerald Close, Castleford, WF10 | £ 260,000 | BUY | 7 / 10 | 0.00 KM |
| Fitzgerald Close, Castleford, West Yorkshire, WF10 | £ 235,000 | BUY | 7 / 10 | 0.02 KM |
| Kingsley Drive, Plot 412/ Jubilee Gardens | £ 200,000 | BUY | Unknown | 0.06 KM |
| Fitzgerald Close, Castleford, West Yorkshire, WF10 | £ 250,000 | BUY | 7 / 10 | 0.08 KM |
| Kingsley Drive Castleford, WF10 3PS | £ 200,000 | BUY | 7 / 10 | 0.08 KM |
Nearby Properties
| Address | Price | Distance |
|---|---|---|
| 3 Fitzgerald Close | £ 205,000 | 0.02 KM |
| 5 Fitzgerald Close | £ 165,000 | 0.02 KM |
| 7 Fitzgerald Close | £ 166,000 | 0.02 KM |
| 11 Fitzgerald Close | £ 130,000 | 0.02 KM |
| 8 Fitzgerald Close | £ 152,000 | 0.02 KM |