North Manor Way, Woolton, Liverpool, L25
By Move Residential
£ 275,000
Reviews
3 out of 5 stars
Move Residential says ..
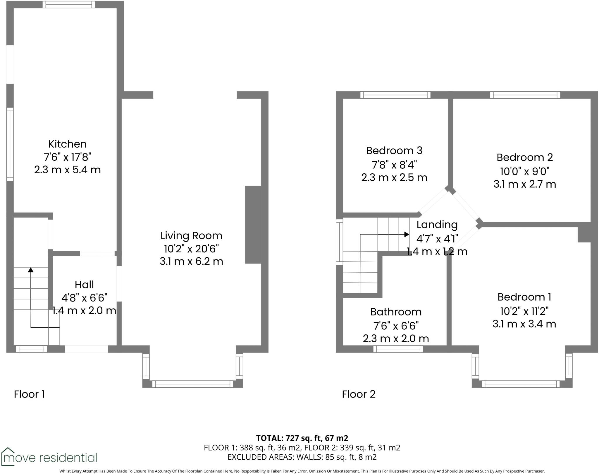
Enjoying a prime location on North Manor Way in the ever desirable area of Woolton, L25, is this fantastic three bedroom semi detached home, welcomed to the sales market by appointed agents Move Residential. Occupying a substantial corner plot, this property boasts generous and well-presented liv...
Property Oracle says ..
This is a three-bedroom semi-detached property located in Woolton, Liverpool. The house offers a garden and off-street parking. The interior appears to be in generally good condition, with a modern kitchen and bathroom. While some areas could benefit from updating, the property presents a solid opportunity for buyers. The location is convenient, with proximity to schools and transportation. Considering the price in relation to comparable properties and the average price per square foot in the area, this property represents good value for money.
Therefore, we give this property 7 / 10. *Disclaimer: This is our option and does constitute a recommendation or financial advice. Do your own research. *
- Price
- 8
- Condition
- 7
- Location
- 7
- Land
- 7
- Bedrooms
- 3
- Bathrooms
- 1
- Sqft (est)
- 727.00
The heatmap indicates the level of crime in the area. The color of the heatmap indicates the crime severity and recency.
Metrics Year-on-Year
- Average area value
- 329,499.00 £Decreased by 1.25 %
- Est sale value
- 210,103.00 £Decreased by 8.25 %
- Average area rental value
- 1,555.00 £/moIncreased by 30.23 %
- Est letting value
- 727.00 £/moUnchanged by 0.00 %
- Est rental Yield
- 5.66 %Increased by 31.93 %
- Crime Rate
- 4.00 %Unchanged by 0.00 %
Agent Activity
Move Residential created the listing.
Nearby Schools
| Name | Type | Ofsted | Distance |
|---|---|---|---|
| Much Woolton Catholic Primary School | Voluntary Aided School | Good | 0.66 KM |
| Cherry Tree Sscc | Children's Centre Linked Site | 0.66 KM | |
| Holy Family Catholic Primary School | Voluntary Aided School | Good | 0.93 KM |
| Woolton Primary School | Community School | Good | 1.13 KM |
| St Julie'S Catholic High School | Voluntary Aided School | Good | 1.23 KM |
Images
Nearby Streets
| Name | Average Price | Average Sqft | Distance |
|---|---|---|---|
| Manor Way | £ 270,000 | 0 | 0.00 KM |
| Halewood Way | £ 230,000 | 0 | 0.00 KM |
| Manor Crescent | £ 316,667 | 0 | 0.00 KM |
| Anzio Row | £ 0 | 0 | 0.00 KM |
| Woodbine Road | £ 0 | 0 | 0.00 KM |
Nearby Transport
| Name | NLC | TLC | Distance |
|---|---|---|---|
| Hunts Cross | 2235 | HNX | 1.28 KM |
| Halewood | 2295 | HED | 2.82 KM |
| Liverpool South Parkway | 9709 | LPY | 4.16 KM |
| Roby | 2261 | ROB | 4.21 KM |
| Huyton | 2160 | HUY | 4.36 KM |
Nearby Listings
| Address | Price | Type | Score | Distance |
|---|---|---|---|---|
| North Manor Way, Woolton, Liverpool, L25 | £ 275,000 | BUY | 7 / 10 | 0.00 KM |
| North Manor Way, Woolton, Liverpool, L25 | £ 240,000 | BUY | 6 / 10 | 0.05 KM |
| South Manor Way, Liverpool, L25 | £ 325,000 | BUY | 7 / 10 | 0.07 KM |
| South Manor Way, Liverpool, L25 | £ 350,000 | BUY | 8 / 10 | 0.07 KM |
| North Linkside Road, Woolton, Liverpool, L25 | £ 290,000 | BUY | Unknown | 0.15 KM |
Nearby Properties
| Address | Price | Distance |
|---|---|---|
| 4 North Manor Way | £ 230,000 | 0.02 KM |
| 34 North Manor Way | £ 193,000 | 0.02 KM |
| 6 North Manor Way | £ 245,000 | 0.02 KM |
| 2 North Manor Way | £ 270,000 | 0.02 KM |
| 24 North Manor Way | £ 201,000 | 0.02 KM |