SE
Hermitage Woods Crescent, St Johns, Woking, GU21
By Seymours Estate Agents
£ 750,000
Reviews
4 out of 5 stars
Seymours Estate Agents says ..
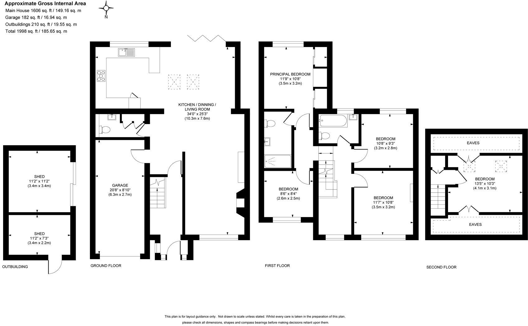
No Onward Chain, Stunning 5 Bedroom Family Home Backing onto the Basingstoke Canal This beautifully extended and upgraded five bedroom semi detached home offers spacious, modern living across three floors, perfect for growing families. Ideally located with direct access to the Basingstoke Ca...
Property Oracle says ..
Therefore, we give this property 8 / 10. *Disclaimer: This is our option and does constitute a recommendation or financial advice. Do your own research. *
- Price
- 7
- Condition
- 9
- Location
- 8
- Land
- 8
- Bedrooms
- 5
- Bathrooms
- 2
The heatmap indicates the level of crime in the area. The color of the heatmap indicates the crime severity and recency.
Metrics Year-on-Year
- Average area value
- 384,737.00 £Decreased by 1.20 %
- Average area rental value
- 1,963.00 £/moIncreased by 39.81 %
- Est rental Yield
- 6.12 %Increased by 41.34 %
- Crime Rate
- 3.00 %Unchanged by 0.00 %
from 389,410.00 £
from 1,404.00 £/mo
from 4.33 %
from 3.00 %
Agent Activity
Seymours Estate Agents created the listing.
Nearby Schools
| Name | Type | Ofsted | Distance |
|---|---|---|---|
| The Oaktree School | Academy Converter | 0.28 KM | |
| St Hugh Of Lincoln Catholic Primary School | Academy Converter | Good | 0.33 KM |
| St John'S Primary School | Academy Sponsor Led | Requires improvement | 0.36 KM |
| St John'S Primary School And Sure Start Children'S Centre | Children's Centre | 0.36 KM | |
| The Hermitage School | Academy Converter | Good | 0.36 KM |
Images
Nearby Streets
| Name | Average Price | Average Sqft | Distance |
|---|---|---|---|
| Oakway | £ 475,000 | 0 | 0.00 KM |
| Oakwood Road | £ 0 | 0 | 0.00 KM |
| Elmgrove Close | £ 425,000 | 0 | 0.00 KM |
| Beechwood Close | £ 0 | 0 | 0.00 KM |
| Robin Hood Roundabout cycle path | £ 0 | 0 | 0.00 KM |
Nearby Transport
| Name | NLC | TLC | Distance |
|---|---|---|---|
| Brookwood | 5687 | BKO | 3.25 KM |
| Worplesdon | 5686 | WPL | 3.81 KM |
| Woking | 5685 | WOK | 5.65 KM |
| Longcross | 5674 | LNG | 8.23 KM |
| Guildford | 5631 | GLD | 8.92 KM |
Nearby Listings
| Address | Price | Type | Score | Distance |
|---|---|---|---|---|
| Hermitage Woods Crescent, St Johns, Woking, GU21 | £ 750,000 | BUY | 8 / 10 | 0.00 KM |
| Woking, Surrey, GU21 | £ 559,950 | BUY | Unknown | 0.00 KM |
| Knaphill, Woking, Surrey, GU21 | £ 450,000 | BUY | 7 / 10 | 0.10 KM |
| Inkerman Road, Knaphill, Woking, Surrey, GU21 | £ 259,950 | BUY | 6 / 10 | 0.12 KM |
| Inkerman Road, Knaphill, Woking, Surrey, GU21 | £ 350,000 | BUY | 6 / 10 | 0.12 KM |
Nearby Properties
| Address | Price | Distance |
|---|---|---|
| 144 Hermitage Road | £ 455,000 | 0.01 KM |
| 122 Hermitage Road | £ 340,000 | 0.01 KM |
| 138 Hermitage Road | £ 287,000 | 0.01 KM |
| 120 Hermitage Road | £ 380,000 | 0.01 KM |
| 126 Hermitage Road | £ 540,000 | 0.01 KM |