Oldborough Road, Wembley
DA

Oldborough Road, Wembley

By Daniels

£ 630,000

Reviews

3 out of 5 stars

Daniels says ..

Daniels are delighted to present to the market this three bedroom semi-detached property located on the sought after Oldborough Road within the popular Sudbury Court Estate. This charming home has been with the existing owner for many years and is ideal for any young family, with children looking...

Property Oracle says ..

This three-bedroom semi-detached house located on Oldborough Road in Wembley, within the Sudbury Court Estate, presents a mixed bag of opportunities and challenges. Its key strengths lie in its location, with relatively good access to public transport and several highly-rated schools nearby. The property includes a garden, which is always a desirable feature. However, the property could benefit from some modernization. The kitchen and bathroom, in particular, appear dated and would likely require updates, and minor repairs are needed in some of the bedrooms. The exterior of the property is presentable, although the garden could also benefit from some landscaping. The price point appears reasonable in the context of similar properties in the area, but potential buyers should factor in costs associated with the renovations and upgrades. Overall, this property represents a worthwhile investment if the buyer is prepared to undertake some refurbishment work.

Therefore, we give this property 6 / 10. *Disclaimer: This is our option and does constitute a recommendation or financial advice. Do your own research. *

Price
7
Condition
6
Location
7
Land
4
Bedrooms
3
Bathrooms
1
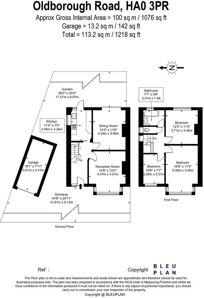
Sqft (est)
1,218.00

The heatmap indicates the level of crime in the area. The color of the heatmap indicates the crime severity and recency.

Metrics Year-on-Year

Average area value
447,000.00 £
Decreased by 36.70 %
from 706,172.00 £
Est sale value
756,378.00 £
Increased by 40.50 %
from 538,356.00 £
Average area rental value
2,659.00 £/mo
Increased by 14.46 %
from 2,323.00 £/mo
Est letting value
3,654.00 £/mo
Increased by 200.00 %
from 1,218.00 £/mo
Est rental Yield
7.14 %
Increased by 80.76 %
from 3.95 %
Crime Rate
2.00 %
Unchanged by 0.00 %
from 2.00 %

Agent Activity

  • Daniels created the listing.

Nearby Schools

NameTypeOfstedDistance
Wembley High Technology CollegeAcademy Converter0.23 KM
North Brent SchoolFree Schools0.41 KM
East Lane Primary SchoolAcademy ConverterOutstanding0.41 KM
Byron Court Primary SchoolCommunity SchoolOutstanding0.48 KM
Sudbury Primary SchoolAcademy ConverterGood1.11 KM

Images

48 Oldborough Road - Q0D3VzpqBbW7PcYbv4CU.jpg 48 Oldborough Road - SXHkRjlIdKwILYJ2EzoO.jpg 48 Oldborough Road - AuLM8RLjyQIZd5hLCiL0.jpg 48 Oldborough Road - 35nFMTEg8SpqzciBha4e.jpg 48 Oldborough Road - plkVKTbQrEWfy2P9e79H.jpg 48 Oldborough Road - pTpgOfhuV2ubMpzfOPjK.jpg 48 Oldborough Road - a1O3rM2JABPbfxRWrbRC.jpg 48 Oldborough Road - LJ3j0fT9Q14EqTQTfDoD.jpg 48 Oldborough Road - XbU8jvZCko4ovWAQCcHk.jpg 48 Oldborough Road - fovebqYyKq4BKIUF2cVz.jpg 48 Oldborough Road - 1h5MeaZ4wyUeF3kbYQOa.jpg 48 Oldborough Road - 1L0XMNt1F2WNtWrZBTQ4.jpg 48 Oldborough Road - mbVMvHhYu3wIMYRi3tVf.jpg 48 Oldborough Road - uBeNGvcq0jaTcrHxfynY.jpg 48 Oldborough Road - Eez4MeBoRFnRtETpHYgM.jpg 48 Oldborough Road - wBDy2qljWV9MqVesSeG6.jpg 48 Oldborough Road - n2qgFIfNrSM4aj88eP73.jpg 48 Oldborough Road - T7qhnoqFXxOmAq3BMZqd.jpg

Nearby Streets

NameAverage PriceAverage SqftDistance
West Court £ 675,00000.00 KM
Dean Court £ 749,98300.00 KM
Ada Road £ 450,00000.00 KM
Windermere Grove £ 000.00 KM
Pasture Close £ 916,66700.00 KM

Nearby Transport

NameNLCTLCDistance
South Kenton1453SOK0.64 KM
North Wembley1422NWB0.83 KM
Sudbury And Harrow Road1483SUD1.28 KM
Kenton1399KNT1.97 KM
Wembley Central1423WMB2.15 KM

Nearby Listings

AddressPriceTypeScoreDistance
Oldborough Road, Wembley £ 630,000BUY6 / 100.00 KM
Oldborough Road, Wembley £ 775,000BUY7 / 100.06 KM
Oldborough Road, Wembley £ 725,000BUY6 / 100.08 KM
Oldborough Road, Wembley £ 700,000BUY6 / 100.08 KM
Oldborough Road, WEMBLEY, HA0 £ 800,000BUY8 / 100.08 KM

Nearby Properties

AddressPriceDistance
62 Oldborough Road £ 350,0000.08 KM
58 Oldborough Road £ 440,0000.08 KM
56 Oldborough Road £ 565,0000.08 KM
50 Oldborough Road £ 485,0000.08 KM
14 Oldborough Road £ 585,0000.08 KM