The Firs & The Old Coach House, Winskill, Penrith
LA

The Firs & The Old Coach House, Winskill, Penrith

By Lakes Estates

£ 750,000

Reviews

4 out of 5 stars

Lakes Estates says ..

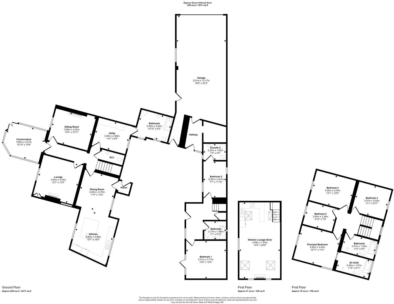
Welcome to The Firs & The Old Coach House. The Firs is a delightfully renovated four bedroom sandstone property which has been newly lime pointed, future proofing and adding a touch of elegance to its exterior. The Firs has a stunning new kitchen and retains many period features making the proper...

Property Oracle says ..

The property is a charming detached house located in Winskill, Cumbria. The images show a property that has undergone significant modernisation, whilst retaining some traditional features. The kitchen is modern and well-equipped, and the bathrooms appear recently updated. The property benefits from a large garden, providing ample outdoor space. The location is rural, with the nearest train station being Langwathby, approximately 2.4km away. Several primary schools with a ‘Good’ Ofsted rating are within a reasonable distance, making this an attractive option for families. However, the lack of nearby shops and amenities might be a drawback for some buyers. Based on the provided images, the property appears to be in excellent condition. There is no visible evidence of significant repair or renovation needs. The modern kitchen and bathrooms further support this assessment. Considering the property’s size (3,509.04 sqft), condition, location, and the presence of a substantial garden, the list price of £750,000 seems relatively reasonable compared to the average price of £635,000 for properties in the area. While the average price per sqft in the area is £559, this property’s size and condition justify a higher price. However, a direct price per sqft comparison is difficult as the sqft data for nearby properties is unavailable.

Therefore, we give this property 8 / 10. *Disclaimer: This is our option and does constitute a recommendation or financial advice. Do your own research. *

Price
8
Condition
9
Location
7
Land
8
Bedrooms
6
Bathrooms
5
Sqft (est)
3,509.04

The heatmap indicates the level of crime in the area. The color of the heatmap indicates the crime severity and recency.

Metrics Year-on-Year

Average area value
722,194.00 £
Increased by 1.02 %
from 714,889.00 £
Est sale value
1,642,230.72 £
Increased by 2.63 %
from 1,600,122.24 £
Average area rental value
2,810.00 £/mo
Decreased by 41.46 %
from 4,800.00 £/mo
Est letting value
3,509.04 £/mo
Decreased by 66.67 %
from 10,527.12 £/mo
Est rental Yield
4.67 %
Decreased by 42.06 %
from 8.06 %
Crime Rate
0.00 %
from 0.00 %

Agent Activity

  • Lakes Estates created the listing.

Nearby Schools

NameTypeOfstedDistance
Langwathby Cofe Primary SchoolVoluntary Controlled SchoolGood3.02 KM
Culgaith Cofe SchoolVoluntary Aided SchoolGood7.21 KM
Lazonby C Of E Primary SchoolAcademy ConverterGood7.44 KM
Kirkoswald Cofe SchoolVoluntary Controlled SchoolGood8.07 KM
Temple Sowerby Cofe Primary SchoolVoluntary Controlled SchoolGood9.44 KM

Images

The Firs & The Old Coach House The Firs Kitchen Dining Area The Firs Kitchen Dining Area The Firs Kitchen Dining Area The Firs Kitchen Dining Area The Firs Kitchen Dining Area The Firs Reception Room One The Firs Reception Room Two The Firs Conservatory The Firs Primary Bedroom The Firs Primary Ensuite The Firs Bedroom Two The Firs Bathroom The Firs Bedroom Three The Firs Bedroom Four / Study The Firs Utility Room The Firs Downstairs Bathroom Outside Outside Outside Outside Outside Outside Outside Outside The Old Coach House The Coach House Living/Kitchen/Dining The Coach House Living/Kitchen/Dining The Coach House Bedroom One The Coach House Bathroom The Coach House Bedroom Two The Coach House Bedroom Two Ensuite Outside Outside Outside Outside Outside The Coach House Courtyard

Nearby Streets

NameAverage PriceAverage SqftDistance
Oak Close £ 000.00 KM
Rose Cottage £ 000.00 KM

Nearby Transport

NameNLCTLCDistance
Langwathby2058LGW2.40 KM
Lazonby And Kirkoswald2059LZB7.73 KM

Nearby Listings

AddressPriceTypeScoreDistance
The Firs & The Old Coach House, Winskill, Penrith £ 750,000BUY8 / 100.00 KM
Winskill, Penrith, CA10 £ 450,000BUY7 / 100.01 KM
Winskill £ 525,000BUYUnknown0.31 KM
West Garth, Winskill CA10 £ 525,000BUYUnknown0.31 KM
Hunsonby, Penrith £ 250,000BUYUnknown0.96 KM

Nearby Properties

AddressPriceDistance
5 Pennine Terrace £ 175,0000.10 KM
1 Pennine Terrace £ 180,0000.10 KM
14 Moorside £ 150,0000.40 KM