Chapelgarth, Sunderland, SR3 2NY
By St Modwen Homes
£ 285,000
Reviews
3 out of 5 stars
St Modwen Homes says ..
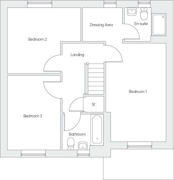
The Morley 3 bedroom home features an enviable and spacious layout which boasts a bright living room and a spacious open-plan dining kitchen which overlooks the rear garden. Upstairs a vast main bedroom benefits from a walk-in dressing area and en-suite shower room. Two further double bedrooms...
Property Oracle says ..
This is a modern detached property located in Sunderland. It features 3 bedrooms and appears to be in excellent condition. The property includes a garden, driveway, and garage, making it suitable for families. Nearby schools and transportation links enhance the location’s appeal. The price is reasonable for the area and property type.
Therefore, we give this property 7 / 10. *Disclaimer: This is our option and does constitute a recommendation or financial advice. Do your own research. *
- Price
- 7
- Condition
- 9
- Location
- 7
- Land
- 6
- Bedrooms
- 3
- Bathrooms
- 0
- Sqft (est)
- 790.00
The heatmap indicates the level of crime in the area. The color of the heatmap indicates the crime severity and recency.
Metrics Year-on-Year
- Average area value
- 274,723.00 £Increased by 0.19 %
- Est sale value
- 323,900.00 £Increased by 34.87 %
- Average area rental value
- 1,117.00 £/moIncreased by 14.10 %
- Est letting value
- 790.00 £/moUnchanged by 0.00 %
- Est rental Yield
- 4.88 %Increased by 14.02 %
- Crime Rate
- 7.00 %Unchanged by 0.00 %
Agent Activity
St Modwen Homes created the listing.
Nearby Schools
| Name | Type | Ofsted | Distance |
|---|---|---|---|
| Portland Academy | Academy Special Converter | Good | 0.43 KM |
| Benedict Biscop Church Of England Academy | Academy Converter | 0.59 KM | |
| Farringdon Community Academy | Academy Converter | Requires improvement | 1.45 KM |
| Mill Hill Primary School | Community School | Good | 1.74 KM |
| Mill Hill Nursery School | Local Authority Nursery School | Good | 1.75 KM |
Images
Nearby Streets
| Name | Average Price | Average Sqft | Distance |
|---|---|---|---|
| Weymouth Road | £ 265,000 | 0 | 0.00 KM |
| Meadowsweet Lane | £ 0 | 0 | 0.00 KM |
| Elder Rise | £ 475,000 | 0 | 0.00 KM |
| Capella Way | £ 0 | 0 | 0.00 KM |
| Saint Govan Lane | £ 339,974 | 0 | 0.00 KM |
Nearby Transport
| Name | NLC | TLC | Distance |
|---|---|---|---|
| Sunderland | 7640 | SUN | 6.49 KM |
| Seaham | 7814 | SEA | 8.63 KM |
Nearby Listings
| Address | Price | Type | Score | Distance |
|---|---|---|---|---|
| Chapelgarth, Sunderland, SR3 2NY | £ 367,000 | BUY | Unknown | 0.00 KM |
| Chapelgarth, Sunderland, SR3 2NY | £ 404,995 | BUY | 7 / 10 | 0.00 KM |
| Chapelgarth, Sunderland, SR3 2NY | £ 285,000 | BUY | 7 / 10 | 0.00 KM |
| Chapelgarth, Sunderland, SR3 2NY | £ 449,995 | BUY | 8 / 10 | 0.00 KM |
| Chapelgarth, Sunderland, SR3 2NY | £ 446,995 | BUY | 7 / 10 | 0.00 KM |
Nearby Properties
| Address | Price | Distance |
|---|---|---|
| 23 Englemann Way | £ 199,995 | 0.00 KM |
| 11 Englemann Way | £ 105,000 | 0.00 KM |
| 12 Englemann Way | £ 200,000 | 0.00 KM |
| 25 Englemann Way | £ 180,000 | 0.00 KM |
| 26 Englemann Way | £ 230,000 | 0.00 KM |