Coppenwall says ..
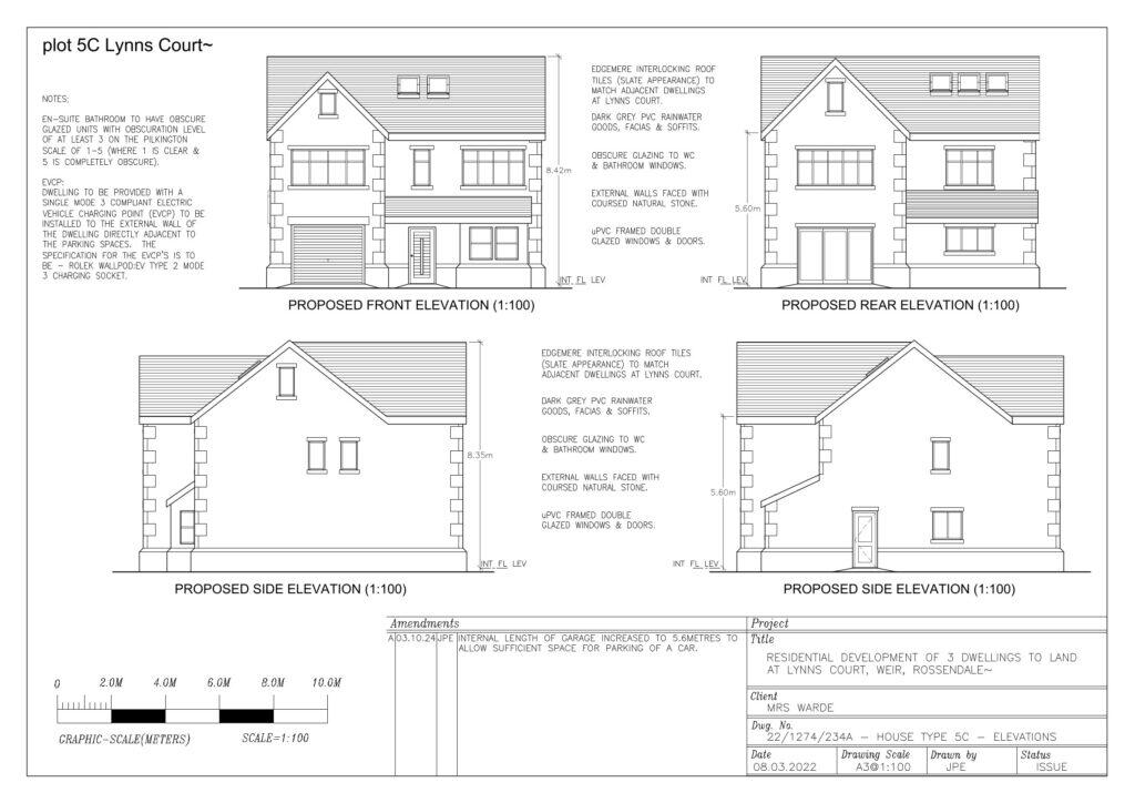
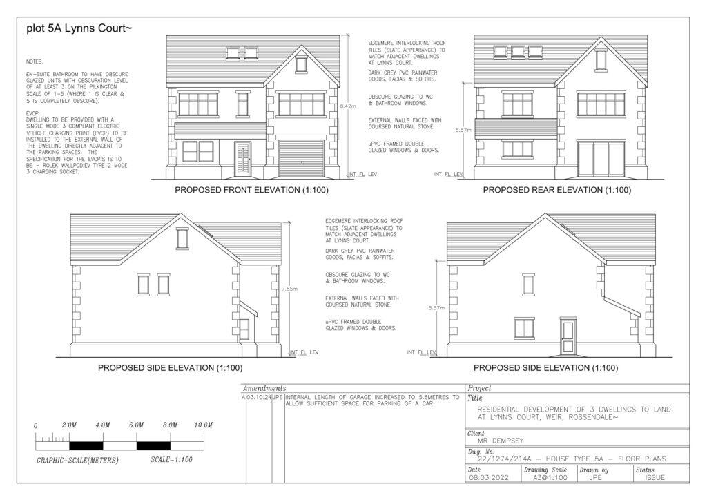
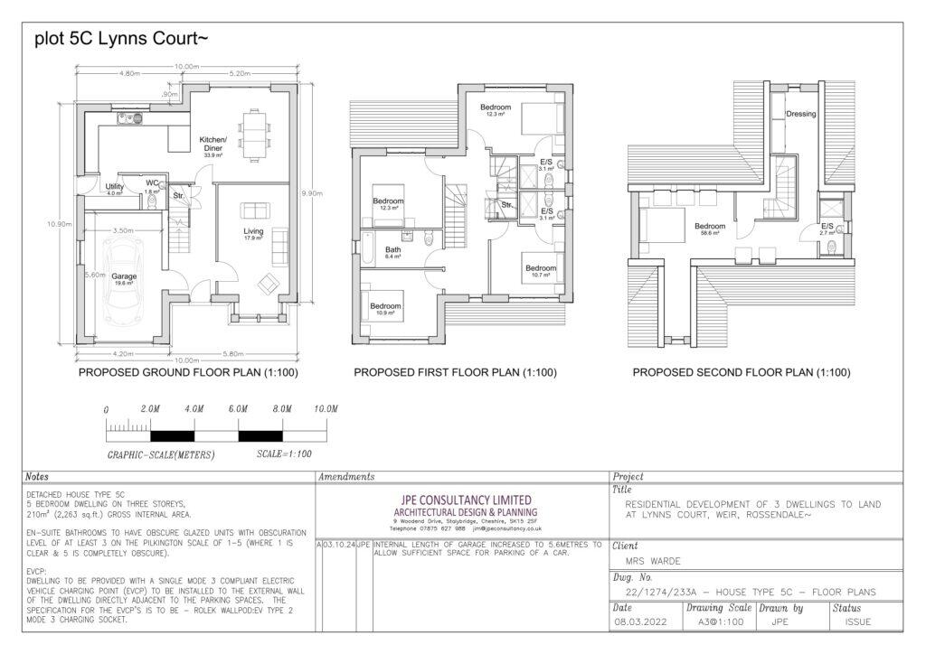
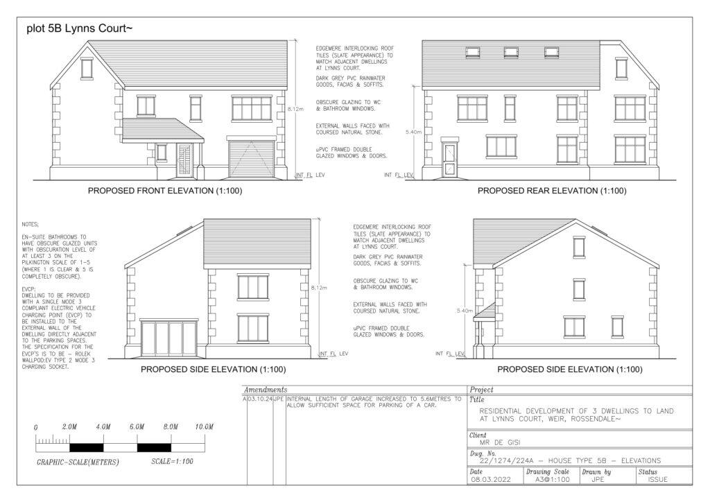
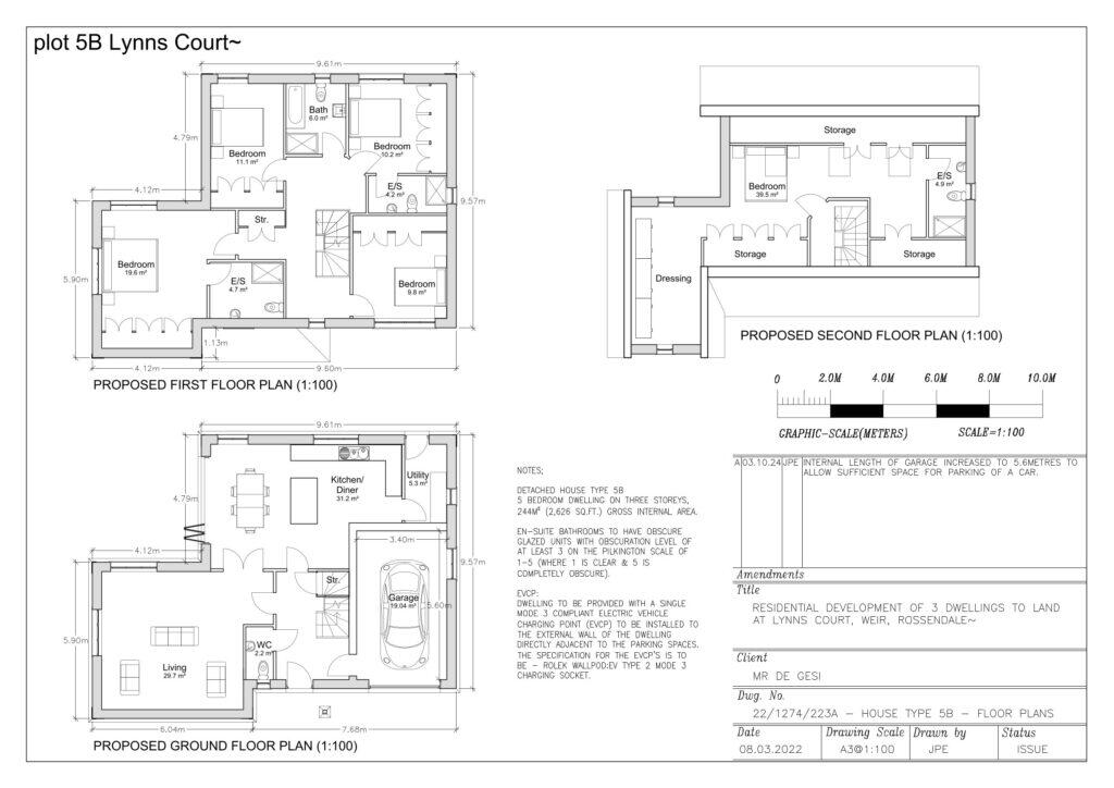
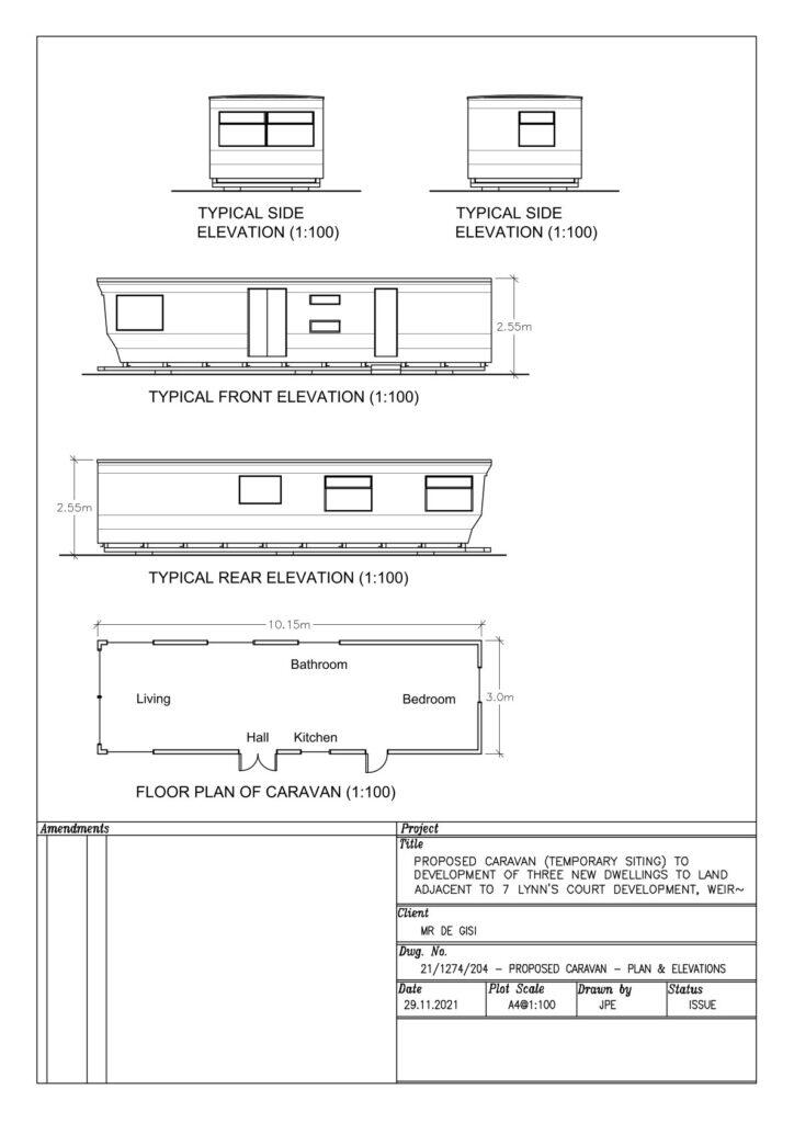
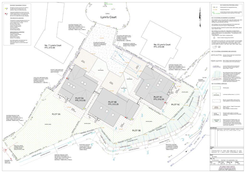
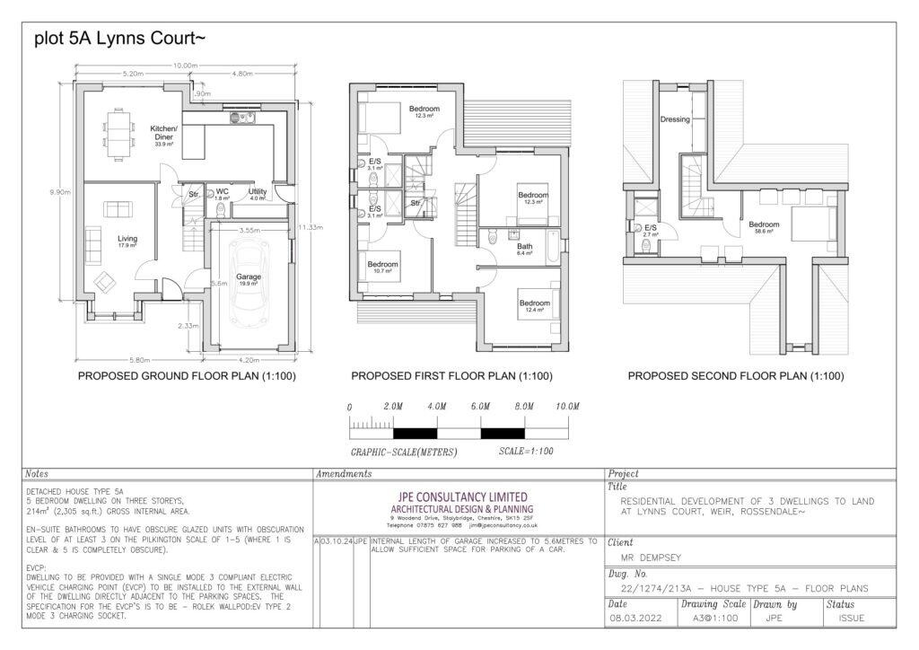
Fantastic development opportunity with full planning permission for three luxury detached homes on a 0.49-acre site in the sought-after village of Weir. Complete with detailed architectural plans, engineered retaining structures, and approved landscaping layouts, this plot offers exceptional pote...
Property Oracle says ..
This is a plot of land with planning permission for three dwellings, located in Lynns Court, Weir, Rossendale. The location is favorable, with proximity to schools and transportation. However, as it is undeveloped land, the condition requires complete construction. The land size is a notable asset, offering considerable scope for development. The asking price of £325,000 appears reasonable given the location and potential, but prospective buyers must factor in substantial construction costs.
Therefore, we give this property 5 / 10. *Disclaimer: This is our option and does constitute a recommendation or financial advice. Do your own research. *
- Price
- 7
- Condition
- 1
- Location
- 7
- Land
- 8
- Bedrooms
- 5
- Bathrooms
- 2
The heatmap indicates the level of crime in the area. The color of the heatmap indicates the crime severity and recency.
Metrics Year-on-Year
- Average area value
- 212,000.00 £Decreased by 8.78 %
- Average area rental value
- 725.00 £/moDecreased by 35.15 %
- Est rental Yield
- 4.10 %Decreased by 28.94 %
- Crime Rate
- 26.00 %Unchanged by 0.00 %
Agent Activity
Coppenwall created the listing.
Nearby Schools
| Name | Type | Ofsted | Distance |
|---|---|---|---|
| Northern Primary School | Community School | Good | 0.79 KM |
| Bacup Thorn Primary School | Community School | Outstanding | 1.86 KM |
| Bacup Nursery School | Local Authority Nursery School | Outstanding | 1.86 KM |
| Sharneyford Primary School | Community School | Good | 1.92 KM |
| The Maden Community & Children'S Centre | Children's Centre | 2.43 KM |
Images
Nearby Streets
| Name | Average Price | Average Sqft | Distance |
|---|---|---|---|
| Melrose Terrace | £ 0 | 0 | 0.00 KM |
| Office Road | £ 426,650 | 0 | 0.00 KM |
| York Street | £ 0 | 0 | 0.00 KM |
| Woodland View | £ 170,000 | 0 | 0.00 KM |
| Keswick Drive | £ 274,975 | 0 | 0.00 KM |
Nearby Transport
| Name | NLC | TLC | Distance |
|---|---|---|---|
| Burnley Manchester Road | 2549 | BYM | 9.04 KM |
| Burnley Central | 2550 | BNC | 9.52 KM |
Nearby Listings
| Address | Price | Type | Score | Distance |
|---|---|---|---|---|
| Lynns Court, Weir, Rossendale | £ 325,000 | BUY | 5 / 10 | 0.00 KM |
| Lynns Court, Bacup, Lancashire, OL13 | £ 475,000 | BUY | 6 / 10 | 0.05 KM |
| Lynns Court, Weir, Rossendale | £ 500,000 | BUY | 7 / 10 | 0.05 KM |
| Nicola Close, Bacup | £ 300,000 | BUY | 7 / 10 | 0.09 KM |
| Weir Lane, Bacup | £ 200,000 | BUY | Unknown | 0.13 KM |
Nearby Properties
| Address | Price | Distance |
|---|---|---|
| 5 Lynns Court | £ 308,000 | 0.04 KM |
| 1 Lynns Court | £ 20,000 | 0.04 KM |
| 7 Lynns Court | £ 317,500 | 0.04 KM |
| 2 Rochester Close | £ 150,000 | 0.15 KM |
| 14 Nicola Close | £ 168,000 | 0.16 KM |