Amberley Road - Three Bed Duplex / Garden
By Ashley Milton
£ 1,050,000
Reviews
4 out of 5 stars
Ashley Milton says ..
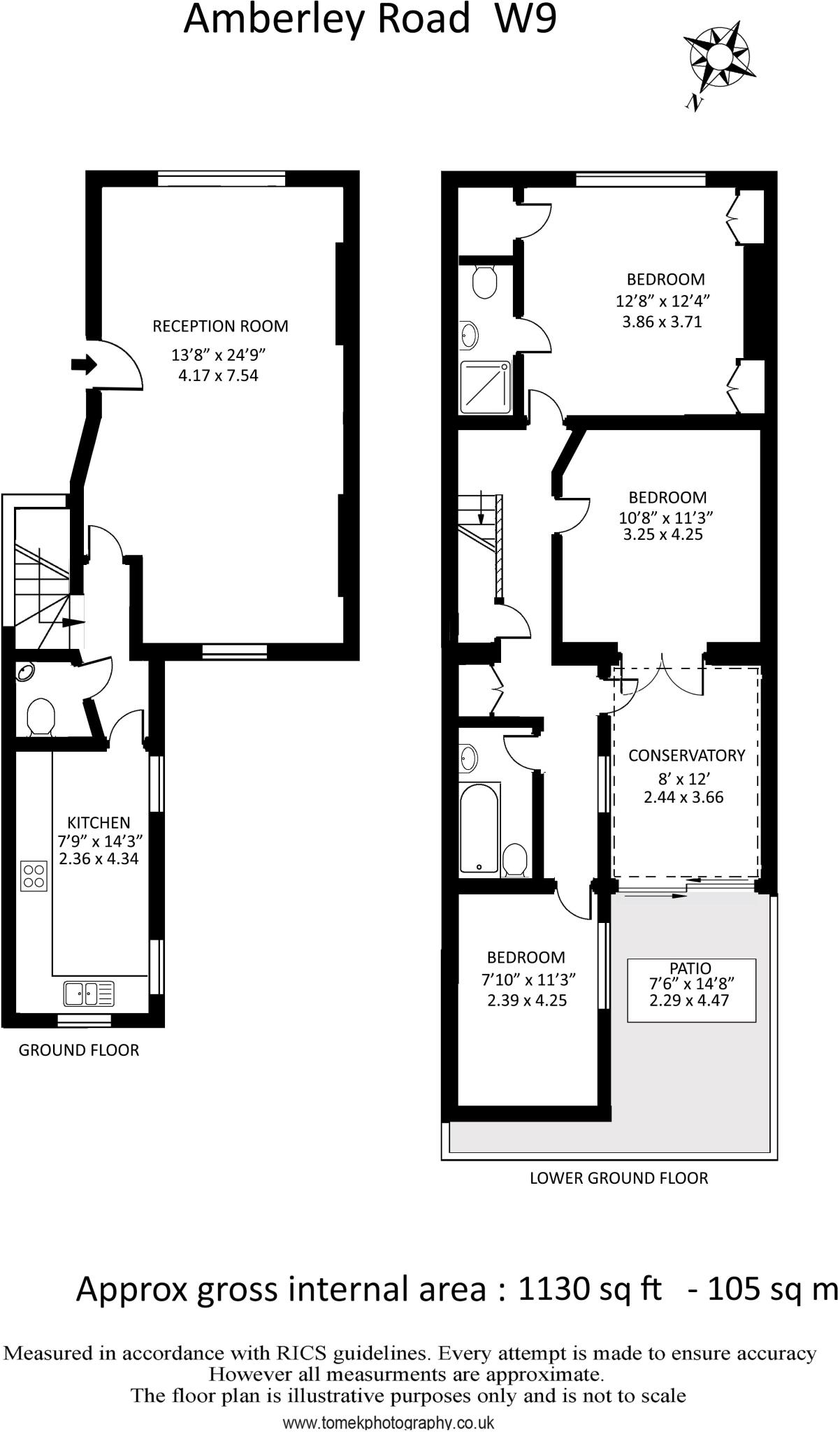
An immaculately presented three bedroomed duplex apartment arranged over the ground and lower ground floors of the well maintained period conversion. The property comprises: a through lounge / dining room, well appointed kitchen with breakfast bar, main bedroom with en-suite, two further double b...
Property Oracle says ..
This three-bedroom duplex apartment is located on Amberley Road in Westbourne, Westminster, a desirable area of London. The property benefits from a modern kitchen and bathrooms, and the interior is presented in excellent condition. The property also benefits from a good-sized garden, a rare find in this part of London. Transport links are good, with several stations within a reasonable distance. There are also highly-rated schools nearby. However, the list price is significantly higher than the average price for the area, and the average price per square foot is also higher than the average for similar properties. This might make the property less attractive to some buyers. Overall, it is a well-presented property in a good location, but the price may be a significant factor for potential buyers.
Therefore, we give this property 8 / 10. *Disclaimer: This is our option and does constitute a recommendation or financial advice. Do your own research. *
- Price
- 6
- Condition
- 9
- Location
- 9
- Land
- 8
- Bedrooms
- 3
- Bathrooms
- 3
- Sqft (est)
- 1,085.69
- Lot (est)
- 1,130.00
The heatmap indicates the level of crime in the area. The color of the heatmap indicates the crime severity and recency.
Metrics Year-on-Year
- Average area value
- 689,089.00 £Decreased by 2.95 %
- Est sale value
- 1,137,803.12 £Increased by 51.23 %
- Average area rental value
- 2,316.00 £/moIncreased by 5.08 %
- Est letting value
- 3,257.07 £/moIncreased by 50.00 %
- Est rental Yield
- 4.03 %Increased by 8.33 %
- Crime Rate
- 4.00 %Unchanged by 0.00 %
Agent Activity
Ashley Milton created the listing.
Nearby Schools
| Name | Type | Ofsted | Distance |
|---|---|---|---|
| Ark Atwood Primary Academy | Free Schools | Outstanding | 0.12 KM |
| Our Lady Of Dolours Catholic Primary | Voluntary Aided School | Good | 0.24 KM |
| Westminster Academy | Academy Sponsor Led | Outstanding | 0.25 KM |
| Paddington Academy | Academy Sponsor Led | Outstanding | 0.26 KM |
| St Mary Magdalene Cofe Primary School | Voluntary Aided School | Good | 0.32 KM |
Images
Nearby Streets
| Name | Average Price | Average Sqft | Distance |
|---|---|---|---|
| Sutherland Avenue | £ 0 | 0 | 0.00 KM |
| Thorngate Road | £ 800,000 | 0 | 0.00 KM |
| Chippenham Mews | £ 800,000 | 0 | 0.00 KM |
| Rowington Close | £ 0 | 0 | 0.00 KM |
| Formosa Street | £ 0 | 0 | 0.00 KM |
Nearby Transport
| Name | NLC | TLC | Distance |
|---|---|---|---|
| Kilburn High Road | 1415 | KBN | 1.58 KM |
| Queens Park (London) | 1419 | QPW | 1.82 KM |
| Paddington | 3087 | PAD | 1.99 KM |
| South Hampstead | 1451 | SOH | 2.55 KM |
| Brondesbury | 1437 | BSY | 2.68 KM |
Nearby Listings
| Address | Price | Type | Score | Distance |
|---|---|---|---|---|
| Amberley Road - Three Bed Duplex / Garden | £ 1,050,000 | BUY | 8 / 10 | 0.00 KM |
| Amberley Road, Maida Vale, London, W9 | £ 395,000 | BUY | Unknown | 0.00 KM |
| Amberley Road, WESTBOURNE GREEN | £ 235,000 | BUY | 5 / 10 | 0.00 KM |
| Amberley Road, WESTBOURNE GREEN | £ 195,000 | BUY | 5 / 10 | 0.00 KM |
| Amberley Road, Maida Vale | £ 475,000 | BUY | 6 / 10 | 0.02 KM |
Nearby Properties
| Address | Price | Distance |
|---|---|---|
| 51a Amberley Road | £ 290,000 | 0.00 KM |
| 51b Amberley Road | £ 53,000 | 0.02 KM |
| 51d Amberley Road | £ 465,000 | 0.02 KM |
| 71c Amberley Road | £ 272,000 | 0.02 KM |
| 56d Amberley Road | £ 220,500 | 0.02 KM |