Delisa Miller says ..
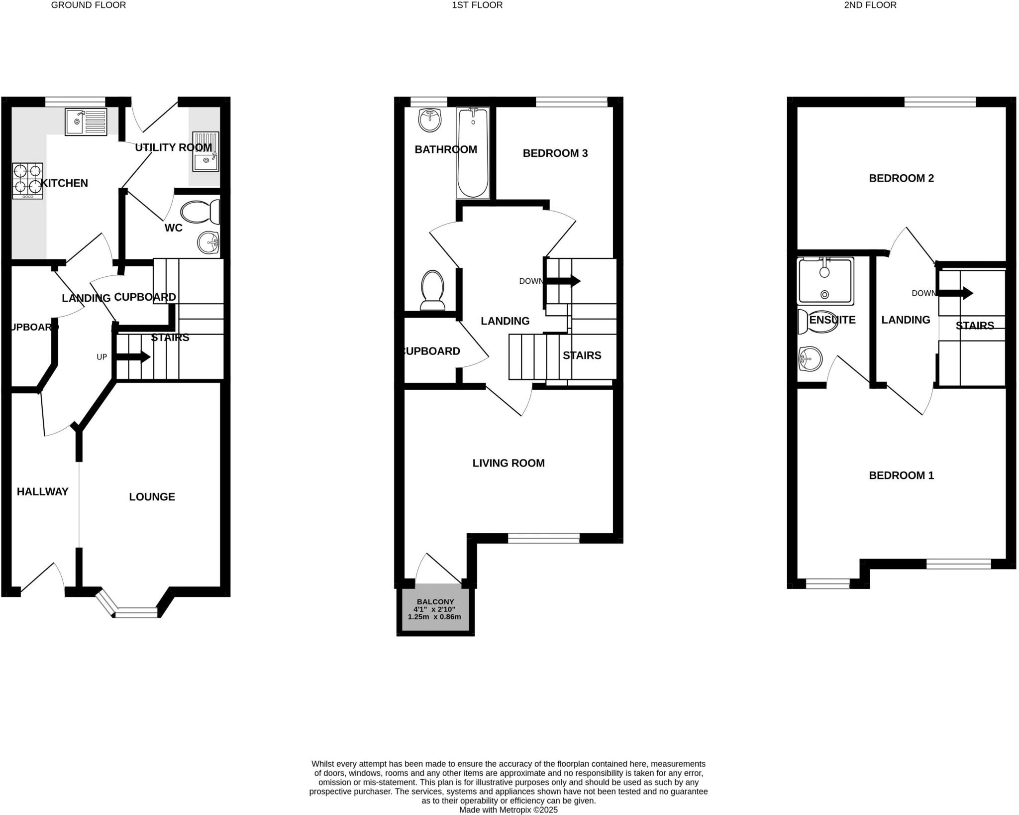
Delisa Miller are pleased to offer for sale this beautifully presented 3-bedroom family home, ideally located in a sought-after residential area with a balcony overlooking the stunning Hulme Park.Set over three spacious floors, this well-maintained property has been freshly painted throughout a...
Property Oracle says ..
This is a 3-bedroom property located on Dearden Street, Hulme, Manchester. The property offers 1,173 sqft of living space and is listed for £305,000. The property is in a good location, with convenient access to transportation and schools. While the property appears to be in generally good condition, some minor cosmetic updates could enhance its appeal. The lack of a significant garden or land area might be a drawback for some buyers. However, the price per square foot is lower than the area average, suggesting good value for money. The property is modern and well-maintained, making it an attractive option for potential buyers or renters.
Therefore, we give this property 6 / 10. *Disclaimer: This is our option and does constitute a recommendation or financial advice. Do your own research. *
- Price
- 7
- Condition
- 7
- Location
- 7
- Land
- 4
- Bedrooms
- 3
- Bathrooms
- 2
- Sqft (est)
- 1,173.00
The heatmap indicates the level of crime in the area. The color of the heatmap indicates the crime severity and recency.
Metrics Year-on-Year
- Average area value
- 268,192.00 £Increased by 9.79 %
- Est sale value
- 658,053.00 £Increased by 99.64 %
- Average area rental value
- 1,437.00 £/moDecreased by 10.24 %
- Est letting value
- 3,519.00 £/moIncreased by 200.00 %
- Est rental Yield
- 6.43 %Decreased by 18.19 %
- Crime Rate
- 0.00 %
Agent Activity
Delisa Miller created the listing.
Nearby Schools
| Name | Type | Ofsted | Distance |
|---|---|---|---|
| St Wilfrid'S Rc Primary School | Voluntary Aided School | Good | 0.17 KM |
| Rolls Crescent Primary School | Academy Converter | 0.34 KM | |
| Loreto College | Further Education | Outstanding | 0.51 KM |
| Included | Other Independent Special School | Good | 0.85 KM |
| St Philip'S Church Of England Primary School | Voluntary Aided School | Good | 0.90 KM |
Images
Nearby Streets
| Name | Average Price | Average Sqft | Distance |
|---|---|---|---|
| Old York Street | £ 0 | 0 | 0.00 KM |
| Saint Wilfrids Street | £ 0 | 0 | 0.00 KM |
| Hornchurch Street | £ 0 | 0 | 0.00 KM |
| Rawkin Close | £ 0 | 0 | 0.00 KM |
| Pond Street | £ 0 | 0 | 0.00 KM |
Nearby Transport
| Name | NLC | TLC | Distance |
|---|---|---|---|
| Deansgate | 2963 | DGT | 0.80 KM |
| Manchester Oxford Road | 2966 | MCO | 1.44 KM |
| Salford Central | 2798 | SFD | 1.77 KM |
| Manchester Victoria | 2970 | MCV | 2.53 KM |
| Manchester Piccadilly | 2968 | MAN | 2.70 KM |
Nearby Listings
| Address | Price | Type | Score | Distance |
|---|---|---|---|---|
| Dearden Street, Manchester | £ 305,000 | BUY | 6 / 10 | 0.00 KM |
| Old York Street, Manchester, M15 | £ 280,000 | BUY | 6 / 10 | 0.08 KM |
| Royce Road, Hulme, Manchester. M15 5LX | £ 245,000 | BUY | 7 / 10 | 0.09 KM |
| Royce Road, Hulme, Manchester. M15 5LX | £ 250,000 | BUY | Unknown | 0.09 KM |
| Old York Street, Hulme, Manchester. M15 5TH | £ 239,950 | BUY | 6 / 10 | 0.10 KM |
Nearby Properties
| Address | Price | Distance |
|---|---|---|
| 17 Dearden Street | £ 199,950 | 0.01 KM |
| 27 Dearden Street | £ 105,000 | 0.01 KM |
| 5c Dearden Street | £ 142,000 | 0.01 KM |
| 19 Dearden Street | £ 187,000 | 0.01 KM |
| 1c Dearden Street | £ 119,999 | 0.01 KM |