CO
Delaware Mansions, Maida Vale, W9
By Compton Reeback
£ 665,000
Compton Reeback says ..
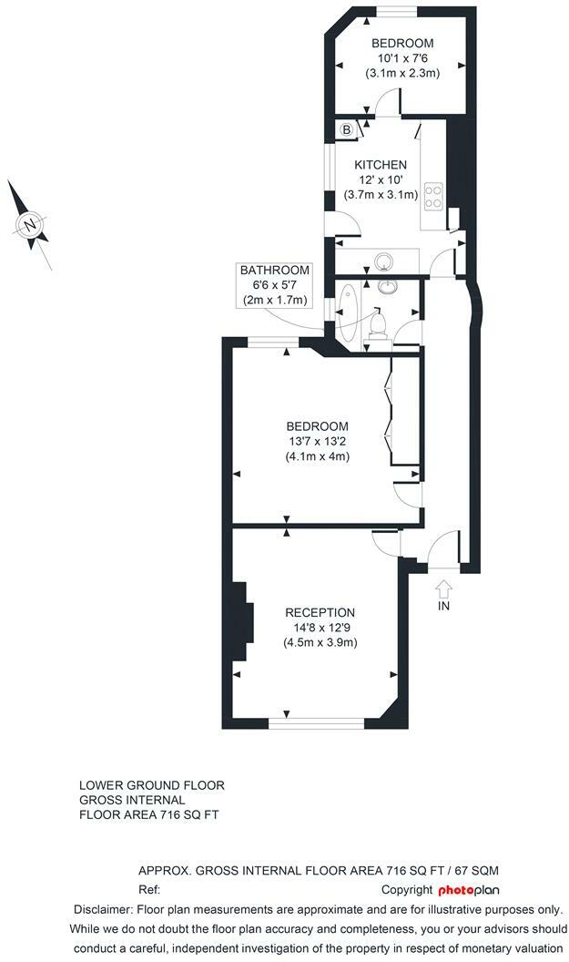
We are delighted to offer for sale this two bedroom, lower ground floor apartment that enjoys tremendous natural light and well planned and comfortable accommodation and has direct access to communal patio area. The property has been maintained to a high standard and boasts a good size reception ...
- Bedrooms
- 2
- Bathrooms
- 1
The heatmap indicates the level of crime in the area. The color of the heatmap indicates the crime severity and recency.
Metrics Year-on-Year
- Average area value
- 630,000.00 £Decreased by 29.87 %
- Average area rental value
- 2,249.00 £/moDecreased by 5.58 %
- Est rental Yield
- 4.28 %Increased by 34.59 %
- Crime Rate
- 2.00 %Unchanged by 0.00 %
from 898,380.00 £
from 2,382.00 £/mo
from 3.18 %
from 2.00 %
Agent Activity
Compton Reeback created the listing.
Nearby Schools
| Name | Type | Ofsted | Distance |
|---|---|---|---|
| Paddington Academy | Academy Sponsor Led | Outstanding | 0.21 KM |
| Ark Atwood Primary Academy | Free Schools | Outstanding | 0.39 KM |
| St Mary Magdalene Cofe Primary School | Voluntary Aided School | Good | 0.42 KM |
| St Saviour'S Cofe Primary School | Voluntary Aided School | Outstanding | 0.50 KM |
| Essendine Primary School | Community School | Good | 0.54 KM |
Images
Nearby Streets
| Name | Average Price | Average Sqft | Distance |
|---|---|---|---|
| Thorngate Road | £ 800,000 | 0 | 0.00 KM |
| Formosa Street | £ 0 | 0 | 0.00 KM |
| Shirland Road | £ 0 | 0 | 0.00 KM |
| Rowington Close | £ 0 | 0 | 0.00 KM |
| Sutherland Avenue | £ 0 | 0 | 0.00 KM |
Nearby Transport
| Name | NLC | TLC | Distance |
|---|---|---|---|
| Kilburn High Road | 1415 | KBN | 1.24 KM |
| Queens Park (London) | 1419 | QPW | 1.82 KM |
| Paddington | 3087 | PAD | 1.95 KM |
| South Hampstead | 1451 | SOH | 2.11 KM |
| West Hampstead | 1421 | WHD | 2.35 KM |
Nearby Listings
| Address | Price | Type | Score | Distance |
|---|---|---|---|---|
| Delaware Mansions, Delaware Road, Maida Vale W9 | £ 860,000 | BUY | 5 / 10 | 0.00 KM |
| Delaware Road, London | £ 625,000 | BUY | 5 / 10 | 0.01 KM |
| 60 Delaware Mansions, Delaware Road, Maida Vale, London, W9 2LJ | £ 520,000 | BUY | 4 / 10 | 0.02 KM |
| Delaware Road, London, W9 | £ 750,000 | BUY | 6 / 10 | 0.03 KM |
| Delaware Mansions, Delaware Road, Maida Vale, London, W9 | £ 725,000 | BUY | 7 / 10 | 0.04 KM |
Nearby Properties
| Address | Price | Distance |
|---|---|---|
| 81a Shirland Road | £ 177,000 | 0.11 KM |
| 69a Shirland Road | £ 790,000 | 0.11 KM |
| 65 Shirland Road | £ 1,407,000 | 0.11 KM |
| 103c Shirland Road | £ 355,000 | 0.11 KM |
| 65a Shirland Road | £ 1,550,000 | 0.13 KM |