Foundations Independent Est Ltd says ..
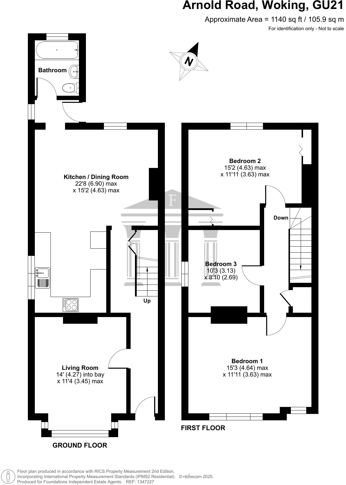
This charming three-bedroom semi-detached period home is ideally situated within walking distance of Woking Town Centre and its highly regarded mainline station, offering excellent convenience for commuters and access to a wide range of local amenities. Combining characterful features with practi...
Property Oracle says ..
This is a three-bedroom semi-detached house located in Canalside, Woking. The property offers 963.08 sqft of living space and includes a garden. While the property is in a good location, close to schools and transport links, it requires some modernisation, particularly in the kitchen and bathroom. The asking price of £440,000 is slightly above the average for the area, considering the condition of the property.
Therefore, we give this property 6 / 10. *Disclaimer: This is our option and does constitute a recommendation or financial advice. Do your own research. *
- Price
- 6
- Condition
- 5
- Location
- 7
- Land
- 7
- Bedrooms
- 3
- Bathrooms
- 1
- Sqft (est)
- 963.08
The heatmap indicates the level of crime in the area. The color of the heatmap indicates the crime severity and recency.
Metrics Year-on-Year
- Average area value
- 149,750.00 £Decreased by 62.13 %
- Est sale value
- 283,145.52 £Decreased by 36.09 %
- Average area rental value
- 1,531.00 £/moDecreased by 8.76 %
- Est letting value
- 2,889.24 £/moIncreased by 200.00 %
- Est rental Yield
- 12.27 %Increased by 141.06 %
- Crime Rate
- 16.00 %Unchanged by 0.00 %
Agent Activity
Foundations Independent Est Ltd created the listing.
Nearby Schools
| Name | Type | Ofsted | Distance |
|---|---|---|---|
| New Monument Primary Academy | Academy Converter | Good | 0.65 KM |
| St Dunstan'S Catholic Primary School, Woking | Voluntary Aided School | Outstanding | 1.05 KM |
| Greenfield School | Other Independent School | 1.07 KM | |
| Halstead Preparatory School | Other Independent School | 1.25 KM | |
| Maybury Primary School | Academy Converter | 1.27 KM |
Images
Nearby Streets
| Name | Average Price | Average Sqft | Distance |
|---|---|---|---|
| Monument Mews | £ 0 | 0 | 0.00 KM |
| Kent Road | £ 0 | 0 | 0.00 KM |
| Oak Lane | £ 600,000 | 0 | 0.00 KM |
| Kingsmead | £ 0 | 0 | 0.00 KM |
| Hidcote Close | £ 0 | 0 | 0.00 KM |
Nearby Transport
| Name | NLC | TLC | Distance |
|---|---|---|---|
| Woking | 5685 | WOK | 2.01 KM |
| West Byfleet | 5684 | WBY | 4.14 KM |
| Worplesdon | 5686 | WPL | 6.22 KM |
| Byfleet And New Haw | 5689 | BFN | 7.05 KM |
| Chertsey | 5553 | CHY | 7.62 KM |
Nearby Listings
| Address | Price | Type | Score | Distance |
|---|---|---|---|---|
| WOKING | £ 440,000 | BUY | 6 / 10 | 0.00 KM |
| Arnold Road, Woking, Surrey, GU21 | £ 450,000 | BUY | 6 / 10 | 0.02 KM |
| Eve Road, Woking, Surrey, GU21 | £ 275,000 | BUY | 4 / 10 | 0.07 KM |
| Eve Road, Woking, Surrey, GU21 | £ 425,000 | BUY | 7 / 10 | 0.07 KM |
| WOKING | £ 475,000 | BUY | 7 / 10 | 0.07 KM |
Nearby Properties
| Address | Price | Distance |
|---|---|---|
| 26 Arnold Road | £ 76,500 | 0.00 KM |
| 16 Arnold Road | £ 422,000 | 0.00 KM |
| 54a Arnold Road | £ 195,000 | 0.00 KM |
| 22 Arnold Road | £ 203,000 | 0.00 KM |
| 18 Arnold Road | £ 237,500 | 0.00 KM |