Barnsley Road, Denby Dale, HD8
By Simon Blyth
£ 400,000
Reviews
3 out of 5 stars
Simon Blyth says ..
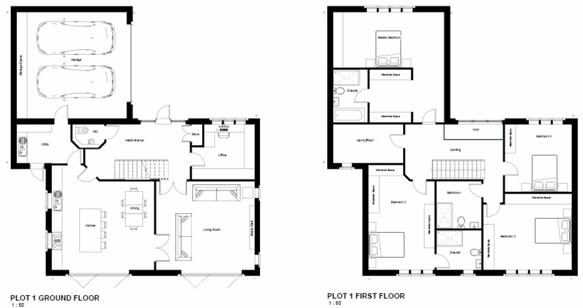
A RARE OPPORTUNITY TO PURCHASE A LARGE AND SIGNIFICANT PLOT IN AN EXCLUSIVE LOCATION. THIS HUGE, FAMILY HOME CAN BE BUILT TO YOUR OWN DESIGNS AND STANDARDS. PLANS ARE DRAWN TO SHOW A LOVELY, WELCOMING, FIVE BEDROOMED ACCOMMODATION. THE HOUSE SITS SUPERBLY ON THIS PLOT AND ENJOYS LOVELY VIEWS O...
Property Oracle says ..
This is a modern, detached property located on Barnsley Road in Denby Dale, Kirklees. The property features 5 bedrooms and 3 bathrooms, with a total square footage of 1,160. The property includes a garden and off-street parking. The location offers a balance between village life and accessibility to urban amenities. The property is in good condition and appears to be well-maintained. The asking price of £400,000 is reasonable given the property’s features, location, and condition.
Therefore, we give this property 7 / 10. *Disclaimer: This is our option and does constitute a recommendation or financial advice. Do your own research. *
- Price
- 7
- Condition
- 8
- Location
- 6
- Land
- 7
- Bedrooms
- 5
- Bathrooms
- 3
- Sqft (est)
- 1,160.00
The heatmap indicates the level of crime in the area. The color of the heatmap indicates the crime severity and recency.
Metrics Year-on-Year
- Average area value
- 319,163.00 £Decreased by 2.78 %
- Est sale value
- 344,520.00 £Increased by 37.50 %
- Average area rental value
- 1,450.00 £/moIncreased by 78.79 %
- Est letting value
- 1,160.00 £/mo
- Est rental Yield
- 5.45 %Increased by 84.12 %
- Crime Rate
- 0.00 %
Agent Activity
Simon Blyth created the listing.
Nearby Schools
| Name | Type | Ofsted | Distance |
|---|---|---|---|
| Denby Dale & Skelmanthorpe Children'S Centre | Children's Centre | 0.56 KM | |
| Denby Dale First And Nursery School | Community School | Requires improvement | 1.17 KM |
| Denby Church Of England Voluntary Aided First School | Voluntary Aided School | Good | 1.27 KM |
| St Aidan'S Church Of England Academy | Academy Converter | Good | 2.25 KM |
| Skelmanthorpe Academy | Academy Converter | Good | 2.73 KM |
Images
Nearby Streets
| Name | Average Price | Average Sqft | Distance |
|---|---|---|---|
| Ash Well Grove | £ 479,286 | 0 | 0.00 KM |
| Old School Court | £ 0 | 0 | 0.00 KM |
| Gunthwaite Lane | £ 0 | 0 | 0.00 KM |
| Stubbin Lane | £ 0 | 0 | 0.00 KM |
Nearby Transport
| Name | NLC | TLC | Distance |
|---|---|---|---|
| Denby Dale | 8432 | DBD | 1.20 KM |
| Penistone | 6634 | PNS | 5.85 KM |
| Shepley | 8448 | SPY | 6.14 KM |
| Stocksmoor | 8451 | SSM | 8.25 KM |
Nearby Listings
| Address | Price | Type | Score | Distance |
|---|---|---|---|---|
| Barnsley Road, Denby Dale, HD8 | £ 400,000 | BUY | 7 / 10 | 0.00 KM |
| Barnsley Road, Denby Dale, Huddersfield, HD8 | £ 250,000 | BUY | 7 / 10 | 0.03 KM |
| Plot 29 The Willows, Barnsley Road, Denby Dale, Huddersfield, HD8 | £ 480,000 | BUY | 7 / 10 | 0.15 KM |
| PLOT 23, The Willows, Barnsley Road, Denby Dale, HD8 | £ 399,000 | BUY | 7 / 10 | 0.21 KM |
| PLOT 26, The Willows, Barnsley Road, Denby Dale HD8 | £ 565,000 | BUY | 7 / 10 | 0.21 KM |
Nearby Properties
| Address | Price | Distance |
|---|---|---|
| 201 Barnsley Road | £ 202,000 | 0.23 KM |
| 200 Barnsley Road | £ 117,000 | 0.23 KM |
| 170 Barnsley Road | £ 630,000 | 0.23 KM |
| 217 Barnsley Road | £ 230,000 | 0.23 KM |
| 206 Barnsley Road | £ 380,000 | 0.23 KM |