Allday & Miller says ..
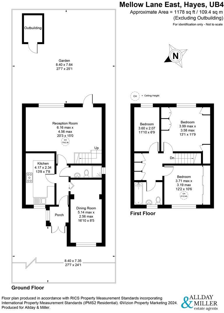
This well-presented and spacious three-bedroom detached family home has been modernised throughout, offering a blend of contemporary design and comfort. The property is located in the sought area of Hayes End.
Property Oracle says ..
This three-bedroom detached house located on Mellow Lane East in Hayes, Hillingdon, is presented as a well-maintained family home. The property boasts a modern interior, with updated fixtures and fittings evident in the provided photographs. The kitchen and bathrooms appear to be recently renovated, contributing to the overall contemporary feel. The inclusion of a garden, although seemingly modest in size, is a valuable asset, especially for families. The location offers convenient access to transportation links, including TfL Rail and the London Underground, facilitating commutes to central London. The presence of several schools nearby, some with good Ofsted ratings, further enhances its appeal to families. The list price of £600,000 appears to be in line with market values for similar properties in the area, although a precise price per square foot analysis is not possible due to missing data. Overall, this property presents a solid option for buyers seeking a well-maintained, modern family home in a convenient location with reasonable transport links and nearby schools.
Therefore, we give this property 6 / 10. *Disclaimer: This is our option and does constitute a recommendation or financial advice. Do your own research. *
- Price
- 7
- Condition
- 8
- Location
- 7
- Land
- 4
- Bedrooms
- 3
- Bathrooms
- 2
The heatmap indicates the level of crime in the area. The color of the heatmap indicates the crime severity and recency.
Metrics Year-on-Year
- Average area value
- 412,273.00 £Increased by 8.72 %
- Average area rental value
- 1,245.00 £/moIncreased by 0.97 %
- Est rental Yield
- 3.62 %Decreased by 7.18 %
- Crime Rate
- 1.00 %Unchanged by 0.00 %
Agent Activity
Allday & Miller created the listing.
Nearby Schools
| Name | Type | Ofsted | Distance |
|---|---|---|---|
| De Salis Studio College | Studio Schools | Good | 0.59 KM |
| Hewens Primary School | Free Schools | Good | 0.59 KM |
| Hewens College | Academy Converter | Requires improvement | 0.59 KM |
| Charville Children'S Centre | Children's Centre | 0.98 KM | |
| Rosedale Primary School | Academy Sponsor Led | Good | 1.03 KM |
Images
Nearby Streets
| Name | Average Price | Average Sqft | Distance |
|---|---|---|---|
| Church Close | £ 460,000 | 0 | 0.00 KM |
| The Oaks | £ 0 | 0 | 0.00 KM |
| Kingswood Place | £ 250,000 | 0 | 0.00 KM |
| Blake Close | £ 0 | 0 | 0.00 KM |
| Victoria Close | £ 535,000 | 0 | 0.00 KM |
Nearby Transport
| Name | NLC | TLC | Distance |
|---|---|---|---|
| Hayes And Harlington | 3186 | HAY | 3.29 KM |
| West Ruislip | 3059 | WRU | 4.51 KM |
| West Drayton | 3174 | WDT | 4.71 KM |
| South Ruislip | 3057 | SRU | 4.94 KM |
| Southall | 3187 | STL | 6.69 KM |
Nearby Listings
| Address | Price | Type | Score | Distance |
|---|---|---|---|---|
| Mellow Lane East, Hayes | £ 600,000 | BUY | 6 / 10 | 0.00 KM |
| Mellow Lane East, Hayes | £ 575,000 | BUY | 6 / 10 | 0.04 KM |
| Mellow Lane East, Hayes | £ 550,000 | BUY | 6 / 10 | 0.04 KM |
| Hayes End Road, Hayes | £ 525,000 | BUY | 5 / 10 | 0.06 KM |
| Hayes End Road, Hayes | £ 450,000 | BUY | 4 / 10 | 0.08 KM |
Nearby Properties
| Address | Price | Distance |
|---|---|---|
| 68 Hayes End Drive | £ 460,000 | 0.09 KM |
| 82 Hayes End Drive | £ 274,000 | 0.09 KM |
| 81 Hayes End Drive | £ 355,000 | 0.09 KM |
| 72 Hayes End Drive | £ 241,000 | 0.09 KM |
| 60 Hayes End Drive | £ 205,000 | 0.09 KM |