Fairway Heights, CAMBERLEY, GU15
By Jigsaw Estates
£ 500,000
Reviews
3 out of 5 stars
Jigsaw Estates says ..
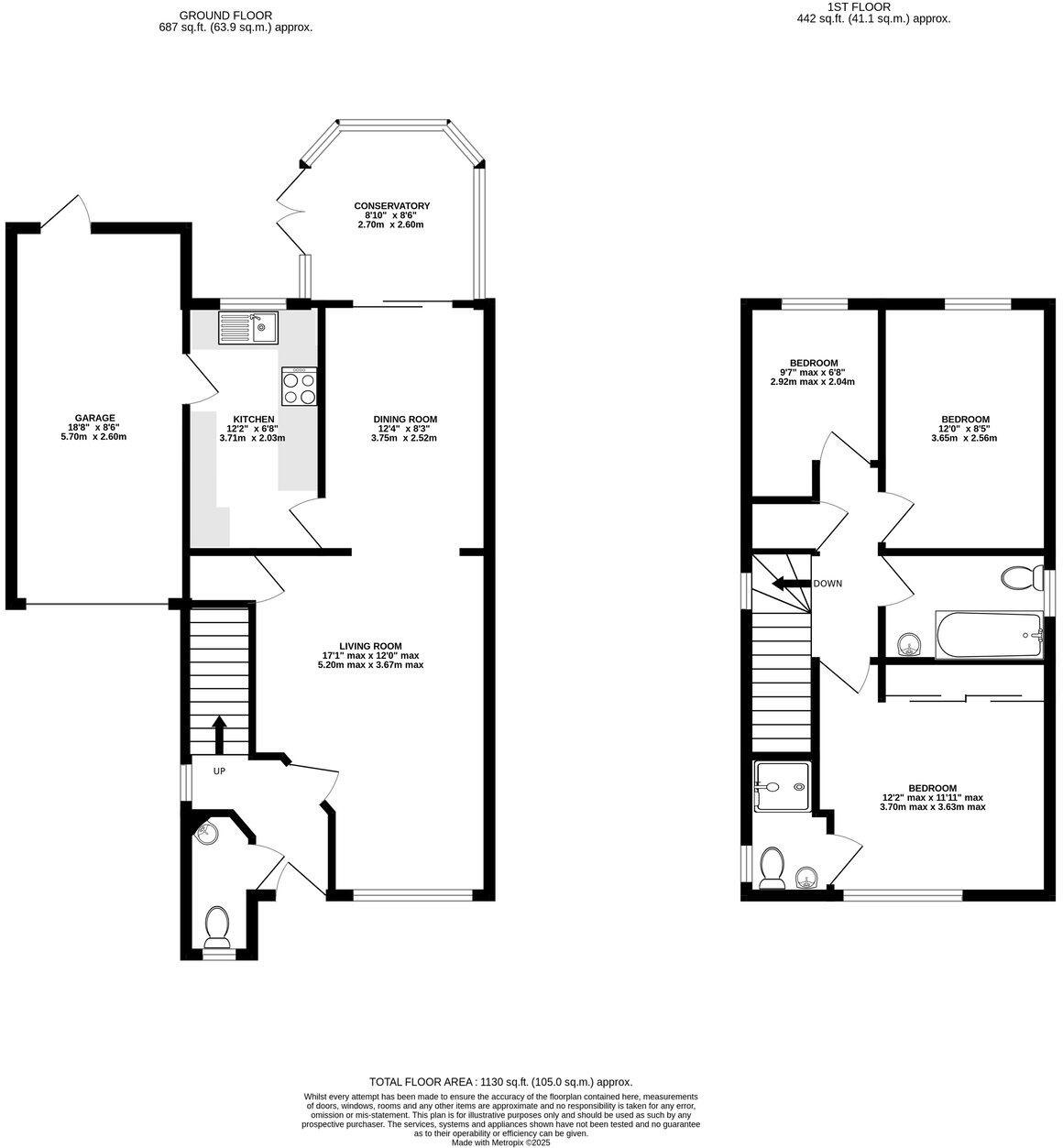
Jigsaw Estates are excited to offer this excellently presented, link detached home located in a corner position of a small cul-de-sac. The current owner has maintained the property to a high standard and you won't be disappointed! In terms of accommodation there are three bedrooms ...
Property Oracle says ..
This property is a 3-bedroom, 2-bathroom link detached house located in Camberley, Surrey. The list price is £500,000, and the property has a plot size of 1,130 sqft. The average price for similar properties in the area is £546,667, with an average price per sqft of £320. The property appears to be in good condition, with a modern kitchen and updated bathrooms. There is a well-maintained garden. The location is convenient, with several schools and transportation options nearby. Considering the condition, location, and land size, the list price appears to be reasonable.
Therefore, we give this property 7 / 10. *Disclaimer: This is our option and does constitute a recommendation or financial advice. Do your own research. *
- Price
- 7
- Condition
- 8
- Location
- 8
- Land
- 7
- Bedrooms
- 3
- Bathrooms
- 2
- Sqft (est)
- 1,030.00
- Lot (est)
- 1,130.00
The heatmap indicates the level of crime in the area. The color of the heatmap indicates the crime severity and recency.
Metrics Year-on-Year
- Average area value
- 568,571.00 £Decreased by 4.85 %
- Est sale value
- 553,110.00 £Increased by 10.95 %
- Average area rental value
- 2,275.00 £/moIncreased by 44.90 %
- Est letting value
- 2,060.00 £/moIncreased by 100.00 %
- Est rental Yield
- 4.80 %Increased by 52.38 %
- Crime Rate
- 3.00 %Unchanged by 0.00 %
Agent Activity
Jigsaw Estates marked this listing as sold.
Jigsaw Estates created the listing.
Nearby Schools
| Name | Type | Ofsted | Distance |
|---|---|---|---|
| Prior Heath Infant School | Community School | Good | 1.00 KM |
| Crawley Ridge Junior School | Academy Converter | 1.33 KM | |
| Crawley Ridge Infant School | Academy Converter | 1.33 KM | |
| Carwarden House Community School | Academy Special Converter | Good | 1.49 KM |
| Heather Ridge Infant School | Community School | Outstanding | 1.62 KM |
Images
Nearby Streets
| Name | Average Price | Average Sqft | Distance |
|---|---|---|---|
| Clewborough Drive | £ 700,000 | 0 | 0.00 KM |
| Youlden Drive | £ 0 | 0 | 0.00 KM |
| Burgoyne Road | £ 650,000 | 0 | 0.00 KM |
| Eliot Close | £ 0 | 0 | 0.00 KM |
| Langdon Close | £ 0 | 0 | 0.00 KM |
Nearby Transport
| Name | NLC | TLC | Distance |
|---|---|---|---|
| Camberley | 5682 | CAM | 3.52 KM |
| Bagshot | 5681 | BAG | 3.96 KM |
| Frimley | 5683 | FML | 4.79 KM |
| Farnborough North | 5688 | FNN | 5.22 KM |
| Farnborough (Main) | 5521 | FNB | 6.63 KM |
Nearby Listings
| Address | Price | Type | Score | Distance |
|---|---|---|---|---|
| Fairway Heights, CAMBERLEY, GU15 | £ 500,000 | BUY | 7 / 10 | 0.00 KM |
| Fairway Heights, Camberley, Surrey, GU15 | £ 800,000 | BUY | Unknown | 0.07 KM |
| Fairway Heights, Camberley, Surrey | £ 875,000 | BUY | 6 / 10 | 0.08 KM |
| Fairway Heights, Camberley | £ 200,000 | BUY | 6 / 10 | 0.09 KM |
| Fairway Heights, Camberley | £ 200,000 | BUY | 7 / 10 | 0.11 KM |
Nearby Properties
| Address | Price | Distance |
|---|---|---|
| 38 Fairway Heights | £ 125,000 | 0.08 KM |
| 45 Fairway Heights | £ 329,995 | 0.08 KM |
| 35 Fairway Heights | £ 125,000 | 0.08 KM |
| 36 Fairway Heights | £ 170,000 | 0.08 KM |
| 2 Fairway Heights | £ 675,000 | 0.08 KM |