Elmfield Crescent, Exmouth
By Links Estate Agents
£ 425,000
Reviews
3 out of 5 stars
Links Estate Agents says ..
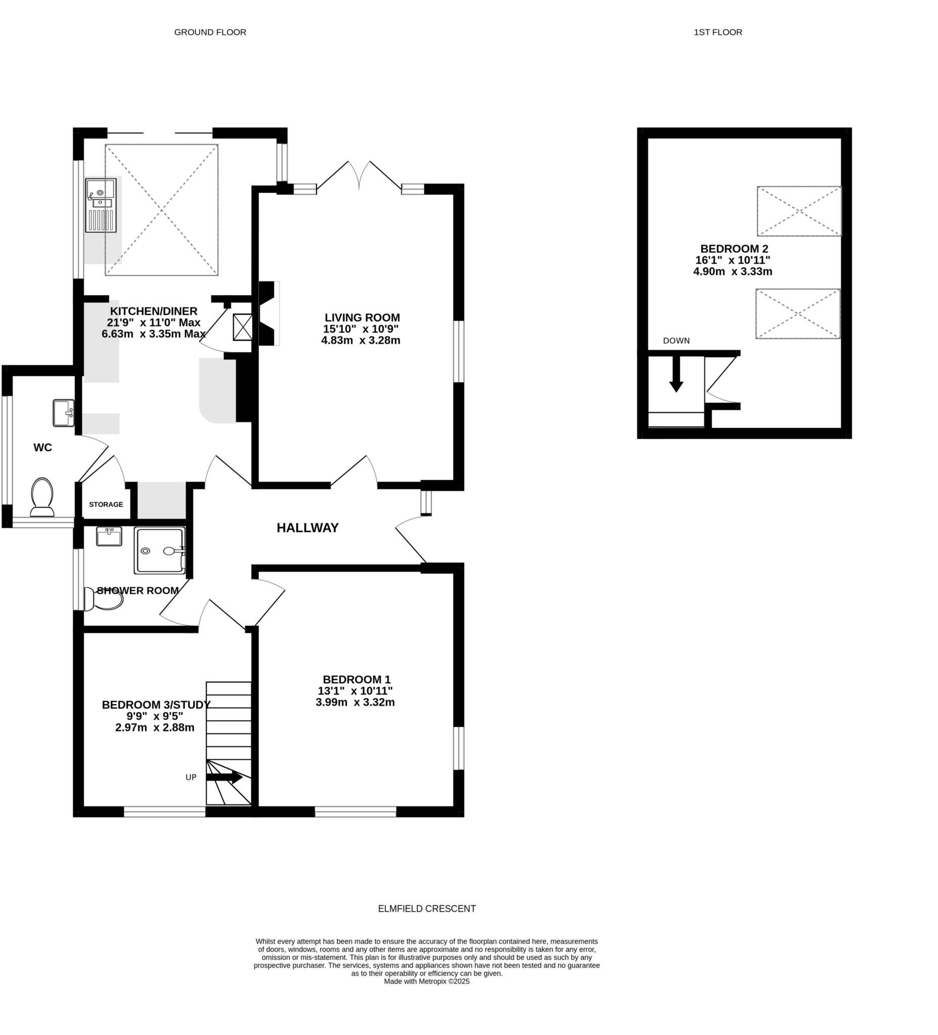
A superb 2/3 bedroom extended detached chalet style bungalow tucked away in a sought after location close to local bus services and a local post office store. Internally the property is beautifully presented and externally there are stunning mature gardens.
Property Oracle says ..
This is a detached bungalow in Exmouth, Devon, listed by Links Estate Agents. The property features three bedrooms and one bathroom. While the square footage isn’t provided, the property includes a well-maintained garden with a shed and patio. The interior appears to be modern and in good condition. The location is residential, close to schools and approximately 2km from the train station. The asking price is slightly above the average for the area, but this reflects that it is a detached property.
Therefore, we give this property 7 / 10. *Disclaimer: This is our option and does constitute a recommendation or financial advice. Do your own research. *
- Price
- 6
- Condition
- 8
- Location
- 7
- Land
- 7
- Bedrooms
- 3
- Bathrooms
- 1
The heatmap indicates the level of crime in the area. The color of the heatmap indicates the crime severity and recency.
Metrics Year-on-Year
- Average area value
- 391,731.00 £Decreased by 6.30 %
- Average area rental value
- 1,432.00 £/moIncreased by 19.33 %
- Est rental Yield
- 4.39 %Increased by 27.62 %
- Crime Rate
- 2.00 %Unchanged by 0.00 %
Agent Activity
Links Estate Agents created the listing.
Nearby Schools
| Name | Type | Ofsted | Distance |
|---|---|---|---|
| Exmouth Community College | Academy Converter | Requires improvement | 1.11 KM |
| Withycombe Raleigh Church Of England Primary School | Voluntary Controlled School | Good | 1.21 KM |
| Brixington Primary Academy | Academy Sponsor Led | Requires improvement | 1.46 KM |
| Exmouth & District Children'S Centre | Children's Centre | 1.59 KM | |
| Exeter Road Community Primary School | Foundation School | Good | 1.70 KM |
Images
Nearby Streets
| Name | Average Price | Average Sqft | Distance |
|---|---|---|---|
| Seymour Road | £ 0 | 0 | 0.00 KM |
| Orchard Close | £ 440,000 | 0 | 0.00 KM |
| Victoria Gardens | £ 375,000 | 0 | 0.00 KM |
| Shackleton Close | £ 0 | 0 | 0.00 KM |
| Pound Lane | £ 0 | 0 | 0.00 KM |
Nearby Transport
| Name | NLC | TLC | Distance |
|---|---|---|---|
| Exmouth | 5756 | EXM | 1.91 KM |
| Lympstone Village | 5761 | LYM | 2.90 KM |
| Starcross | 3413 | SCS | 4.59 KM |
| Lympstone Commando | 5762 | LYC | 4.65 KM |
| Exton | 5760 | EXN | 5.35 KM |
Nearby Listings
| Address | Price | Type | Score | Distance |
|---|---|---|---|---|
| Elmfield Crescent, Exmouth | £ 425,000 | BUY | 7 / 10 | 0.00 KM |
| Elmfield Crescent, Exmouth, eX8 3BW | £ 295,000 | BUY | 5 / 10 | 0.06 KM |
| Elmfield Crescent, Exmouth, EX8 3BW | £ 315,000 | BUY | 7 / 10 | 0.06 KM |
| Ash Grove, Exmouth, Devon | £ 300,000 | BUY | 6 / 10 | 0.07 KM |
| Ash Grove, Exmouth, Devon, EX8 | £ 201,000 | BUY | 6 / 10 | 0.11 KM |
Nearby Properties
| Address | Price | Distance |
|---|---|---|
| 84 Elmfield Crescent | £ 269,950 | 0.06 KM |
| 78 Elmfield Crescent | £ 252,000 | 0.06 KM |
| 70 Elmfield Crescent | £ 345,000 | 0.06 KM |
| 41 Elmfield Crescent | £ 224,950 | 0.06 KM |
| 74 Elmfield Crescent | £ 309,950 | 0.06 KM |