TH
Lawrence Road, Biggleswade, Bedfordshire, SG18
By Thomas Morris
£ 290,000
Reviews
3 out of 5 stars
Thomas Morris says ..
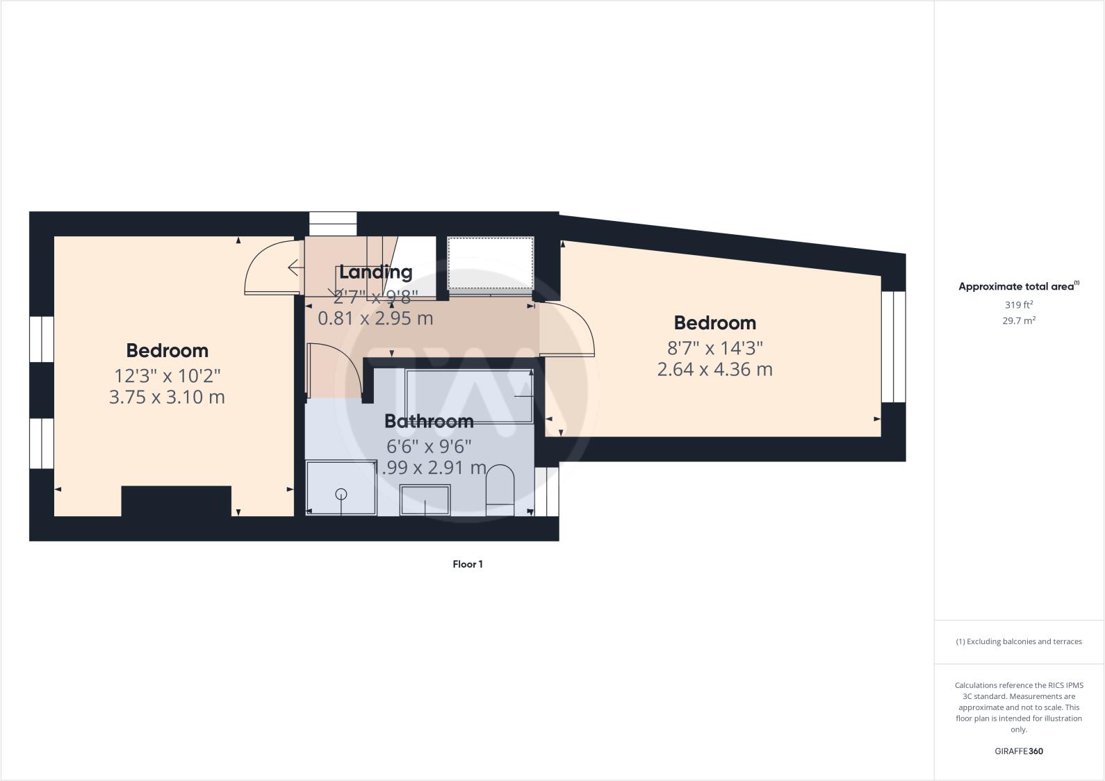
Offered to the market with no forward chain, a modernised and well-presented two bedroom character cottage with parking for up to four vehicles. Located just a 0.5 mile walk from Biggleswade mainline train station and town centre the property is conveniently located for shops, amenitie...
Property Oracle says ..
Therefore, we give this property 6 / 10. *Disclaimer: This is our option and does constitute a recommendation or financial advice. Do your own research. *
- Price
- 7
- Condition
- 7
- Location
- 7
- Land
- 6
- Bedrooms
- 2
- Bathrooms
- 1
- Sqft (est)
- 671.67
The heatmap indicates the level of crime in the area. The color of the heatmap indicates the crime severity and recency.
Metrics Year-on-Year
- Average area value
- 409,583.00 £Increased by 13.56 %
- Est sale value
- 300,236.49 £Increased by 19.84 %
- Average area rental value
- 1,510.00 £/moIncreased by 7.02 %
- Est letting value
- 671.67 £/moUnchanged by 0.00 %
- Est rental Yield
- 4.42 %Decreased by 5.76 %
- Crime Rate
- 15.00 %Unchanged by 0.00 %
from 360,664.00 £
from 250,532.91 £
from 1,411.00 £/mo
from 671.67 £/mo
from 4.69 %
from 15.00 %
Agent Activity
Thomas Morris created the listing.
Nearby Schools
| Name | Type | Ofsted | Distance |
|---|---|---|---|
| Biggleswade Children'S Centre | Children's Centre | 0.14 KM | |
| Lawnside Academy | Academy Converter | 0.20 KM | |
| St Andrew'S Cofe Vc Lower School | Voluntary Controlled School | Good | 0.89 KM |
| Ivel Valley School | Community Special School | Good | 0.94 KM |
| Stratton Upper School | Academy Converter | Requires improvement | 0.95 KM |
Images
Nearby Streets
| Name | Average Price | Average Sqft | Distance |
|---|---|---|---|
| Chestnut Avenue | £ 435,000 | 0 | 0.00 KM |
| Edward Road | £ 382,500 | 0 | 0.00 KM |
| Crab Lane | £ 0 | 0 | 0.00 KM |
| Churchill Court | £ 0 | 0 | 0.00 KM |
| Victoria Place | £ 165,000 | 0 | 0.00 KM |
Nearby Transport
| Name | NLC | TLC | Distance |
|---|---|---|---|
| Biggleswade | 6170 | BIW | 0.61 KM |
| Sandy | 6172 | SDY | 4.67 KM |
| Arlesey | 6171 | ARL | 7.11 KM |
Nearby Listings
| Address | Price | Type | Score | Distance |
|---|---|---|---|---|
| Lawrence Road, Biggleswade, Bedfordshire, SG18 | £ 290,000 | BUY | 6 / 10 | 0.00 KM |
| Lawrence Road, Biggleswade, SG18 | £ 269,950 | BUY | 7 / 10 | 0.02 KM |
| Lawrence Road, Biggleswade | £ 375,000 | BUY | 6 / 10 | 0.04 KM |
| Lawrence Road, Biggleswade | £ 250,000 | BUY | 7 / 10 | 0.07 KM |
| Lawrence Road, Biggleswade, Bedfordshire, SG18 | £ 240,000 | BUY | 6 / 10 | 0.08 KM |
Nearby Properties
| Address | Price | Distance |
|---|---|---|
| 8 Havelock Road | £ 150,000 | 0.10 KM |
| 1 Havelock Road | £ 247,500 | 0.10 KM |
| 4 Havelock Road | £ 315,000 | 0.10 KM |
| 13 Havelock Road | £ 151,000 | 0.10 KM |
| 9 Havelock Road | £ 325,000 | 0.10 KM |