Heywood Boulevard, Thingwall, Wirral, CH61
By Bradshaw Farnham & Lea
£ 275,000
Reviews
3 out of 5 stars
Bradshaw Farnham & Lea says ..
This beautifully presented two-bedroom semi-detached bungalow has been fully refurbished to a high standard and is offered with no ongoing chain, making it a perfect move-in-ready home. Ideally located in the popular area of Thingwall, it’s within easy reach of local amenities and excellent...
Property Oracle says ..
The property is a well-presented bungalow in a desirable location close to good schools and transport links. Recent renovations to the kitchen and bathroom are evident, and the property appears to be in good condition. The list price seems reasonably competitive within the local market, although a precise price per square foot comparison is impossible due to missing square footage data for this and comparable properties.
Therefore, we give this property 7 / 10. *Disclaimer: This is our option and does constitute a recommendation or financial advice. Do your own research. *
- Price
- 7
- Condition
- 9
- Location
- 8
- Land
- 7
- Bedrooms
- 2
- Bathrooms
- 1
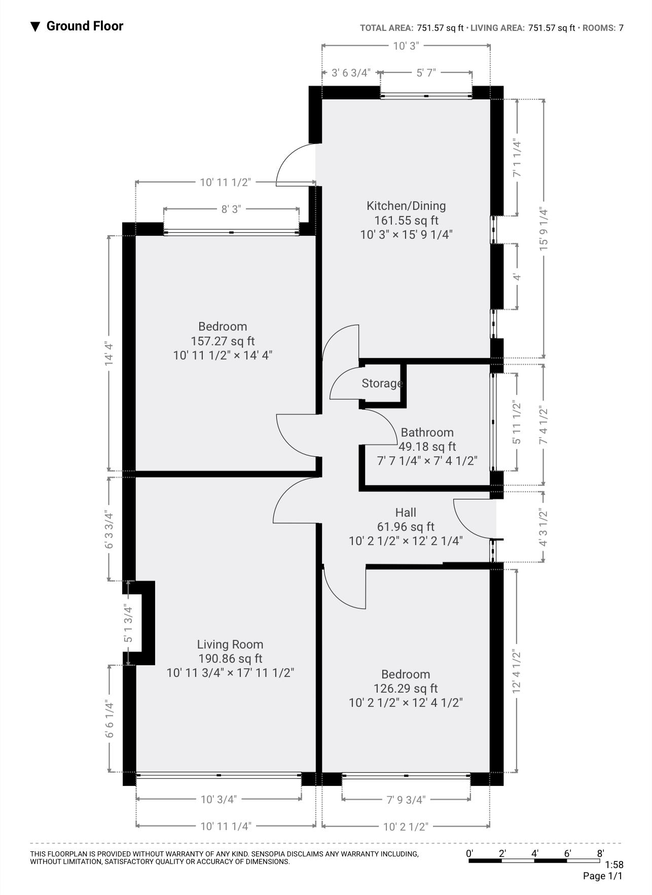
- Lot (est)
- 751.57
The heatmap indicates the level of crime in the area. The color of the heatmap indicates the crime severity and recency.
Metrics Year-on-Year
- Average area value
- 266,111.00 £Decreased by 9.63 %
- Average area rental value
- 1,200.00 £/moIncreased by 5.91 %
- Est rental Yield
- 5.41 %Increased by 17.10 %
- Crime Rate
- 8.00 %Unchanged by 0.00 %
Agent Activity
Bradshaw Farnham & Lea created the listing.
Nearby Schools
| Name | Type | Ofsted | Distance |
|---|---|---|---|
| Thingwall Primary School | Community School | Good | 0.20 KM |
| Pensby Primary School | Community School | Good | 1.61 KM |
| Stanley School | Community Special School | Good | 1.61 KM |
| South And West Hub - Pensby Children'S Centre | Children's Centre | 1.86 KM | |
| Ladymount Catholic Primary School | Voluntary Aided School | Good | 1.92 KM |
Images
Nearby Streets
| Name | Average Price | Average Sqft | Distance |
|---|---|---|---|
| Quarry Lane | £ 0 | 0 | 0.00 KM |
| Parkway | £ 0 | 0 | 0.00 KM |
| Sunningdale Drive | £ 0 | 0 | 0.00 KM |
| Church Lane | £ 150,000 | 0 | 0.00 KM |
| Woodlands Drive | £ 625,000 | 0 | 0.00 KM |
Nearby Transport
| Name | NLC | TLC | Distance |
|---|---|---|---|
| Upton (Merseyside) | 2141 | UPT | 3.60 KM |
| Heswall | 2138 | HSW | 3.71 KM |
| Leasowe | 2237 | LSW | 5.83 KM |
| Moreton (Merseyside) | 2151 | MRT | 6.08 KM |
| Bidston | 2136 | BID | 6.19 KM |
Nearby Listings
| Address | Price | Type | Score | Distance |
|---|---|---|---|---|
| Heywood Boulevard, Thingwall, Wirral, CH61 | £ 275,000 | BUY | 7 / 10 | 0.00 KM |
| Heywood Boulevard, Thingwall, Wirral | £ 275,000 | BUY | 7 / 10 | 0.03 KM |
| Heywood Boulevard, Wirral, CH61 | £ 260,000 | BUY | 7 / 10 | 0.04 KM |
| Heywood Boulevard, Wirral | £ 220,000 | BUY | 7 / 10 | 0.05 KM |
| Heywood Boulevard, Wirral | £ 240,000 | BUY | Unknown | 0.07 KM |
Nearby Properties
| Address | Price | Distance |
|---|---|---|
| 20 Heywood Boulevard | £ 186,500 | 0.03 KM |
| 78 Heywood Boulevard | £ 249,995 | 0.03 KM |
| 54 Heywood Boulevard | £ 177,000 | 0.03 KM |
| 46 Heywood Boulevard | £ 240,000 | 0.03 KM |
| 18 Heywood Boulevard | £ 105,000 | 0.03 KM |