SW
Bardolph Road, Richmond , LONDON, TW9
By Sworn & Co
£ 1,890,000
Sworn & Co says ..
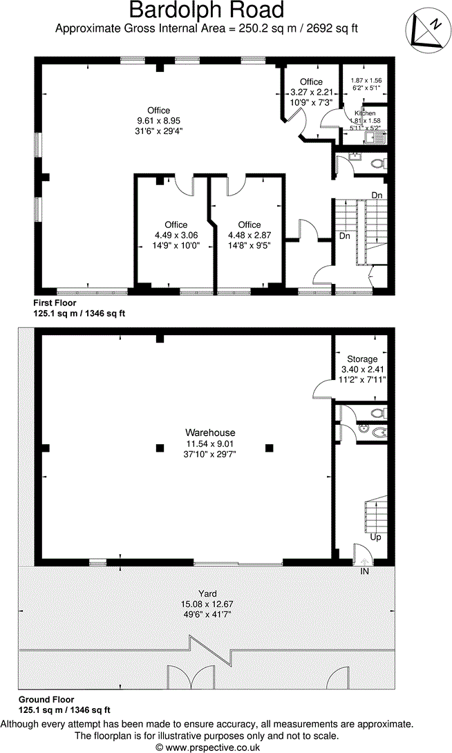
A fantastic opportunity to acquire a potential redevelopment site, subject to the usual planning consents. Located in a thriving area with several residential developments and conversions in the vicinity, this site offers significant potential for future development. The occupier is relocating, m...
- Bedrooms
- 0
- Bathrooms
- 0
The heatmap indicates the level of crime in the area. The color of the heatmap indicates the crime severity and recency.
Metrics Year-on-Year
- Average area value
- 1,108,545.00 £Increased by 17.50 %
- Average area rental value
- 3,071.00 £/moDecreased by 23.99 %
- Est rental Yield
- 3.32 %Decreased by 35.41 %
- Crime Rate
- 9.00 %Unchanged by 0.00 %
from 943,405.00 £
from 4,040.00 £/mo
from 5.14 %
from 9.00 %
Agent Activity
Sworn & Co created the listing.
Nearby Schools
| Name | Type | Ofsted | Distance |
|---|---|---|---|
| Windham Nursery School | Local Authority Nursery School | Outstanding | 0.23 KM |
| Windham Croft Children'S Centre | Children's Centre Linked Site | 0.27 KM | |
| Marshgate Primary School | Community School | Outstanding | 0.58 KM |
| Darell Primary And Nursery School | Community School | Good | 0.60 KM |
| Holy Trinity Church Of England Primary School | Voluntary Aided School | Outstanding | 0.62 KM |
Images
Nearby Streets
| Name | Average Price | Average Sqft | Distance |
|---|---|---|---|
| Peldon Passage | £ 0 | 0 | 0.00 KM |
| Walpole Avenue | £ 0 | 0 | 0.00 KM |
| Cranleigh Court | £ 0 | 0 | 0.00 KM |
| Canberra Place | £ 440,000 | 0 | 0.00 KM |
| Bog Lane | £ 0 | 0 | 0.00 KM |
Nearby Transport
| Name | NLC | TLC | Distance |
|---|---|---|---|
| North Sheen | 5601 | NSH | 0.23 KM |
| Kew Gardens | 5594 | KWG | 1.27 KM |
| Richmond | 5570 | RMD | 1.39 KM |
| Mortlake | 5600 | MTL | 2.48 KM |
| Kew Bridge | 5593 | KWB | 2.57 KM |
Nearby Listings
| Address | Price | Type | Score | Distance |
|---|---|---|---|---|
| Bardolph Road, Richmond , LONDON, TW9 | £ 1,890,000 | BUY | Unknown | 0.00 KM |
| St. Georges Road, Richmond, TW9 | £ 900,000 | BUY | 4 / 10 | 0.04 KM |
| St. Georges Road, Richmond 13 mins walk Station | £ 900,000 | BUY | Unknown | 0.04 KM |
| Trinity Road, Surrey | £ 865,000 | BUY | 7 / 10 | 0.10 KM |
| Bardolph Road, Richmond, TW9 | £ 395,000 | BUY | 6 / 10 | 0.11 KM |
Nearby Properties
| Address | Price | Distance |
|---|---|---|
| 28 Bardolph Road | £ 364,250 | 0.01 KM |
| 30 Bardolph Road | £ 485,000 | 0.01 KM |
| 12 St Georges Road | £ 340,000 | 0.05 KM |
| 8 St Georges Road | £ 840,000 | 0.05 KM |
| 30 St Georges Road | £ 710,000 | 0.05 KM |