Edgefield
FI

Edgefield

By Fine & Country

£ 710,000

Reviews

3 out of 5 stars

Fine & Country says ..

This attractive period home is perfectly positioned in an elevated plot with spectacular views over the village and surrounding countryside. Whether it´s watching the sun set over the valley or seeing deer running across the fields through an early morning mist, there´s always something...

Property Oracle says ..

This detached property in Stody, near North Norfolk, presents a blend of modern living within a traditional setting. The house features updated interiors, including a modern kitchen and bathrooms, suggesting it’s in good condition. The presence of a garden and garage adds to its appeal. However, the asking price of £710,000 appears high when compared to the average price per square foot in the area, potentially impacting its value proposition. The location benefits from proximity to schools and the rural charm of Norfolk, making it suitable for families and those seeking a countryside lifestyle.

Therefore, we give this property 6 / 10. *Disclaimer: This is our option and does constitute a recommendation or financial advice. Do your own research. *

Price
5
Condition
8
Location
7
Land
7
Bedrooms
3
Bathrooms
1
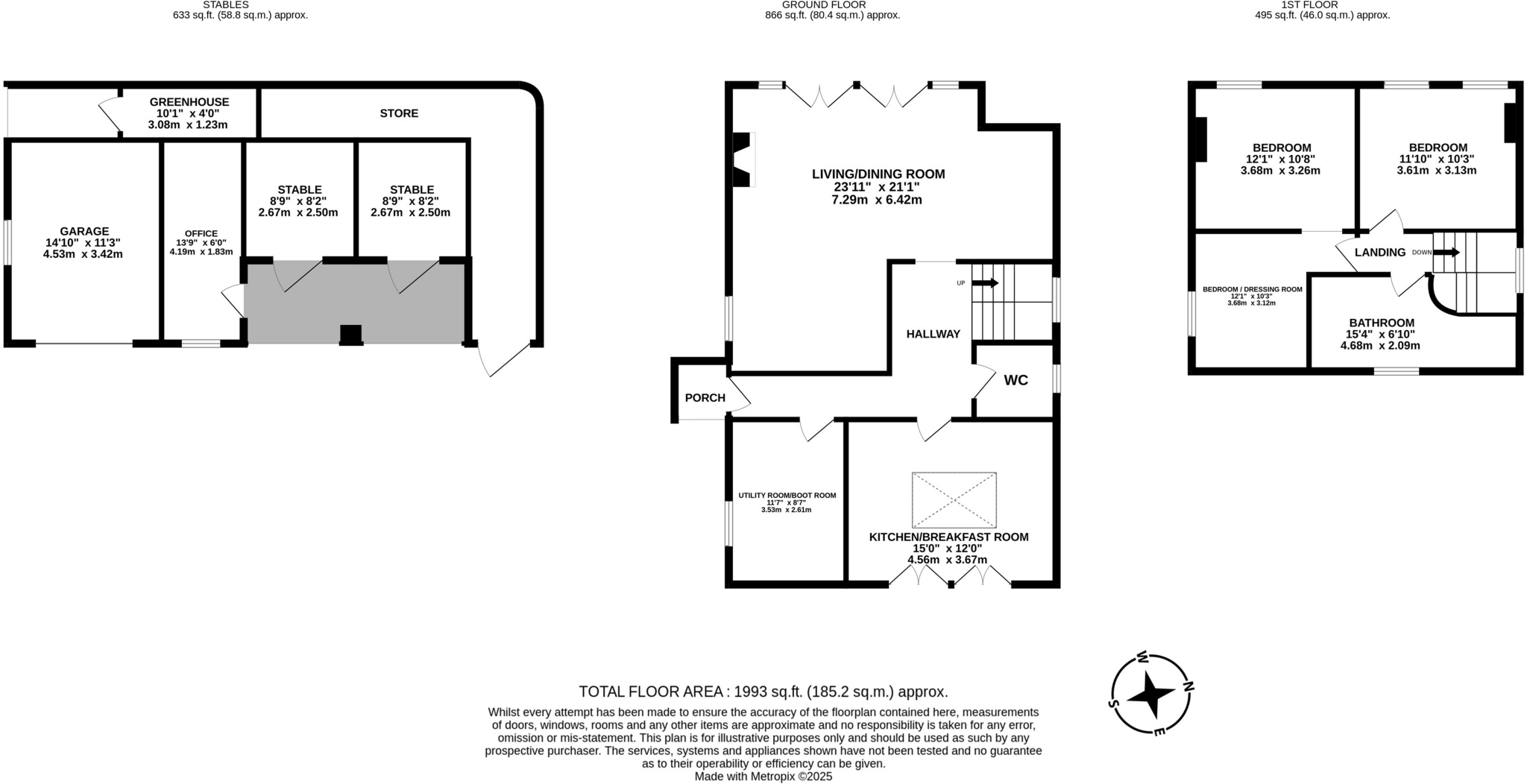
Sqft (est)
518.50

The heatmap indicates the level of crime in the area. The color of the heatmap indicates the crime severity and recency.

Metrics Year-on-Year

Average area value
380,000.00 £
Increased by 23.95 %
from 306,563.00 £
Est sale value
200,141.00 £
Decreased by 7.66 %
from 216,733.00 £
Average area rental value
1,175.00 £/mo
Increased by 19.90 %
from 980.00 £/mo
Est letting value
518.50 £/mo
Unchanged by 0.00 %
from 518.50 £/mo
Est rental Yield
3.71 %
Decreased by 3.39 %
from 3.84 %
Crime Rate
36.00 %
Unchanged by 0.00 %
from 36.00 %

Agent Activity

  • Fine & Country created the listing.

Nearby Schools

NameTypeOfstedDistance
Corpusty Primary SchoolAcademy Sponsor Led3.81 KM
Corpusty And Holt Area Children'S CentreChildren's Centre5.54 KM
Holt Community Primary SchoolCommunity SchoolGood6.26 KM
Gresham'S SchoolOther Independent School6.38 KM
Astley Primary SchoolAcademy Converter7.17 KM

Images

DJI_0142 DJI_0155 DJI_0186 DJI_0172 DSC_3260 DSC_2123 DSC_3103 DSC_3125 DSC_3412 DSC_2931 DSC_2894 DSC_2755 DSC_2128 DSC_2476 DSC_2077 DSC_3348 DSC_3371 DSC_2982 DSC_2799 DSC_2609 DSC_3018 DSC_2568 DSC_2664 DSC_3480

Nearby Streets

NameAverage PriceAverage SqftDistance
The Limes £ 000.00 KM
Plumstead Road £ 2,850,00000.00 KM

Nearby Listings

AddressPriceTypeScoreDistance
Edgefield £ 710,000BUY6 / 100.00 KM
Ramsgate Street, Edgefield, Melton Constable, NR24 £ 665,000BUY7 / 100.61 KM
Ramsgate Street, Edgefield, Melton Constable, NR24 £ 515,000BUY7 / 100.61 KM
Ramsgate Street, Edgefield, Norfolk £ 630,000BUY7 / 100.61 KM
Pecks Lane, Edgefield, Norfolk £ 625,000BUY6 / 101.29 KM

Nearby Properties

AddressPriceDistance
Valley House £ 575,0000.00 KM
Ambergate £ 395,0000.00 KM
Ivy Cottage £ 195,0000.00 KM
Mount Pleasant £ 432,5000.00 KM
Green Lanes £ 450,0000.04 KM