Ravenscraig Court, Bellshill, ML4
LA

Ravenscraig Court, Bellshill, ML4

By Lanarkshire Law Estate Agents Limited

£ 199,995

Reviews

3 out of 5 stars

Lanarkshire Law Estate Agents Limited says ..

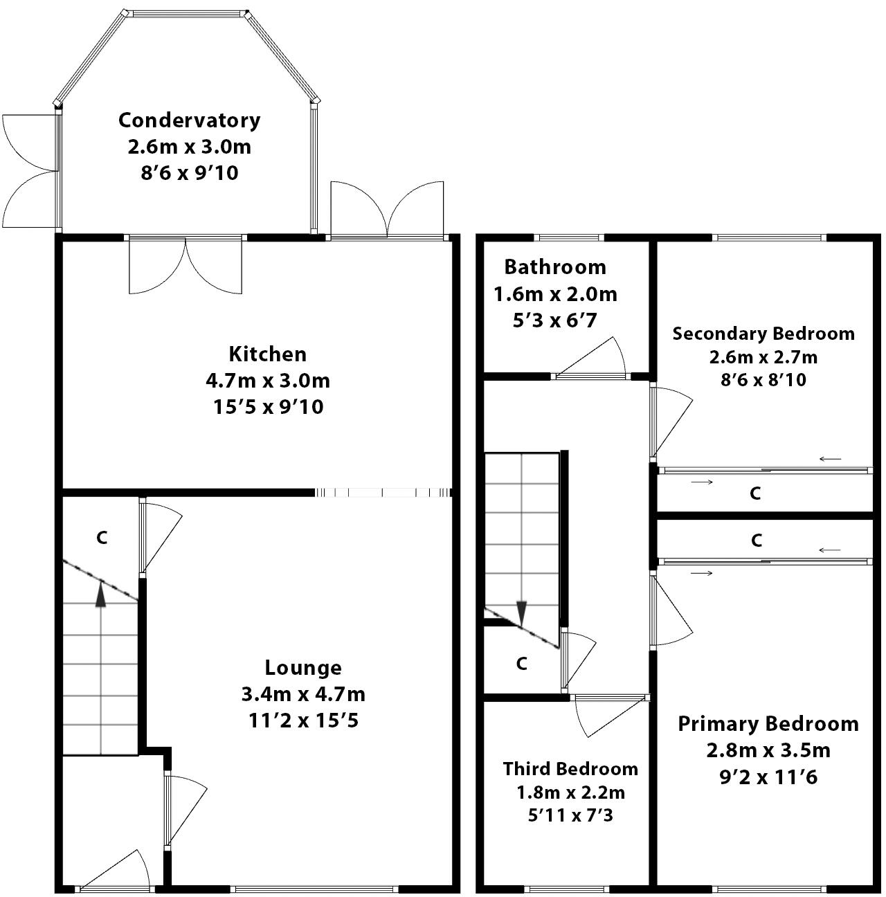
Tucked away in the peaceful setting of Ravenscraig Court, Bellshill this charming three-bedroom semi-detached home presents a wonderful opportunity to enjoy both tranquillity and convenience in the heart of Bellshill and within walking distance to all local amenities Bellshill has to offer. Early...

Property Oracle says ..

This is a well-presented semi-detached property located in a convenient area of Bellshill. The house benefits from a modern interior, a well-maintained garden, and good transport links. The property is likely to appeal to families and commuters looking for a comfortable and well-connected home.

Therefore, we give this property 7 / 10. *Disclaimer: This is our option and does constitute a recommendation or financial advice. Do your own research. *

Price
8
Condition
8
Location
7
Land
7
Bedrooms
3
Bathrooms
1
Sqft (est)
209.90

The heatmap indicates the level of crime in the area. The color of the heatmap indicates the crime severity and recency.

Metrics Year-on-Year

Average area value
925,000.00 £
Increased by 139.51 %
from 386,204.00 £
Est sale value
91,936.20 £
Increased by 50.52 %
from 61,080.90 £
Average area rental value
825.00 £/mo
Decreased by 10.71 %
from 924.00 £/mo
Est letting value
0.00 £/mo
from 0.00 £/mo
Est rental Yield
1.07 %
Decreased by 62.72 %
from 2.87 %
Crime Rate
0.00 %
from 0.00 %

Agent Activity

  • Lanarkshire Law Estate Agents Limited created the listing.

Images

3 Bedroom Semi Detached for Sale Gallery Gallery Gallery Gallery Gallery Gallery Gallery Gallery Gallery Gallery Gallery Gallery Gallery Gallery Gallery Gallery Gallery Gallery Gallery Gallery Gallery Gallery Gallery Gallery Gallery Gallery Gallery Gallery Gallery Gallery Gallery Gallery Gallery Gallery Gallery Gallery Gallery Gallery Gallery

Nearby Streets

NameAverage PriceAverage SqftDistance
Bowling Green Street £ 199,95000.00 KM
Ravenscraig Court £ 000.00 KM
James Hamilton Drive £ 000.00 KM
Bruce Street £ 000.00 KM
Brandon Gate £ 212,50000.00 KM

Nearby Transport

NameNLCTLCDistance
Bellshill9714BLH1.24 KM
Whifflet9753WFF3.74 KM
Motherwell9691MTH3.84 KM
Holytown9738HLY4.48 KM
Airbles9695AIR4.70 KM

Nearby Listings

AddressPriceTypeScoreDistance
Ravenscraig Court, Bellshill, ML4 £ 199,995BUY7 / 100.00 KM
Ravenscraig Court, Bellshill £ 200,000BUY7 / 100.05 KM
Bruce Street, Bellshill, ML4 £ 69,995BUY5 / 100.17 KM
Brandon Gate, Bellshill, North Lanarkshire, ML4 £ 250,000BUY7 / 100.20 KM
Academy Terrace, Bellshill £ 79,995BUY6 / 100.23 KM