Kenia Close, Carton, Nottingham
By David James Estate Agents
£ 270,000
Reviews
3 out of 5 stars
David James Estate Agents says ..
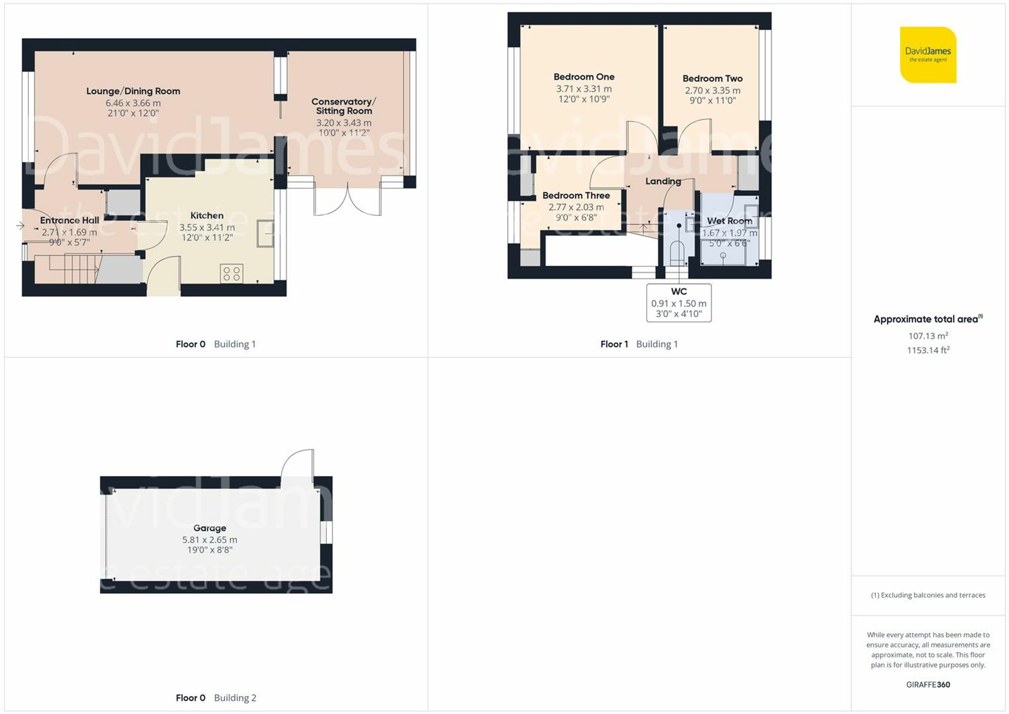
We are pleased to present this detached family home, situated on a prominent corner plot within easy reach of Carlton's shops and supermarkets, local schools and frequent bus services to Nottingham City Centre, making it an ideal location for both convenience and connectivity.Upon entering, you a...
Property Oracle says ..
This three-bedroom, one-bathroom detached house located in Kenia Close, Carlton, Nottingham, presents itself as a family home with convenient access to local amenities and transport links. The property benefits from a garden visible in the supplied images and includes a conservatory, adding valuable living space. The interior displays features that are slightly dated. The kitchen and bathrooms appear to be functional but could benefit from some modernisation to enhance their visual appeal and potential value. The living areas are of good size, but the images suggest a need for some interior redecoration or updating to suit contemporary tastes. The property’s location in Carlton offers ease of access to both local facilities and Nottingham city centre via bus routes. The nearby rail station could be a factor in accessibility for commuters. Overall, the house offers potential for modernisation and enhancement, while maintaining an attractive location, but a precise assessment necessitates more detailed information regarding the exact square footage of the plot and a more detailed valuation consideration of similar properties in the area to confirm its price competitiveness.
Therefore, we give this property 6 / 10. *Disclaimer: This is our option and does constitute a recommendation or financial advice. Do your own research. *
- Price
- 7
- Condition
- 6
- Location
- 7
- Land
- 4
- Bedrooms
- 3
- Bathrooms
- 1
- Sqft (est)
- 1,153.14
The heatmap indicates the level of crime in the area. The color of the heatmap indicates the crime severity and recency.
Metrics Year-on-Year
- Average area value
- 256,818.00 £Increased by 11.34 %
- Est sale value
- 380,536.20 £Increased by 3.77 %
- Average area rental value
- 1,206.00 £/moIncreased by 37.51 %
- Est letting value
- 1,153.14 £/moUnchanged by 0.00 %
- Est rental Yield
- 5.64 %Increased by 23.68 %
- Crime Rate
- 6.00 %Unchanged by 0.00 %
Agent Activity
David James Estate Agents created the listing.
Nearby Schools
| Name | Type | Ofsted | Distance |
|---|---|---|---|
| The Carlton Junior Academy | Academy Converter | 0.32 KM | |
| The Carlton Infant Academy | Academy Converter | 0.38 KM | |
| The Sacred Heart Primary Catholic Voluntary Academy | Academy Converter | Good | 0.67 KM |
| Carlton Academy | Academy Sponsor Led | Good | 0.76 KM |
| Haddon Primary And Nursery School | Academy Sponsor Led | Good | 0.76 KM |
Images
Nearby Streets
| Name | Average Price | Average Sqft | Distance |
|---|---|---|---|
| Middle Avenue | £ 315,000 | 0 | 0.00 KM |
| Haddon Close | £ 190,000 | 0 | 0.00 KM |
| Bracken Close | £ 0 | 0 | 0.00 KM |
| Barley Close | £ 90,000 | 0 | 0.00 KM |
| Wheldon Avenue | £ 0 | 0 | 0.00 KM |
Nearby Transport
| Name | NLC | TLC | Distance |
|---|---|---|---|
| Carlton | 6201 | CTO | 2.23 KM |
| Netherfield | 6241 | NET | 2.25 KM |
| Nottingham | 1826 | NOT | 5.92 KM |
| Burton Joyce | 6200 | BUJ | 6.50 KM |
| Radcliffe (Nottinghamshire) | 6242 | RDF | 7.14 KM |
Nearby Listings
| Address | Price | Type | Score | Distance |
|---|---|---|---|---|
| Kenia Close, Carton, Nottingham | £ 270,000 | BUY | 6 / 10 | 0.00 KM |
| Radcliffe Gardens, Carlton, Nottingham | £ 235,000 | BUY | 7 / 10 | 0.05 KM |
| Radcliffe Gardens, Carlton, Nottingham | £ 200,000 | BUY | 7 / 10 | 0.09 KM |
| Kenia Close, Carlton, Nottingham, Nottinghamshire, NG4 | £ 220,000 | BUY | 7 / 10 | 0.10 KM |
| Radcliffe Gardens, Carlton, Nottingham | £ 195,000 | BUY | 7 / 10 | 0.15 KM |
Nearby Properties
| Address | Price | Distance |
|---|---|---|
| 21 Radcliffe Gardens | £ 104,000 | 0.10 KM |
| 10 Radcliffe Gardens | £ 190,000 | 0.10 KM |
| 9 Radcliffe Gardens | £ 95,000 | 0.10 KM |
| 47 Radcliffe Gardens | £ 170,000 | 0.10 KM |
| 30 Radcliffe Gardens | £ 125,000 | 0.10 KM |