Purplebricks says ..
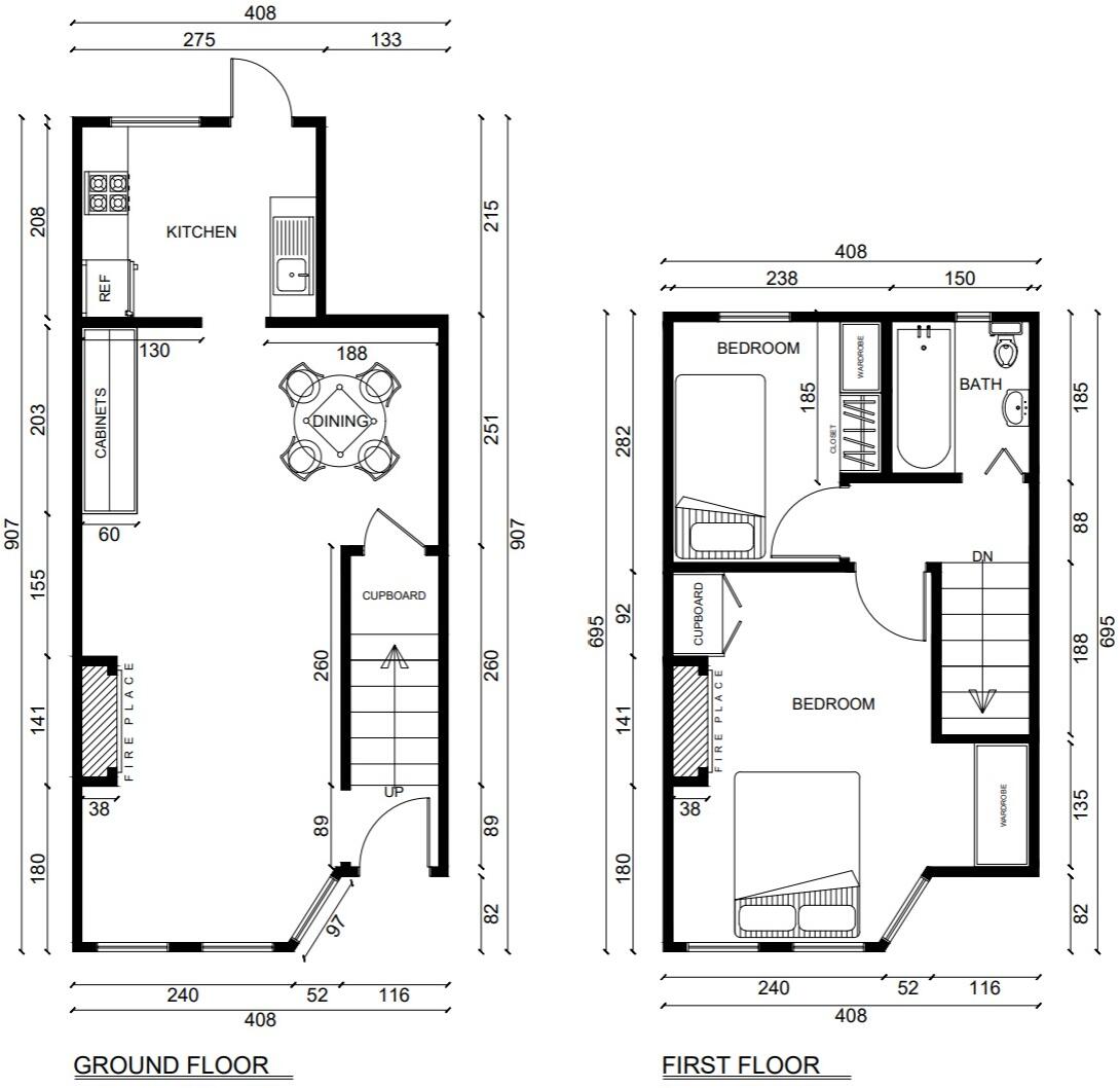
A well-presented and spacious two-bedroom terraced home, ideally located on a popular residential road in Edmonton. This attractive property offers generous living space and is perfect for first-time buyers or young families seeking a comfortable home with modern potential. The ground floor feat...
Property Oracle says ..
This is a 2-bedroom terraced house in Lower Edmonton, London. The property offers a good amount of space at 1,091 sqft and includes a garden. While the location benefits from nearby schools and transportation, the property’s condition suggests it requires some renovation work, particularly in the kitchen/dining area. The price appears reasonable given the size and location, offering an opportunity for buyers to add value through improvements.
Therefore, we give this property 5 / 10. *Disclaimer: This is our option and does constitute a recommendation or financial advice. Do your own research. *
- Price
- 7
- Condition
- 4
- Location
- 6
- Land
- 6
- Bedrooms
- 2
- Bathrooms
- 1
- Sqft (est)
- 1,091.00
The heatmap indicates the level of crime in the area. The color of the heatmap indicates the crime severity and recency.
Metrics Year-on-Year
- Average area value
- 383,333.00 £Increased by 1.23 %
- Est sale value
- 552,046.00 £Increased by 22.52 %
- Average area rental value
- 1,932.00 £/moIncreased by 3.26 %
- Est letting value
- 2,182.00 £/moUnchanged by 0.00 %
- Est rental Yield
- 6.05 %Increased by 2.02 %
- Crime Rate
- 3.00 %Unchanged by 0.00 %
Agent Activity
Purplebricks created the listing.
Nearby Schools
| Name | Type | Ofsted | Distance |
|---|---|---|---|
| Wren Academy Enfield | Free Schools | 0.26 KM | |
| Aim Academy North London | Academy Sponsor Led | 0.26 KM | |
| Delta Primary School | Academy Converter | 0.26 KM | |
| Eldon Primary School | Community School | Requires improvement | 0.56 KM |
| Lower Edmonton Children'S Centre | Children's Centre | 0.56 KM |
Images
Nearby Streets
| Name | Average Price | Average Sqft | Distance |
|---|---|---|---|
| Goodwin Road | £ 460,000 | 0 | 0.00 KM |
| Wren Close | £ 0 | 0 | 0.00 KM |
| Foxglove Close | £ 0 | 0 | 0.00 KM |
| St Michaels Avenue | £ 0 | 0 | 0.00 KM |
| Scarborough Road | £ 0 | 0 | 0.00 KM |
Nearby Transport
| Name | NLC | TLC | Distance |
|---|---|---|---|
| Ponders End | 6819 | PON | 1.69 KM |
| Edmonton Green | 6941 | EDR | 1.90 KM |
| Angel Road | 6909 | AGR | 2.09 KM |
| Southbury | 6947 | SBU | 2.16 KM |
| Meridian Water | 6599 | MRW | 2.58 KM |
Nearby Listings
| Address | Price | Type | Score | Distance |
|---|---|---|---|---|
| Woodlands Road, London, N9 | £ 380,000 | BUY | 5 / 10 | 0.00 KM |
| St. Mary's Road N9 | £ 550,000 | BUY | Unknown | 0.07 KM |
| Brierley Avenue, Edmonton | £ 374,950 | BUY | 6 / 10 | 0.09 KM |
| Nightingale Road, Edmonton, N9 | £ 460,000 | BUY | 6 / 10 | 0.13 KM |
| Devonshire Road, London | £ 525,000 | BUY | 5 / 10 | 0.13 KM |
Nearby Properties
| Address | Price | Distance |
|---|---|---|
| 99 Woodlands Road | £ 337,500 | 0.01 KM |
| 101 Woodlands Road | £ 355,000 | 0.01 KM |
| 115 Woodlands Road | £ 430,000 | 0.01 KM |
| 111 Woodlands Road | £ 160,000 | 0.03 KM |
| 99a Woodlands Road | £ 282,000 | 0.03 KM |