TYNINGS says ..
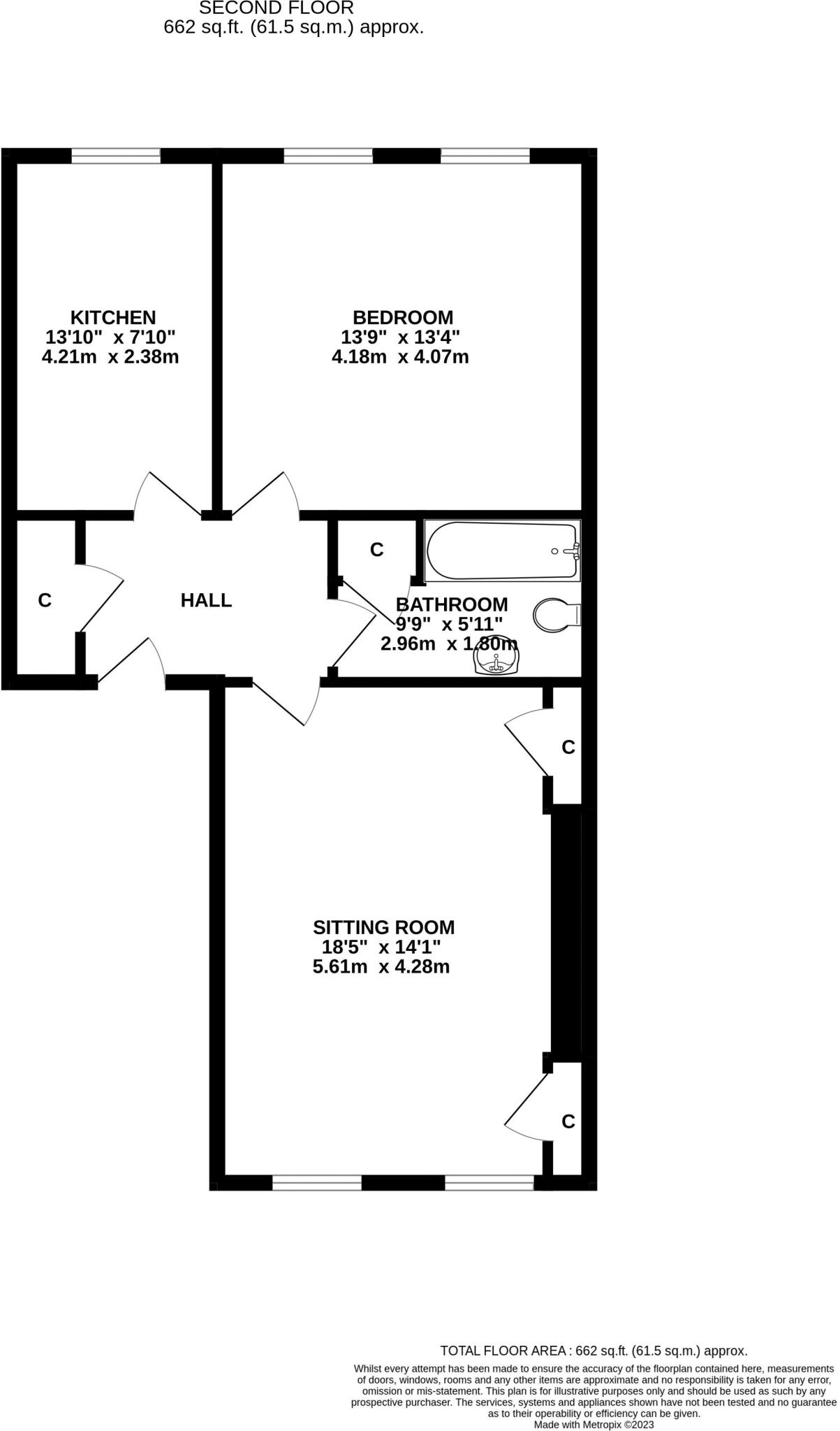
A very spacious one bedroom second floor flat in a Grade II listed Georgian townhouse. Recently refurbished throughout and offering beautiful views across the recreation ground. A prime central location off of Great Pulteney Street with just a short walk to everything Bath has to offer.
Property Oracle says ..
Therefore, we give this property 6 / 10. *Disclaimer: This is our option and does constitute a recommendation or financial advice. Do your own research. *
- Price
- 7
- Condition
- 8
- Location
- 9
- Land
- 1
- Bedrooms
- 1
- Bathrooms
- 1
- Sqft (est)
- 606.76
The heatmap indicates the level of crime in the area. The color of the heatmap indicates the crime severity and recency.
Metrics Year-on-Year
- Average area value
- 789,000.00 £Increased by 13.27 %
- Est sale value
- 705,055.12 £Increased by 105.66 %
- Average area rental value
- 2,233.00 £/moIncreased by 4.05 %
- Est letting value
- 1,820.28 £/moIncreased by 200.00 %
- Est rental Yield
- 3.40 %Decreased by 8.11 %
- Crime Rate
- 4.00 %Unchanged by 0.00 %
from 696,574.00 £
from 342,819.40 £
from 2,146.00 £/mo
from 606.76 £/mo
from 3.70 %
from 4.00 %
Agent Activity
TYNINGS created the listing.
Nearby Schools
| Name | Type | Ofsted | Distance |
|---|---|---|---|
| Widcombe Cofe Junior School | Academy Converter | 0.70 KM | |
| Widcombe Infant School | Academy Converter | 0.73 KM | |
| Bathwick St Mary Church School | Academy Converter | 0.90 KM | |
| King Edward'S School, Bath | Other Independent School | 1.03 KM | |
| Bath Academy | Other Independent School | 1.18 KM |
Images
Nearby Streets
| Name | Average Price | Average Sqft | Distance |
|---|---|---|---|
| Sunderland Street | £ 950,000 | 0 | 0.00 KM |
| William Street | £ 665,000 | 0 | 0.00 KM |
| Saint John's Court | £ 0 | 0 | 0.00 KM |
| Saint Mary's Close | £ 0 | 0 | 0.00 KM |
| Slippery Lane | £ 490,000 | 0 | 0.00 KM |
Nearby Transport
| Name | NLC | TLC | Distance |
|---|---|---|---|
| Bath Spa | 3271 | BTH | 0.90 KM |
| Oldfield Park | 3219 | OLF | 3.13 KM |
| Freshford | 3344 | FFD | 7.42 KM |
| Avoncliff | 3265 | AVF | 9.34 KM |
Nearby Listings
| Address | Price | Type | Score | Distance |
|---|---|---|---|---|
| Edward Street, Bath | £ 425,000 | BUY | 6 / 10 | 0.00 KM |
| Edward Street, Bath | £ 425,000 | BUY | 8 / 10 | 0.02 KM |
| Edward Street, Bathwick, Bath, BA2 | £ 1,695,000 | BUY | 7 / 10 | 0.03 KM |
| Edward Street, Bath | £ 375,000 | BUY | 5 / 10 | 0.03 KM |
| Edward Street, Bathwick, Bath, Somerset, BA2 | £ 335,000 | BUY | 6 / 10 | 0.04 KM |
Nearby Properties
| Address | Price | Distance |
|---|---|---|
| 1 Edward Street | £ 340,000 | 0.03 KM |
| 12 Edward Street | £ 940,000 | 0.03 KM |
| 15 Edward Street | £ 122,000 | 0.03 KM |
| 11a Edward Street | £ 575,000 | 0.03 KM |
| 13 Edward Street | £ 195,000 | 0.03 KM |