Lodge Road, Atherton, Manchester, Greater Manchester, M46 9BL
By Miller Metcalfe
£ 155,000
Reviews
3 out of 5 stars
Miller Metcalfe says ..
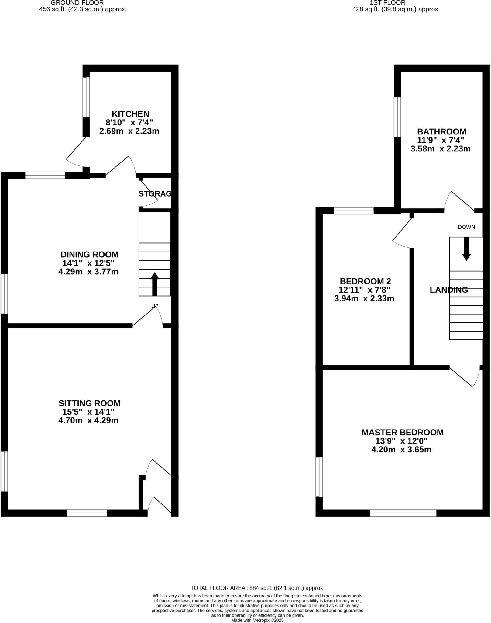
A well-presented two-bedroom end-of-terrace property offered with no onward chain. The accommodation is arranged over two floors and comprises a welcoming lounge, large dining room and a fitted kitchen with space for appliances, two well-proportioned bedrooms, and a family bathroom. The end-terra...
Property Oracle says ..
This end-of-terrace property on Lodge Road in Atherton presents a good opportunity for first-time buyers or small families. The house features two bedrooms and a bathroom, with a modern kitchen and bathroom. While the interior is well-maintained, the exterior and garden would benefit from some cosmetic improvements. The property’s location is a strong point, with several well-regarded schools nearby and convenient access to Atherton Train Station. The asking price of £155,000 seems reasonable given the property’s condition and location.
Therefore, we give this property 6 / 10. *Disclaimer: This is our option and does constitute a recommendation or financial advice. Do your own research. *
- Price
- 8
- Condition
- 7
- Location
- 7
- Land
- 5
- Bedrooms
- 2
- Bathrooms
- 1
The heatmap indicates the level of crime in the area. The color of the heatmap indicates the crime severity and recency.
Metrics Year-on-Year
- Average area value
- 149,863.00 £Decreased by 27.78 %
- Average area rental value
- 911.00 £/moDecreased by 0.44 %
- Est rental Yield
- 7.29 %Increased by 37.81 %
- Crime Rate
- 0.00 %
Agent Activity
Miller Metcalfe created the listing.
Nearby Schools
| Name | Type | Ofsted | Distance |
|---|---|---|---|
| Hindsford Cofe Primary School | Voluntary Controlled School | Outstanding | 0.12 KM |
| Sacred Heart Rc Primary School | Voluntary Aided School | Good | 0.25 KM |
| Fred Longworth High School | Academy Converter | Good | 0.34 KM |
| Chowbent Primary School | Voluntary Controlled School | Good | 1.05 KM |
| Parklee Community School | Community School | Good | 1.07 KM |
Images
Nearby Streets
| Name | Average Price | Average Sqft | Distance |
|---|---|---|---|
| Green Street | £ 0 | 0 | 0.00 KM |
| Charles Street | £ 0 | 0 | 0.00 KM |
| Ramsey Close | £ 245,000 | 0 | 0.00 KM |
| Saint Mary's Close | £ 0 | 0 | 0.00 KM |
| Bracken Road | £ 195,000 | 0 | 0.00 KM |
Nearby Transport
| Name | NLC | TLC | Distance |
|---|---|---|---|
| Atherton | 2584 | ATN | 1.41 KM |
| Hag Fold | 2585 | HGF | 2.56 KM |
| Daisy Hill | 2777 | DSY | 4.76 KM |
| Lostock | 2598 | LOT | 6.49 KM |
| Westhoughton | 2619 | WHG | 6.54 KM |
Nearby Listings
| Address | Price | Type | Score | Distance |
|---|---|---|---|---|
| Lodge Road, Atherton, Manchester, Greater Manchester, M46 9BL | £ 155,000 | BUY | 6 / 10 | 0.00 KM |
| Lodge Road, Manchester, M46 | £ 110,000 | BUY | 5 / 10 | 0.05 KM |
| Lodge Road, Atherton M46 9BL | £ 179,950 | BUY | 5 / 10 | 0.05 KM |
| Powys Street, Atherton, Manchester | £ 160,000 | BUY | 6 / 10 | 0.07 KM |
| Powys Street, Atherton, Manchester | £ 150,000 | BUY | 5 / 10 | 0.07 KM |
Nearby Properties
| Address | Price | Distance |
|---|---|---|
| 19 Lodge Road | £ 89,995 | 0.05 KM |
| 15 Lodge Road | £ 87,000 | 0.05 KM |
| 17 Lodge Road | £ 132,000 | 0.05 KM |
| 37 Lodge Road | £ 110,000 | 0.05 KM |
| 31 Lodge Road | £ 155,000 | 0.05 KM |