Fallow Road, Telford, Shropshire, TF5
D

Fallow Road, Telford, Shropshire, TF5

By D B Roberts & Partners

£ 395,000

Reviews

3 out of 5 stars

D B Roberts & Partners says ..

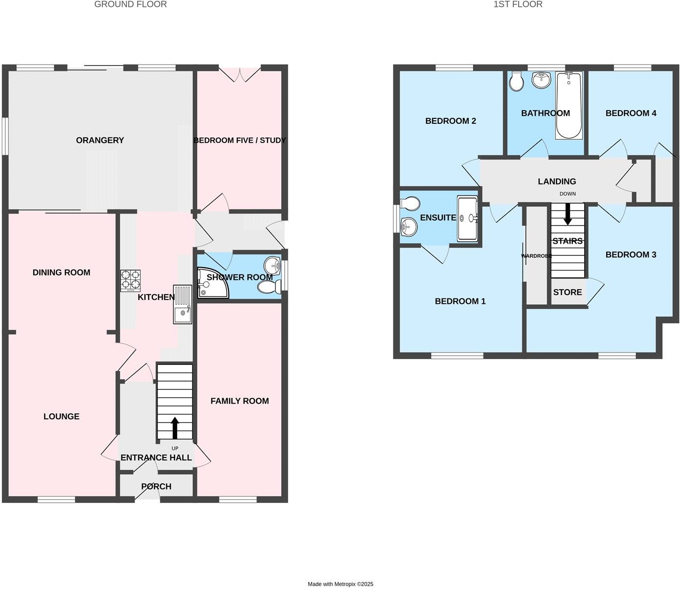
A beautiful extended flexible five-bedroom detached family home, situated in a highly desirable location offered with NO ONWARD CHAIN. Entrance hallway, spacious lounge, dining room and kitchen that flows into an extended orangery extension that offers relaxing space to spend with f...

Property Oracle says ..

This property is a 5 bedroom, 2 bathroom detached house located on Fallow Road in Shawbirch, Telford. The property benefits from a good size garden. Based on the images provided, the property appears to be well maintained and in good condition. The kitchen and bathrooms look recently updated. There is evidence of a recent extension to the rear of the property. The location is good, with nearby schools and transport links. Wellington train station is approximately 2.58km away, providing access to the wider rail network. Several primary schools are within a reasonable distance, with Ofsted ratings indicating a good standard of education in the area. While the property’s square footage is not provided, the list price of £395,000 is slightly below the average price of £412,056 for the area. Considering the apparent good condition of the property and the inclusion of a garden, the price appears reasonable, although further information on the property’s size would allow for a more definitive assessment of value. Nearby comparable properties support this assessment, with prices ranging from £350,000 to £440,000. However, without knowing the square footage of this property, a precise price per square foot comparison cannot be made.

Therefore, we give this property 7 / 10. *Disclaimer: This is our option and does constitute a recommendation or financial advice. Do your own research. *

Price
7
Condition
8
Location
7
Land
7
Bedrooms
5
Bathrooms
2

The heatmap indicates the level of crime in the area. The color of the heatmap indicates the crime severity and recency.

Metrics Year-on-Year

Average area value
382,875.00 £
Decreased by 13.12 %
from 440,686.00 £
Average area rental value
1,824.00 £/mo
Increased by 43.40 %
from 1,272.00 £/mo
Est rental Yield
5.72 %
Increased by 65.32 %
from 3.46 %
Crime Rate
7.00 %
Unchanged by 0.00 %
from 7.00 %

Agent Activity

  • D B Roberts & Partners created the listing.

Nearby Schools

NameTypeOfstedDistance
St Peter'S Bratton Church Of England AcademyAcademy Converter0.74 KM
Dothill Primary SchoolFoundation SchoolGood1.07 KM
The Old Hall SchoolOther Independent School1.46 KM
St Patrick'S Catholic Primary SchoolVoluntary Aided SchoolGood1.66 KM
Wrekin View Primary SchoolAcademy Converter1.70 KM

Images

Picture No. 64 Picture No. 22 Picture No. 29 Picture No. 24 Picture No. 40 Picture No. 37 Picture No. 03 Picture No. 61 Picture No. 19 Picture No. 48 Picture No. 18 Picture No. 28 Picture No. 30 Picture No. 36 Picture No. 39 Picture No. 35 Picture No. 20 Picture No. 23 Picture No. 26 Picture No. 34 Picture No. 62 Picture No. 06 Picture No. 04 Picture No. 05 Picture No. 56 Picture No. 58 Picture No. 60 Picture No. 07 Picture No. 08 Picture No. 16 Picture No. 17 Picture No. 32 Picture No. 10 Picture No. 12 Picture No. 54 Picture No. 41 Picture No. 42 Picture No. 43 Picture No. 44 Picture No. 45 Picture No. 47 Picture No. 50 Picture No. 51 Picture No. 52 Picture No. 53 Picture No. 14

Nearby Streets

NameAverage PriceAverage SqftDistance
B5063 £ 000.00 KM
Butts Road £ 340,00000.00 KM
McCormick Drive £ 000.00 KM
MKT £ 000.00 KM
Admaston Road £ 800,00000.00 KM

Nearby Transport

NameNLCTLCDistance
Wellington (Shropshire)4690WLN2.58 KM
Oakengates4689OKN9.58 KM

Nearby Listings

AddressPriceTypeScoreDistance
Fallow Road, Telford, Shropshire, TF5 £ 395,000BUY7 / 100.00 KM
Fallow Road, Telford, Shropshire, TF5 0LS £ 400,000BUY7 / 100.00 KM
Fallow Road, Shawbirch, Telford, TF5 £ 425,000BUYUnknown0.01 KM
Acorn Way, Shawbirch, Telford, TF5 0LW. £ 430,000BUY8 / 100.05 KM
Rembrandt Drive Shawbirch TF5 0PL £ 440,000BUY7 / 100.10 KM

Nearby Properties

AddressPriceDistance
4 Fallow Road £ 159,0000.01 KM
3 Fallow Road £ 185,0000.01 KM
10 Mole Way £ 205,0000.13 KM
4 Mole Way £ 88,0000.13 KM
8 Mole Way £ 144,0000.13 KM