Molyneux says ..
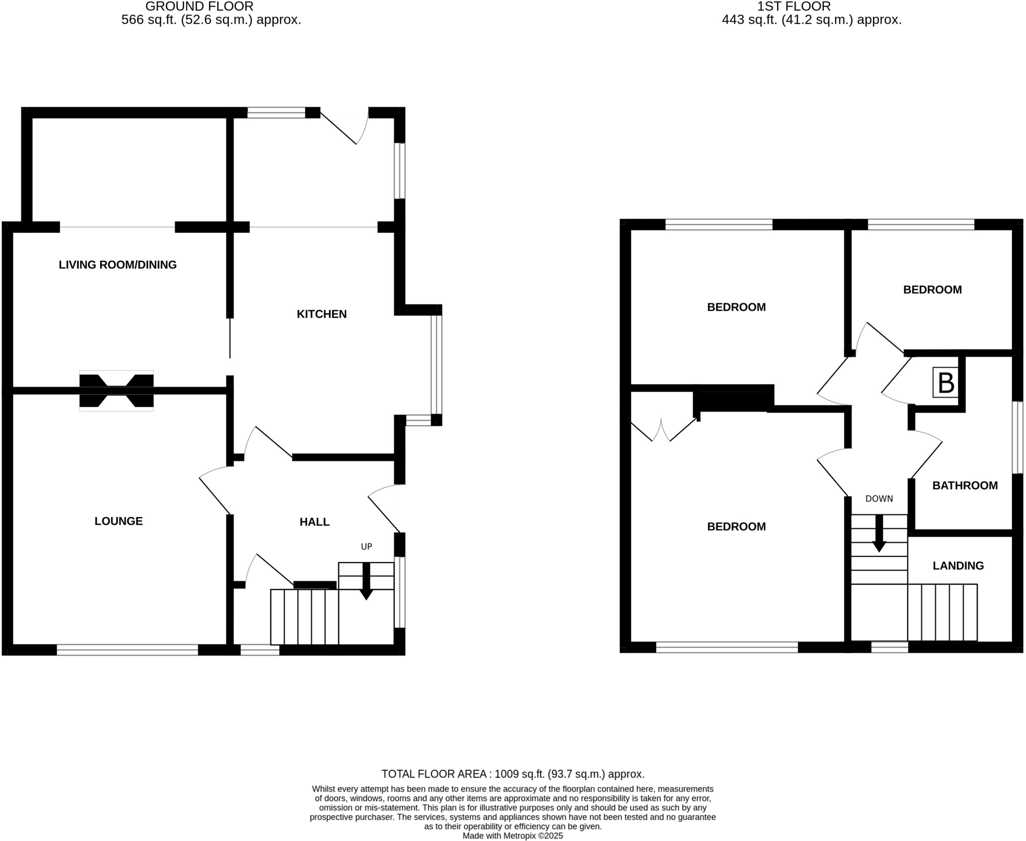
An immaculate example of its type is this beautifully presented and extended semi detached family home with a large garden and generous parking. The property offers a bright and airy entrance hall, lounge, extended comprehensively fitted kitchen with appliances, extended living/dining room ov...
Property Oracle says ..
Therefore, we give this property 7 / 10. *Disclaimer: This is our option and does constitute a recommendation or financial advice. Do your own research. *
- Price
- 8
- Condition
- 6
- Location
- 7
- Land
- 7
- Bedrooms
- 3
- Bathrooms
- 1
The heatmap indicates the level of crime in the area. The color of the heatmap indicates the crime severity and recency.
Metrics Year-on-Year
- Average area value
- 266,389.00 £Decreased by 21.19 %
- Average area rental value
- 792.00 £/moDecreased by 33.45 %
- Est rental Yield
- 3.57 %Decreased by 15.40 %
- Crime Rate
- 3.00 %Unchanged by 0.00 %
from 338,026.00 £
from 1,190.00 £/mo
from 4.22 %
from 3.00 %
Agent Activity
Molyneux marked this listing as sold.
Molyneux created the listing.
Nearby Schools
| Name | Type | Ofsted | Distance |
|---|---|---|---|
| St Ethelwold'S Primary School | Welsh Establishment | 0.32 KM | |
| Penarlag C.P. School | Welsh Establishment | 0.86 KM | |
| Hawarden High School | Welsh Establishment | 1.22 KM | |
| Queens Ferry C.P. School | Welsh Establishment | 1.31 KM | |
| Ven. Edward Morgan R.C. Primary School | Welsh Establishment | 1.34 KM |
Images
Nearby Streets
| Name | Average Price | Average Sqft | Distance |
|---|---|---|---|
| Birchfield Crescent | £ 0 | 0 | 0.00 KM |
| Dodds Court | £ 0 | 0 | 0.00 KM |
| Alder Avenue | £ 0 | 0 | 0.00 KM |
| Beech Road | £ 0 | 0 | 0.00 KM |
| Larch Avenue | £ 0 | 0 | 0.00 KM |
Nearby Transport
| Name | NLC | TLC | Distance |
|---|---|---|---|
| Shotton | 2546 | SHT | 1.48 KM |
| Hawarden | 2428 | HWD | 1.82 KM |
| Hawarden Bridge | 2146 | HWB | 2.25 KM |
| Buckley | 2422 | BCK | 4.39 KM |
| Penyffordd | 2433 | PNF | 6.46 KM |
Nearby Listings
| Address | Price | Type | Score | Distance |
|---|---|---|---|---|
| Courtland Drive, Aston, Deeside | £ 199,500 | BUY | 7 / 10 | 0.00 KM |
| Courtland Drive, Aston Park | £ 230,000 | BUY | 7 / 10 | 0.00 KM |
| Courtland Drive, Queensferry, CH5 | £ 220,000 | BUY | 6 / 10 | 0.07 KM |
| 12, New Park Road New Park Road, Queensferry, Deeside, Flintshire, CH5 1XD | £ 135,000 | BUY | Unknown | 0.11 KM |
| Birchfield Crescent, Aston Park, Deeside, Flintshire, CH5 | £ 260,000 | BUY | 7 / 10 | 0.12 KM |
Nearby Properties
| Address | Price | Distance |
|---|---|---|
| 25 Courtland Drive | £ 142,500 | 0.00 KM |
| 18 Courtland Drive | £ 151,000 | 0.00 KM |
| 23 Courtland Drive | £ 57,000 | 0.00 KM |
| 2 Courtland Drive | £ 169,950 | 0.00 KM |
| 19 Courtland Drive | £ 145,000 | 0.00 KM |