Edenhurst Road, Mile End, Stockport SK2 6BT
By Woodhall Properties
£ 495,000
Reviews
4 out of 5 stars
Woodhall Properties says ..
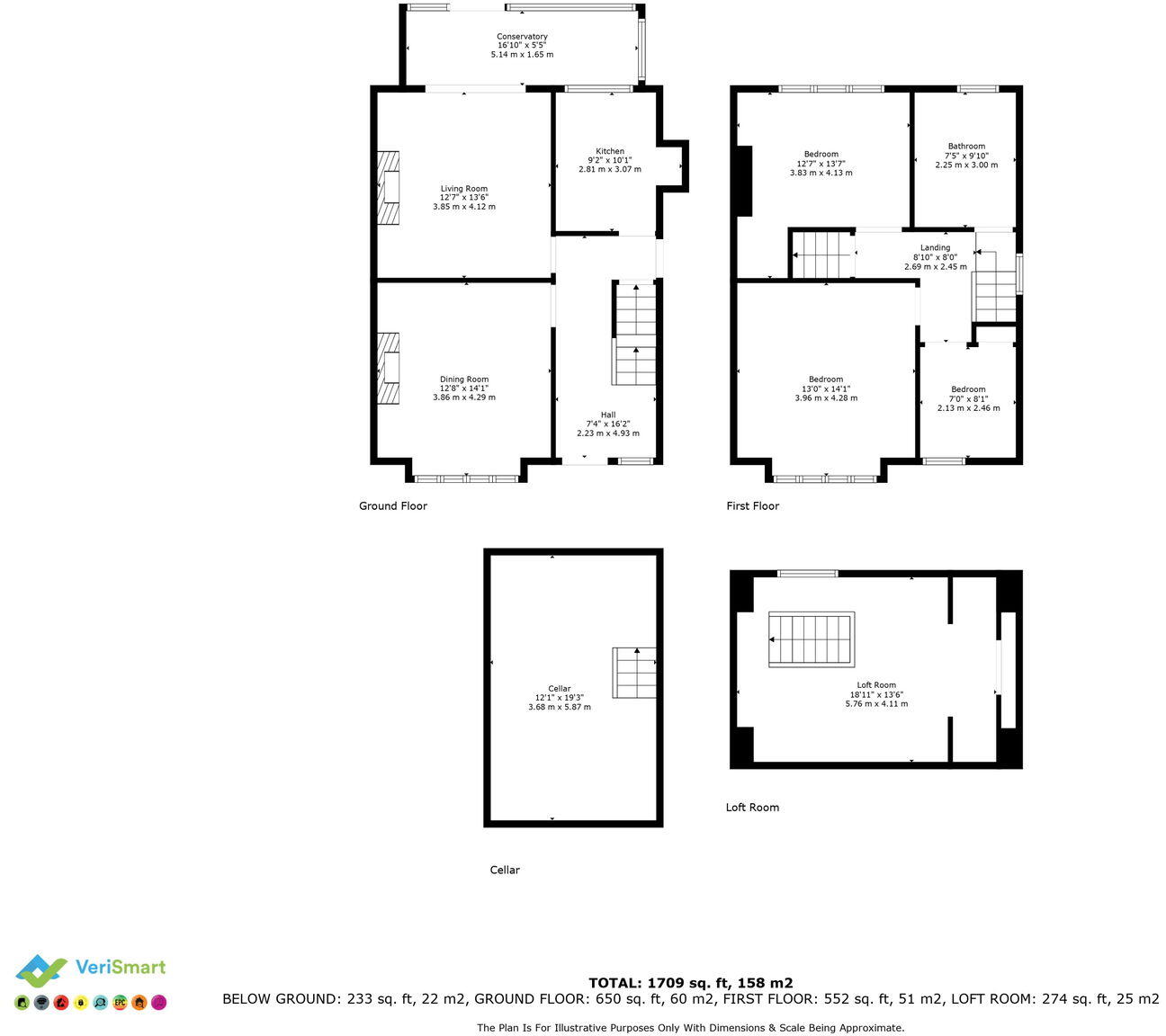
Characterful Edwardian three bed (plus loft room) semi-detached enjoying delightful c85' south-west facing rear garden and c44' x 16' GARAGE/WORKSHOP. Benefits from the installation of GFCH and double glazing. The well presented interior briefly comprises hall, two separate reception rooms, co...
Property Oracle says ..
This property is a 3-bedroom semi-detached house located on Edenhurst Road in Mile End, Stockport. The area benefits from good local schools, including Stockport School (Good Ofsted rating) and Great Moor Junior and Infant Schools (Good and Outstanding Ofsted ratings respectively), all within a 1km radius. Transport links are also convenient, with Woodsmoor train station less than a kilometre away. The property itself appears to be in good condition, well-maintained and presented. It features a traditional style with modern updates, including a conservatory and a modern kitchen. There is a substantial garden, as shown in the provided images. Compared to similar properties in the area, the list price of £495,000 seems slightly higher than the average price of £370,223, but the larger garden and good condition may justify this. More information on the square footage would be needed to make a definitive statement on value for money.
Therefore, we give this property 8 / 10. *Disclaimer: This is our option and does constitute a recommendation or financial advice. Do your own research. *
- Price
- 7
- Condition
- 8
- Location
- 9
- Land
- 8
- Bedrooms
- 3
- Bathrooms
- 1
The heatmap indicates the level of crime in the area. The color of the heatmap indicates the crime severity and recency.
Metrics Year-on-Year
- Average area value
- 409,950.00 £Increased by 6.61 %
- Average area rental value
- 1,238.00 £/moIncreased by 3.60 %
- Est rental Yield
- 3.62 %Decreased by 2.95 %
- Crime Rate
- 0.00 %
Agent Activity
Woodhall Properties created the listing.
Nearby Schools
| Name | Type | Ofsted | Distance |
|---|---|---|---|
| Stockport School | Community School | Good | 0.36 KM |
| Stockport Grammar School | Other Independent School | 0.72 KM | |
| Great Moor Junior School | Community School | Good | 0.72 KM |
| Great Moor Infant School | Community School | Outstanding | 0.72 KM |
| Aquinas College | Further Education | Good | 1.02 KM |
Images
Nearby Streets
| Name | Average Price | Average Sqft | Distance |
|---|---|---|---|
| Seymour Road | £ 0 | 0 | 0.00 KM |
| Ash Close | £ 41,250 | 0 | 0.00 KM |
| Redwood Gardens | £ 0 | 0 | 0.00 KM |
| Garth Road | £ 270,000 | 0 | 0.00 KM |
| Gipsy Lane | £ 0 | 0 | 0.00 KM |
Nearby Transport
| Name | NLC | TLC | Distance |
|---|---|---|---|
| Woodsmoor | 2773 | WSR | 0.98 KM |
| Davenport | 2770 | DVN | 1.83 KM |
| Hazel Grove | 2768 | HAZ | 2.39 KM |
| Stockport | 2771 | SPT | 3.22 KM |
| Brinnington | 2603 | BNT | 4.31 KM |
Nearby Listings
| Address | Price | Type | Score | Distance |
|---|---|---|---|---|
| Edenhurst Road, Mile End, Stockport SK2 6BT | £ 495,000 | BUY | 8 / 10 | 0.00 KM |
| Edenhurst Road, Stockport, Greater Manchester, SK2 | £ 500,000 | BUY | 7 / 10 | 0.03 KM |
| Edenhurst Road, Stockport, Cheshire, SK2 6BT | £ 475,000 | BUY | 7 / 10 | 0.07 KM |
| Withypool Drive, Stockport, Cheshire, SK2 6DT | £ 350,000 | BUY | Unknown | 0.07 KM |
| Manston Lodge, Stockport | £ 160,000 | BUY | 7 / 10 | 0.16 KM |
Nearby Properties
| Address | Price | Distance |
|---|---|---|
| 19 Edenhurst Road | £ 240,000 | 0.03 KM |
| 15a Edenhurst Road | £ 300,000 | 0.03 KM |
| 9 Edenhurst Road | £ 87,000 | 0.03 KM |
| 31 Edenhurst Road | £ 215,000 | 0.03 KM |
| 14 Edenhurst Road | £ 185,000 | 0.03 KM |