McGowan Housing says ..
Buy-to-Let Opportunity | Tenants currently situated | 3 Bedroom End-of-Terrace House | On-Street Parking | Private Rear Garden | Easy Access to Local Amenities | Prime Rental Location- Preston
Property Oracle says ..
Therefore, we give this property 6 / 10. *Disclaimer: This is our option and does constitute a recommendation or financial advice. Do your own research. *
- Price
- 8
- Condition
- 5
- Location
- 7
- Land
- 5
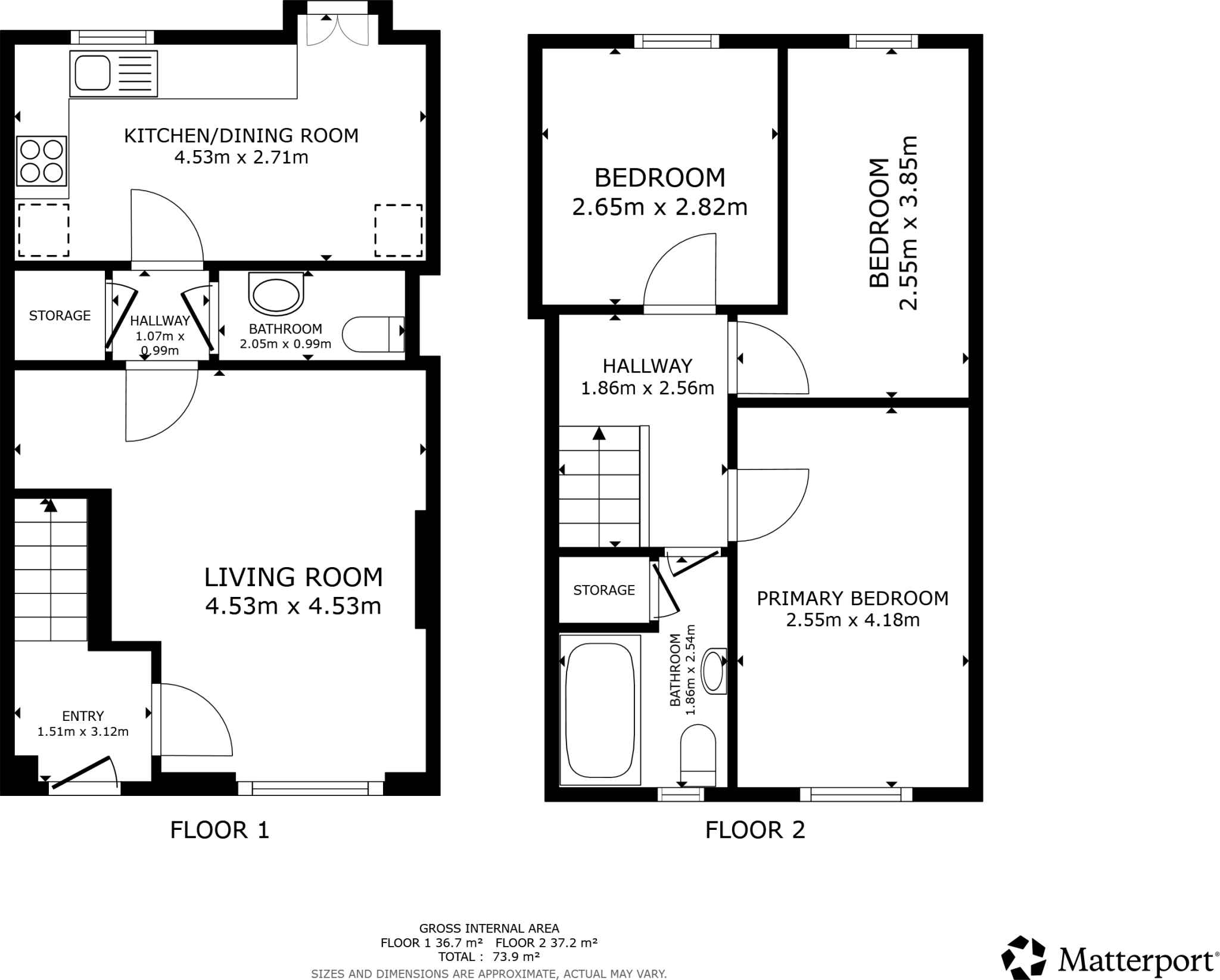
- Bedrooms
- 3
- Bathrooms
- 2
- Sqft (est)
- 839.80
The heatmap indicates the level of crime in the area. The color of the heatmap indicates the crime severity and recency.
Metrics Year-on-Year
- Average area value
- 328,708.00 £Increased by 29.87 %
- Est sale value
- 199,032.60 £Increased by 2.60 %
- Average area rental value
- 998.00 £/moIncreased by 19.09 %
- Est letting value
- 0.00 £/mo
- Est rental Yield
- 3.64 %Decreased by 8.31 %
- Crime Rate
- 12.00 %Unchanged by 0.00 %
from 253,109.00 £
from 193,993.80 £
from 838.00 £/mo
from 0.00 £/mo
from 3.97 %
from 12.00 %
Agent Activity
McGowan Housing created the listing.
Nearby Schools
| Name | Type | Ofsted | Distance |
|---|---|---|---|
| Pool House Community Primary School | Community School | Good | 0.27 KM |
| Holy Family Catholic Primary School, Ingol, Preston | Voluntary Aided School | Good | 0.63 KM |
| Ingol Community Primary School | Community School | Good | 0.77 KM |
| Cottam Primary School | Community School | Good | 1.60 KM |
| Harris Primary School | Community School | Good | 1.78 KM |
Images
Nearby Streets
| Name | Average Price | Average Sqft | Distance |
|---|---|---|---|
| Daisyfields | £ 0 | 0 | 0.00 KM |
| Oakbrook Drive | £ 53,744 | 0 | 0.00 KM |
| Redford Close | £ 174,167 | 0 | 0.00 KM |
| Consort Road | £ 415,000 | 0 | 0.00 KM |
| Neptune Court | £ 58,500 | 0 | 0.00 KM |
Nearby Transport
| Name | NLC | TLC | Distance |
|---|---|---|---|
| Preston (Lancs) | 2753 | PRE | 5.38 KM |
| Salwick | 2673 | SLW | 7.81 KM |
| Lostock Hall | 2689 | LOH | 9.52 KM |
Nearby Listings
| Address | Price | Type | Score | Distance |
|---|---|---|---|---|
| Alder Grove, Preston, PR2 | £ 129,995 | BUY | 6 / 10 | 0.00 KM |
| Alder Grove, Ingol, Preston | £ 90,000 | BUY | 6 / 10 | 0.00 KM |
| Alder Grove, Ingol, Preston | £ 180,000 | BUY | 6 / 10 | 0.01 KM |
| Maple Leaf Close, Ingol, Preston | £ 110,000 | BUY | 5 / 10 | 0.02 KM |
| Maple Leaf Close, Ingol, Preston | £ 190,000 | BUY | Unknown | 0.02 KM |
Nearby Properties
| Address | Price | Distance |
|---|---|---|
| 7 Alder Grove | £ 102,500 | 0.00 KM |
| 12 Alder Grove | £ 76,500 | 0.00 KM |
| 20 Alder Grove | £ 160,000 | 0.00 KM |
| 15 Alder Grove | £ 161,850 | 0.00 KM |
| 27 Alder Grove | £ 129,152 | 0.00 KM |