David Andrew says ..
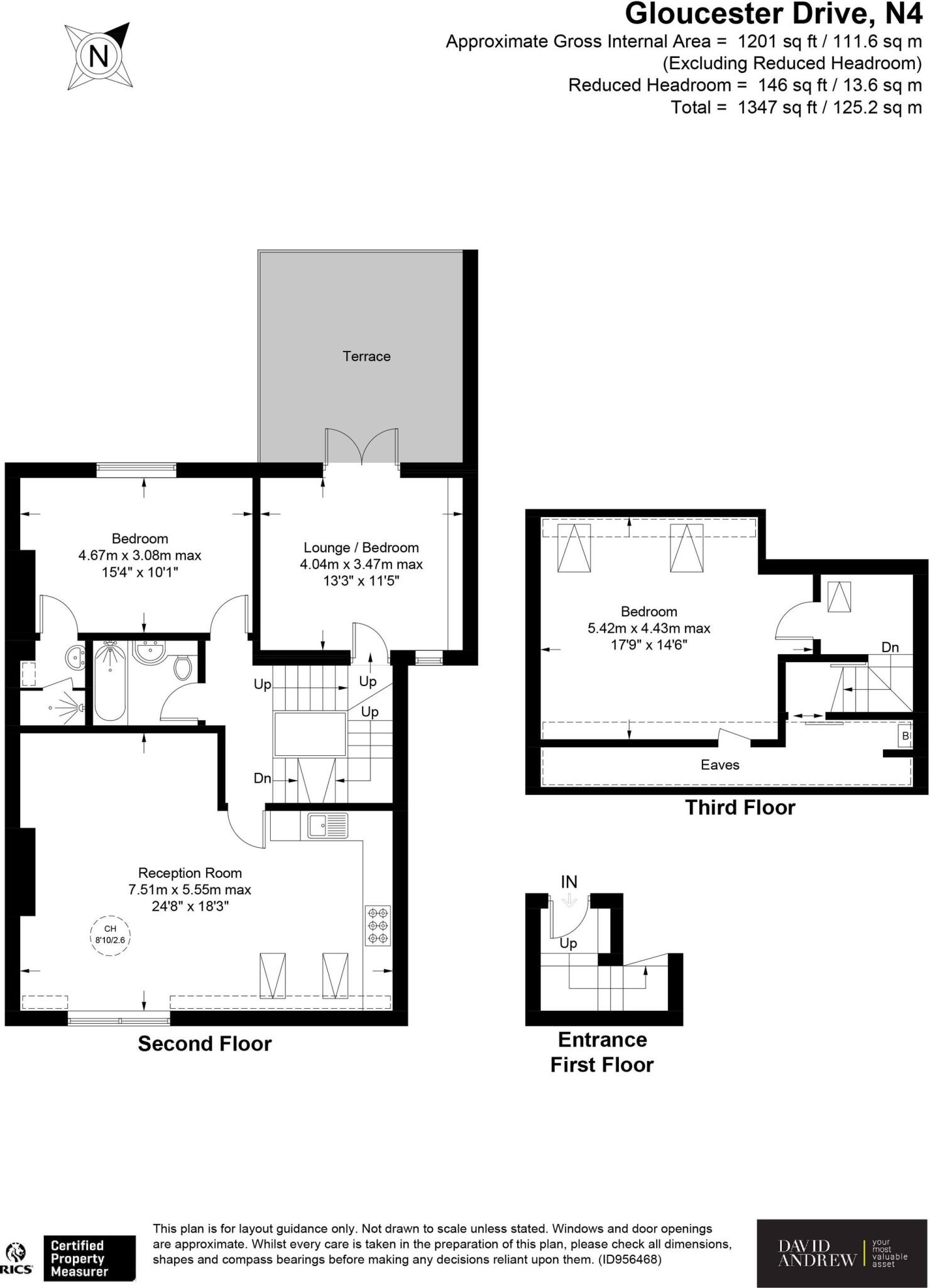
A spacious & stylish three bedroom apartment, situated on the top floors of an attractive period conversion, with lots of natural light with internal 1347sqft/125.2sqm of living space.
Property Oracle says ..
This property is a 3 bedroom, 2 bathroom flat located in the Brownswood area of Hackney, London. The property benefits from a fantastic roof terrace. The location is excellent, with good transport links and several highly-rated schools nearby. The property appears to be in good condition and has been well-maintained. The list price of £925,000 seems reasonable considering the average price in the area and the property’s features.
Therefore, we give this property 8 / 10. *Disclaimer: This is our option and does constitute a recommendation or financial advice. Do your own research. *
- Price
- 8
- Condition
- 9
- Location
- 10
- Land
- 8
- Bedrooms
- 3
- Bathrooms
- 2
The heatmap indicates the level of crime in the area. The color of the heatmap indicates the crime severity and recency.
Metrics Year-on-Year
- Average area value
- 528,333.00 £Decreased by 25.35 %
- Average area rental value
- 2,120.00 £/moDecreased by 13.36 %
- Est rental Yield
- 4.82 %Increased by 16.14 %
- Crime Rate
- 4.00 %Unchanged by 0.00 %
Agent Activity
David Andrew created the listing.
Nearby Schools
| Name | Type | Ofsted | Distance |
|---|---|---|---|
| Parkwood Primary School | Community School | Good | 0.18 KM |
| Ambler Children'S Centre | Children's Centre | 0.54 KM | |
| Ambler Primary School And Children'S Centre | Community School | Outstanding | 0.56 KM |
| Gillespie Primary School | Community School | Outstanding | 0.73 KM |
| Woodberry Down Children'S Centre | Children's Centre | 0.75 KM |
Images
Nearby Streets
| Name | Average Price | Average Sqft | Distance |
|---|---|---|---|
| Vivian Comma Close | £ 0 | 0 | 0.00 KM |
| Kings Crescent | £ 0 | 0 | 0.00 KM |
| Datchworth Court | £ 0 | 0 | 0.00 KM |
| Sim Street | £ 0 | 0 | 0.00 KM |
| Springpark Drive | £ 0 | 0 | 0.00 KM |
Nearby Transport
| Name | NLC | TLC | Distance |
|---|---|---|---|
| Finsbury Park | 6119 | FPK | 0.90 KM |
| Harringay Green Lanes | 7401 | HRY | 1.21 KM |
| Harringay | 6012 | HGY | 1.44 KM |
| Drayton Park | 6000 | DYP | 1.71 KM |
| Canonbury | 1441 | CNN | 2.08 KM |
Nearby Listings
| Address | Price | Type | Score | Distance |
|---|---|---|---|---|
| Gloucester Drive, London, N4 | £ 925,000 | BUY | 8 / 10 | 0.00 KM |
| Gloucester Drive, London, N4 | £ 895,000 | BUY | 6 / 10 | 0.00 KM |
| Gloucester Drive, London, N4 | £ 695,000 | BUY | 7 / 10 | 0.00 KM |
| Adolphus Road, Finsbury Park, London, N4 | £ 585,000 | BUY | 7 / 10 | 0.06 KM |
| Adolphus Road, London, N4 | £ 575,000 | BUY | 6 / 10 | 0.09 KM |
Nearby Properties
| Address | Price | Distance |
|---|---|---|
| 33 Gloucester Drive | £ 1,000,000 | 0.02 KM |
| 27a Gloucester Drive | £ 285,000 | 0.02 KM |
| 27b Gloucester Drive | £ 200,000 | 0.02 KM |
| 37d Gloucester Drive | £ 606,000 | 0.02 KM |
| 23 Gloucester Drive | £ 320,000 | 0.02 KM |