Alphington Street, St Thomas, Exeter
By Cooksleys
£ 70,000
Reviews
2 out of 5 stars
Cooksleys says ..
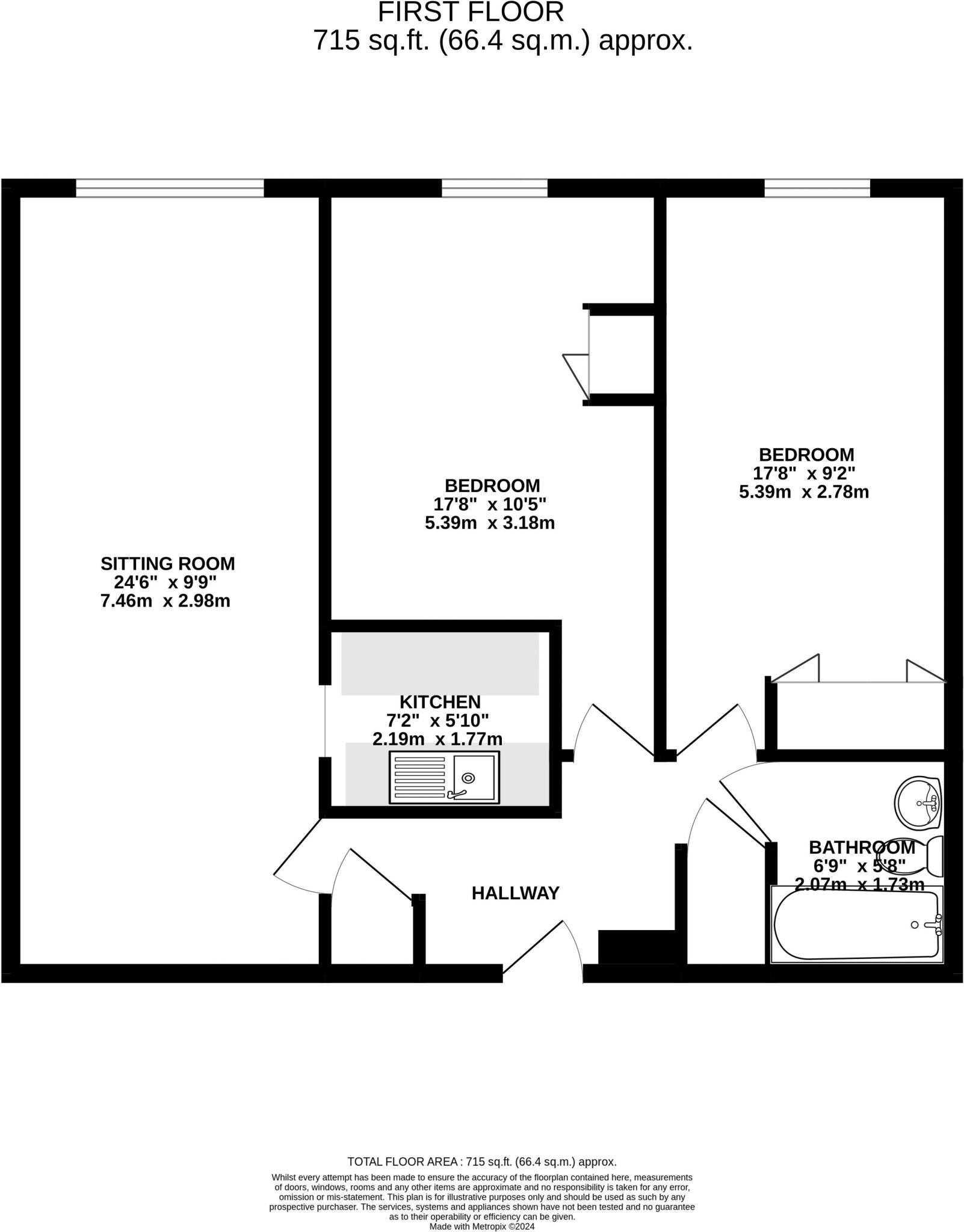
A spacious two bedroom first floor retirement apartment with stunning communal gardens. Situated in a popular development close to the city centre and the Quay, with accommodation comprising entrance hall, lounge, kitchen, two double bedrooms and bathroom. Off road parking.
Property Oracle says ..
This two-bedroom retirement apartment in Alphington Street, St Thomas, Exeter, is listed at £70,000. The property is situated in a location that offers relative proximity to Exeter St Thomas train station and several primary schools, with the city centre also being reasonably accessible. The apartment’s age is evident in the interior photos provided, showing dated fixtures, fittings, and décor. The bathroom and kitchen appear particularly in need of updating. It’s worth noting the property comes with no garden or significant outdoor space. While the price appears competitive given comparable listings in the immediate vicinity, the need for substantial modernisation is a key factor to consider. Potential buyers should budget for renovation costs if they intend to bring the property to a more modern standard. The absence of a garden may also significantly affect the appeal to many prospective buyers. Overall, this property would likely suit an investor or buyer comfortable with a refurbishment project and the location appeals, rather than a buyer looking for a move-in-ready home.
Therefore, we give this property 4 / 10. *Disclaimer: This is our option and does constitute a recommendation or financial advice. Do your own research. *
- Price
- 7
- Condition
- 4
- Location
- 7
- Land
- 1
- Bedrooms
- 2
- Bathrooms
- 1
- Sqft (est)
- 715.00
The heatmap indicates the level of crime in the area. The color of the heatmap indicates the crime severity and recency.
Metrics Year-on-Year
- Average area value
- 332,222.00 £Decreased by 5.67 %
- Est sale value
- 333,905.00 £Increased by 26.56 %
- Average area rental value
- 1,355.00 £/moIncreased by 23.29 %
- Est letting value
- 715.00 £/moUnchanged by 0.00 %
- Est rental Yield
- 4.89 %Increased by 30.75 %
- Crime Rate
- 11.00 %Unchanged by 0.00 %
Agent Activity
Cooksleys created the listing.
Nearby Schools
| Name | Type | Ofsted | Distance |
|---|---|---|---|
| St Thomas Primary School | Academy Converter | Good | 0.40 KM |
| Exeter Cathedral School | Other Independent School | 0.85 KM | |
| St David'S Cofe Primary School | Academy Converter | Good | 0.97 KM |
| Montgomery Primary School | Foundation School | Good | 1.04 KM |
| West Exe School | Academy Sponsor Led | 1.07 KM |
Images
Nearby Streets
| Name | Average Price | Average Sqft | Distance |
|---|---|---|---|
| Dyers Court | £ 0 | 0 | 0.00 KM |
| Edwin Road | £ 0 | 0 | 0.00 KM |
| Weavers Court | £ 0 | 0 | 0.00 KM |
| Ashwood Road | £ 358,750 | 0 | 0.00 KM |
| St Edmunds Court | £ 0 | 0 | 0.00 KM |
Nearby Transport
| Name | NLC | TLC | Distance |
|---|---|---|---|
| Exeter St Thomas | 3414 | EXT | 0.40 KM |
| Exeter Central | 5755 | EXC | 1.21 KM |
| Exeter St David'S | 3410 | EXD | 1.73 KM |
| St James Park (Exeter) | 5751 | SJP | 2.27 KM |
| Polsloe Bridge | 3422 | POL | 4.08 KM |
Nearby Listings
| Address | Price | Type | Score | Distance |
|---|---|---|---|---|
| Home Clyst House, Williams Avenue, Exeter | £ 80,000 | BUY | Unknown | 0.00 KM |
| Alphington Street, St Thomas, Exeter | £ 70,000 | BUY | 4 / 10 | 0.00 KM |
| Alphington Street, Exeter, Devon | £ 53,500 | BUY | 7 / 10 | 0.00 KM |
| Homeclyst House, Alphington Street, EX2 | £ 80,000 | BUY | Unknown | 0.00 KM |
| Flat , Homeclyst House, Alphington Street, Exeter | £ 60,000 | BUY | 6 / 10 | 0.00 KM |
Nearby Properties
| Address | Price | Distance |
|---|---|---|
| 12 Williams Avenue | £ 310,000 | 0.05 KM |
| 5 Williams Avenue | £ 170,000 | 0.05 KM |
| 1 Williams Avenue | £ 77,500 | 0.05 KM |
| 6a Williams Avenue | £ 179,500 | 0.05 KM |
| 7 Williams Avenue | £ 245,000 | 0.05 KM |