Homewise says ..
Guide price for a Home for Life Lifetime Lease for OVER 60s tailored to your personal circumstances and requirements. Your price may vary. OVER 60s could benefit from SAVINGS of up to 59% from the market value with a one-off payment for a Lifetime Lease on this property. £198,500 GUIDE PRIC...
Property Oracle says ..
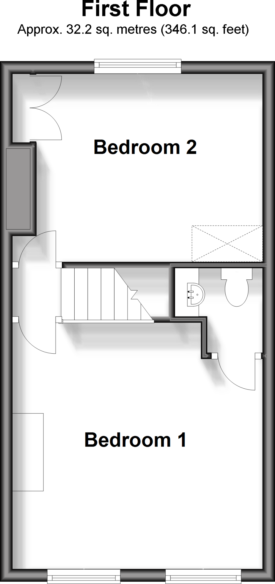
This is a 2-bedroom ground maisonette located on Farningham Road in Caterham, Surrey. The property is in reasonable condition, with modern interiors. The property benefits from good transport links and proximity to local schools. The asking price of £198,500 appears reasonable for the size, location, and condition of the property. While the property is in generally good order, the kitchen and bathroom could benefit from modernisation. The property has a small outdoor area.
Therefore, we give this property 6 / 10. *Disclaimer: This is our option and does constitute a recommendation or financial advice. Do your own research. *
- Price
- 8
- Condition
- 7
- Location
- 7
- Land
- 4
- Bedrooms
- 2
- Bathrooms
- 1
- Sqft (est)
- 375.00
The heatmap indicates the level of crime in the area. The color of the heatmap indicates the crime severity and recency.
Metrics Year-on-Year
- Average area value
- 399,804.00 £Increased by 21.66 %
- Est sale value
- 183,000.00 £Increased by 37.08 %
- Average area rental value
- 1,499.00 £/moIncreased by 9.18 %
- Est letting value
- 375.00 £/moUnchanged by 0.00 %
- Est rental Yield
- 4.50 %Decreased by 10.18 %
- Crime Rate
- 56.00 %Unchanged by 0.00 %
Agent Activity
Homewise created the listing.
Nearby Schools
| Name | Type | Ofsted | Distance |
|---|---|---|---|
| Caterham Sure Start Children'S Centre | Children's Centre | 0.61 KM | |
| Essendene Lodge School | Other Independent School | 1.23 KM | |
| De Stafford School | Academy Converter | Good | 1.31 KM |
| St John'S Cofe Aided Primary School | Voluntary Aided School | Good | 1.33 KM |
| Sunnydown School | Community Special School | Good | 1.47 KM |
Images
Nearby Streets
| Name | Average Price | Average Sqft | Distance |
|---|---|---|---|
| Crescent Road | £ 553,000 | 0 | 0.00 KM |
| Mead Road | £ 385,000 | 0 | 0.00 KM |
| Grange Road | £ 1,350,000 | 0 | 0.00 KM |
| The Circle | £ 550,000 | 0 | 0.00 KM |
| Tillingdown Hill | £ 0 | 0 | 0.00 KM |
Nearby Transport
| Name | NLC | TLC | Distance |
|---|---|---|---|
| Caterham | 5351 | CAT | 0.20 KM |
| Whyteleafe South | 5439 | WHS | 2.18 KM |
| Upper Warlingham | 5391 | UWL | 2.75 KM |
| Woldingham | 5440 | WOH | 2.93 KM |
| Whyteleafe | 5396 | WHY | 2.94 KM |
Nearby Listings
| Address | Price | Type | Score | Distance |
|---|---|---|---|---|
| Farningham Road, Caterham, Surrey | £ 300,000 | BUY | 6 / 10 | 0.00 KM |
| Farningham Road, Caterham, Surrey | £ 198,500 | BUY | 6 / 10 | 0.00 KM |
| Farningham Road, Caterham, CR3 6LL | £ 415,000 | BUY | 6 / 10 | 0.00 KM |
| Farningham Road, Caterham, CR3 | £ 230,000 | BUY | 5 / 10 | 0.01 KM |
| 9B Farningham Road, Caterham, CR3 6LL | £ 165,000 | BUY | 6 / 10 | 0.01 KM |
Nearby Properties
| Address | Price | Distance |
|---|---|---|
| 33 Farningham Road | £ 332,500 | 0.01 KM |
| 17a Farningham Road | £ 58,000 | 0.01 KM |
| 23a Farningham Road | £ 214,500 | 0.01 KM |
| 23 Farningham Road | £ 294,500 | 0.01 KM |
| 11 Farningham Road | £ 185,000 | 0.01 KM |