Howards says ..
A charming Victorian detached villa (1870) with original features, spacious living, 4 bedrooms and modern kitchen. Set in mature grounds with a Koi pond, former train waiting room, stables and driveway. Perfect for families seeking character, space and garden potential
Property Oracle says ..
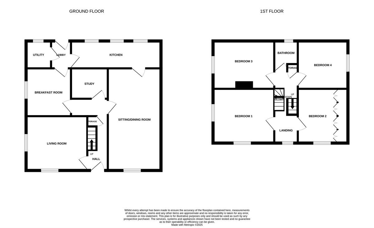
This is a detached period property located on Rollesby Road, Martham. It features four bedrooms and two bathrooms within its 1,250 sqft of living space. The property includes a large garden with mature trees, a pond, and outbuildings. While generally well-maintained, some interior aspects could benefit from modernization. The property is situated in a village environment, offering a balance of peaceful living with proximity to local amenities and schools. The asking price appears relatively high compared to the area’s average, but the property’s unique features and size may justify the premium.
Therefore, we give this property 7 / 10. *Disclaimer: This is our option and does constitute a recommendation or financial advice. Do your own research. *
- Price
- 6
- Condition
- 7
- Location
- 7
- Land
- 9
- Bedrooms
- 4
- Bathrooms
- 2
- Sqft (est)
- 1,250.00
The heatmap indicates the level of crime in the area. The color of the heatmap indicates the crime severity and recency.
Metrics Year-on-Year
- Average area value
- 649,352.00 £Decreased by 3.16 %
- Est sale value
- 523,750.00 £Decreased by 13.43 %
- Average area rental value
- 1,515.00 £/moDecreased by 43.89 %
- Est letting value
- 0.00 £/moDecreased by 100.00 %
- Est rental Yield
- 2.80 %Decreased by 42.03 %
- Crime Rate
- 34.00 %Unchanged by 0.00 %
Agent Activity
Howards created the listing.
Nearby Schools
| Name | Type | Ofsted | Distance |
|---|---|---|---|
| Trinity Children'S Centre | Children's Centre | 0.74 KM | |
| Martham Academy And Nursery | Academy Converter | Good | 0.81 KM |
| Flegg High Ormiston Academy | Academy Converter | 1.62 KM | |
| Rollesby Primary School | Foundation School | Good | 1.72 KM |
| Fleggburgh Cofe Primary School | Voluntary Controlled School | Good | 3.96 KM |
Images
Nearby Streets
| Name | Average Price | Average Sqft | Distance |
|---|---|---|---|
| Hazel Drive | £ 0 | 0 | 0.00 KM |
| The Green | £ 325,000 | 0 | 0.00 KM |
| Cherry Tree Avenue | £ 0 | 0 | 0.00 KM |
| Welbeck Avenue | £ 0 | 0 | 0.00 KM |
| Hemsby Road | £ 230,000 | 0 | 0.00 KM |
Nearby Listings
| Address | Price | Type | Score | Distance |
|---|---|---|---|---|
| Rollesby Road, Martham | £ 675,000 | BUY | 7 / 10 | 0.00 KM |
| Rollesby Road, Martham, Great Yarmouth | £ 650,000 | BUY | 7 / 10 | 0.03 KM |
| Rollesby Road, Martham | £ 695,000 | BUY | 7 / 10 | 0.05 KM |
| Rollesby Road, Martham, Great Yarmouth | £ 650,000 | BUY | 7 / 10 | 0.05 KM |
| Willows Court, Martham, Great Yarmouth | £ 150,000 | BUY | 5 / 10 | 0.06 KM |
Nearby Properties
| Address | Price | Distance |
|---|---|---|
| 2 Willows Court | £ 136,000 | 0.05 KM |
| 3 Willows Court | £ 124,999 | 0.05 KM |
| 5 Willows Court | £ 158,000 | 0.05 KM |
| 14 Willows Court | £ 220,000 | 0.05 KM |
| 6 Willows Court | £ 215,000 | 0.05 KM |