High Street, Whitstable
CH

High Street, Whitstable

By Christopher Hodgson

£ 695,000

Christopher Hodgson says ..

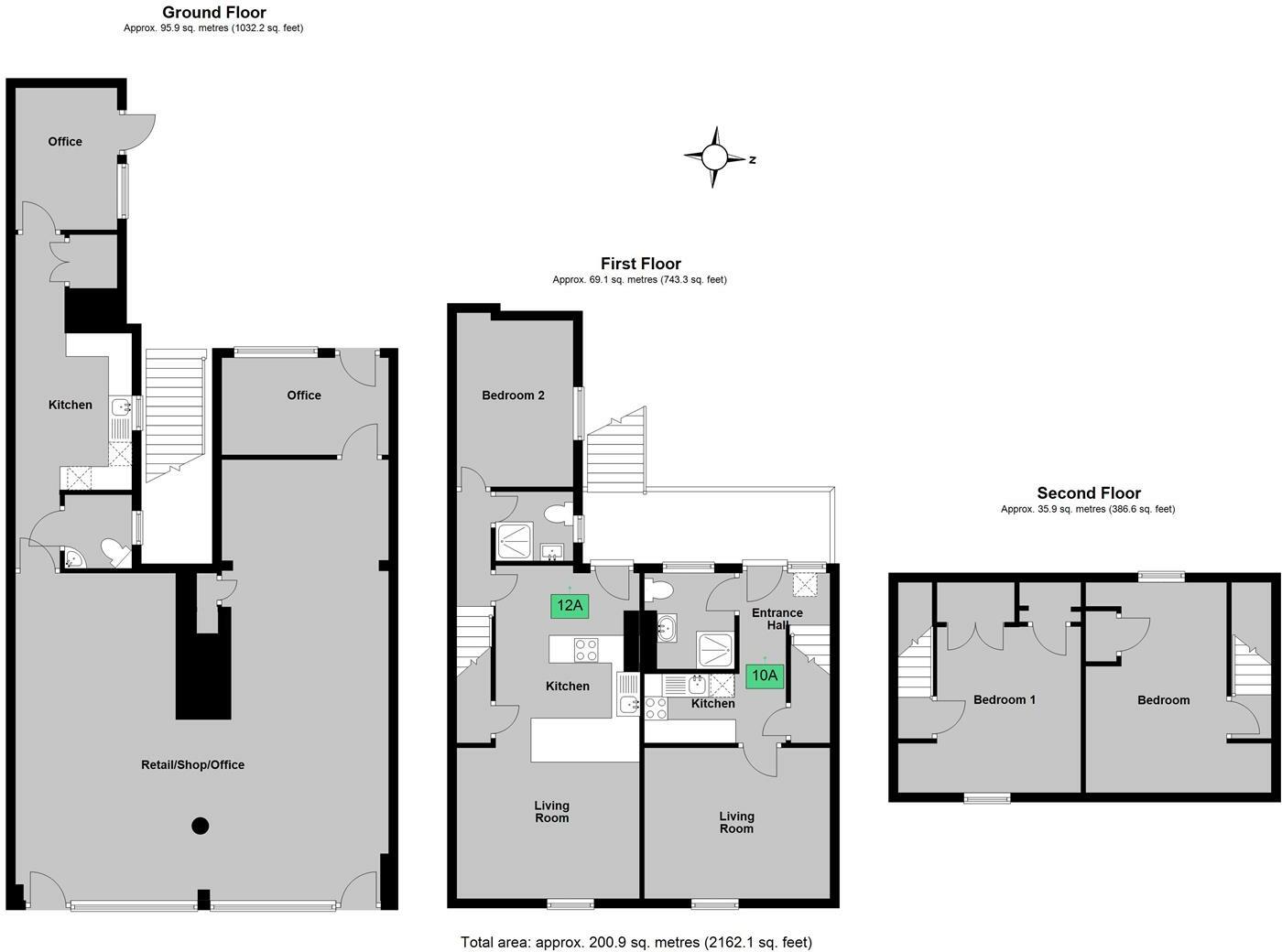
An exciting opportunity to acquire a substantial freehold building in the heart of Whitstable’s vibrant High Street, where it enjoys a prominent trading position with high footfall amongst a wide variety of independent shops, national retailers, highly regarded cafés and restaurants. Whitstable b...

Bedrooms
0
Bathrooms
0

The heatmap indicates the level of crime in the area. The color of the heatmap indicates the crime severity and recency.

Metrics Year-on-Year

Average area value
467,833.00 £
Increased by 3.56 %
from 451,737.00 £
Average area rental value
1,383.00 £/mo
Increased by 4.30 %
from 1,326.00 £/mo
Est rental Yield
3.55 %
Increased by 0.85 %
from 3.52 %
Crime Rate
66.00 %
Unchanged by 0.00 %
from 66.00 %

Agent Activity

  • Christopher Hodgson created the listing.

Nearby Schools

NameTypeOfstedDistance
Isp Polar Re Start CentreOther Independent Special School0.15 KM
Whitstable And Seasalter Endowed Church Of England Junior SchoolVoluntary Aided SchoolOutstanding0.28 KM
St Alphege Church Of England Infant SchoolVoluntary Controlled SchoolGood0.42 KM
Whitstable Junior SchoolFoundation SchoolGood0.47 KM
Westmeads Community Infant SchoolCommunity SchoolOutstanding0.61 KM

Images

High Street, Whitstable High Street, Whitstable High Street, Whitstable High Street, Whitstable High Street, Whitstable High Street, Whitstable High Street, Whitstable High Street, Whitstable High Street, Whitstable High Street, Whitstable High Street, Whitstable High Street, Whitstable High Street, Whitstable High Street, Whitstable High Street, Whitstable High Street, Whitstable High Street, Whitstable High Street, Whitstable High Street, Whitstable High Street, Whitstable High Street, Whitstable High Street, Whitstable High Street, Whitstable High Street, Whitstable

Nearby Streets

NameAverage PriceAverage SqftDistance
Wheelers Alley (CWX32) £ 000.00 KM
Brices Alley £ 000.00 KM
Salt Pans Lane £ 360,00000.00 KM
Shipwrights Lee £ 825,00000.00 KM
Shipyard Alley £ 745,00000.00 KM

Nearby Transport

NameNLCTLCDistance
Whitstable5196WHI1.06 KM
Chestfield And Swalecliffe5200CSW4.74 KM

Nearby Listings

AddressPriceTypeScoreDistance
High Street, Whitstable £ 695,000BUYUnknown0.00 KM
High Street, Whitstable £ 695,000BUYUnknown0.01 KM
Terrys Lane, Whitstable, Kent, CT5 £ 240,000BUY5 / 100.03 KM
Terrys Lane, Whitstable, Kent, CT5 £ 265,000BUY5 / 100.03 KM
Knots Yard, Whitstable £ 400,000BUY7 / 100.03 KM

Nearby Properties

AddressPriceDistance
6a High Street £ 70,0000.04 KM
7 Terrys Lane £ 420,0000.05 KM
9 Terrys Lane £ 185,0000.05 KM
6 Terrys Lane £ 490,0000.05 KM
15 Terrys Lane £ 122,0000.05 KM