Riversdale Road, Thames Ditton, KT7
By Ivy Gate
£ 1,650,000
Reviews
3 out of 5 stars
Ivy Gate says ..
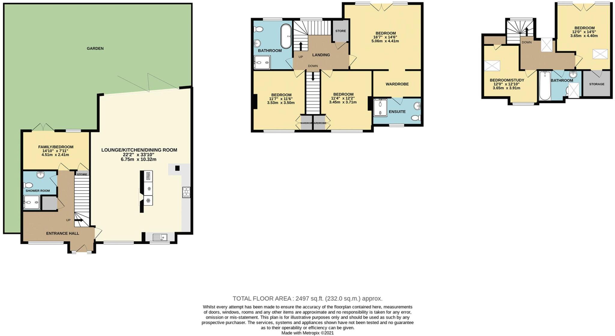
***VIDEO TOUR AVAILABLE***Ivy Gate are delighted to introduce to the market this stunning, detached family home, located in the heart of Thames Ditton village. This exceptional home has been skilfully remodelled/extended to provide 2,500 Sqft of well balanced and beautifully decorated accommo...
Property Oracle says ..
Therefore, we give this property 7 / 10. *Disclaimer: This is our option and does constitute a recommendation or financial advice. Do your own research. *
- Price
- 6
- Condition
- 8
- Location
- 9
- Land
- 7
- Bedrooms
- 6
- Bathrooms
- 4
- Sqft (est)
- 1,562.96
The heatmap indicates the level of crime in the area. The color of the heatmap indicates the crime severity and recency.
Metrics Year-on-Year
- Average area value
- 781,990.00 £Decreased by 16.87 %
- Est sale value
- 1,200,353.28 £Increased by 10.50 %
- Average area rental value
- 2,910.00 £/moIncreased by 3.34 %
- Est letting value
- 3,125.92 £/moUnchanged by 0.00 %
- Est rental Yield
- 4.47 %Increased by 24.51 %
- Crime Rate
- 3.00 %Unchanged by 0.00 %
from 940,702.00 £
from 1,086,257.20 £
from 2,816.00 £/mo
from 3,125.92 £/mo
from 3.59 %
from 3.00 %
Agent Activity
Ivy Gate marked this listing as sold.
Ivy Gate created the listing.
Nearby Schools
| Name | Type | Ofsted | Distance |
|---|---|---|---|
| Thames Ditton Infant School | Foundation School | Outstanding | 0.60 KM |
| The Ditton'S Sure Start Children'S Centre | Children's Centre | 0.83 KM | |
| Esher Sixth Form College | Academy 16-19 Converter | Outstanding | 1.41 KM |
| St Paul'S Catholic Primary School, Thames Ditton | Voluntary Aided School | Good | 1.51 KM |
| Long Ditton St Mary'S Cofe (Aided) Junior School | Voluntary Aided School | Good | 1.75 KM |
Images
Nearby Streets
| Name | Average Price | Average Sqft | Distance |
|---|---|---|---|
| Taggs Boatyard | £ 904,158 | 0 | 0.00 KM |
| Albany Reach | £ 0 | 0 | 0.00 KM |
| Ashdown Place | £ 0 | 0 | 0.00 KM |
| Basing Close | £ 1,650,000 | 0 | 0.00 KM |
| Creek Road | £ 650,000 | 0 | 0.00 KM |
Nearby Transport
| Name | NLC | TLC | Distance |
|---|---|---|---|
| Thames Ditton | 5610 | THD | 0.92 KM |
| Hampton Court | 5561 | HMC | 1.37 KM |
| Hinchley Wood | 5591 | HYW | 2.35 KM |
| Esher | 5558 | ESH | 2.78 KM |
| Hampton Wick | 5589 | HMW | 3.17 KM |
Nearby Listings
| Address | Price | Type | Score | Distance |
|---|---|---|---|---|
| Riversdale Road, Thames Ditton, KT7 | £ 1,650,000 | BUY | 7 / 10 | 0.00 KM |
| The Island, Surrey, KT7 | £ 995,000 | BUY | Unknown | 0.12 KM |
| Summer Road, Thames Ditton, KT7 | £ 1,100,000 | BUY | 7 / 10 | 0.14 KM |
| River Bank, Thames Ditton, KT7 | £ 2,600,000 | BUY | 9 / 10 | 0.14 KM |
| The Island, Thames Ditton | £ 700,000 | BUY | 6 / 10 | 0.14 KM |
Nearby Properties
| Address | Price | Distance |
|---|---|---|
| 21 Riversdale Road | £ 780,000 | 0.00 KM |
| 16 Riversdale Road | £ 140,000 | 0.00 KM |
| 24 Riversdale Road | £ 644,000 | 0.00 KM |
| 18 Riversdale Road | £ 1,000,000 | 0.00 KM |
| 47 The Island | £ 151,000 | 0.12 KM |