Orford Road, Walthamstow
The Stow Brothers logo

Orford Road, Walthamstow

By The Stow Brothers

£ 475,000

Reviews

3 out of 5 stars

The Stow Brothers says ..

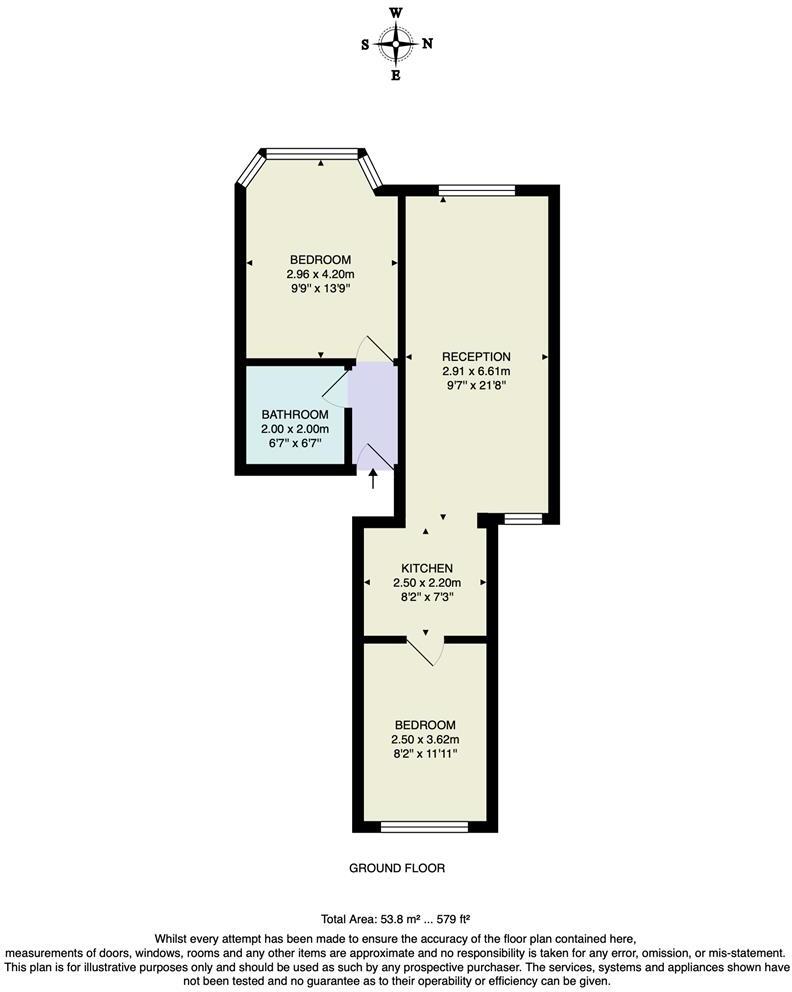
Positioned in the centre of Walthamstow Village, this ground floor flat offers a rare opportunity to secure a home in one of East London’s most full of character neighbourhoods. With two beautifully finished bedrooms and interiors that strike a graceful balance of style and comfort, the layout fl...

Property Oracle says ..

This is a two-bedroom flat on Orford Road, Walthamstow. The property has been recently renovated and is in excellent condition, featuring a modern kitchen and bathroom. It benefits from its proximity to Walthamstow Central station and nearby schools. While it lacks a garden, its location and updated interior make it an attractive property. The price is slightly above the local average per square foot, but this is justifiable given the condition of the property.

Therefore, we give this property 6 / 10. *Disclaimer: This is our option and does constitute a recommendation or financial advice. Do your own research. *

Price
7
Condition
9
Location
8
Land
3
Bedrooms
2
Bathrooms
1
Sqft (est)
579.10

The heatmap indicates the level of crime in the area. The color of the heatmap indicates the crime severity and recency.

Metrics Year-on-Year

Average area value
500,000.00 £
Decreased by 20.05 %
from 625,401.00 £
Est sale value
441,274.20 £
Increased by 0.53 %
from 438,957.80 £
Average area rental value
2,149.00 £/mo
Increased by 11.93 %
from 1,920.00 £/mo
Est letting value
1,737.30 £/mo
Increased by 50.00 %
from 1,158.20 £/mo
Est rental Yield
5.16 %
Increased by 40.22 %
from 3.68 %
Crime Rate
5.00 %
Unchanged by 0.00 %
from 5.00 %

Agent Activity

  • The Stow Brothers created the listing.

Nearby Schools

NameTypeOfstedDistance
Walthamstow East Children CentreChildren's Centre0.41 KM
Church Hill Nursery SchoolLocal Authority Nursery SchoolOutstanding0.42 KM
Walthamstow School For GirlsCommunity SchoolOutstanding0.49 KM
Emmanuel Community SchoolFree SchoolsGood0.72 KM
Thomas Gamuel Primary SchoolAcademy Sponsor LedGood0.97 KM

Images

Orford Road, E17 Orford Road, E17 Orford Road, E17 Orford Road, E17 Orford Road, E17 Orford Road, E17 Orford Road, E17 Orford Road, E17 Orford Road, E17 Orford Road, E17 Orford Road, E17 Orford Road, E17 Orford Road, E17 Orford Road, E17 Orford Road, E17 Orford Road, E17

Nearby Streets

NameAverage PriceAverage SqftDistance
Stanhope Road £ 430,00000.00 KM
West Avenue £ 566,56300.00 KM
First Avenue £ 812,50000.00 KM
Third Avenue £ 706,42900.00 KM
Eastbank Close £ 485,00000.00 KM

Nearby Transport

NameNLCTLCDistance
Walthamstow Central6953WHC0.47 KM
Walthamstow Queen'S Road7407WMW0.88 KM
Leyton Midland Road7402LEM1.56 KM
Wood Street6954WST1.60 KM
St James Street6973SJS1.88 KM

Nearby Listings

AddressPriceTypeScoreDistance
Orford Road, Walthamstow £ 475,000BUY6 / 100.00 KM
West Avenue, Walthamstow Village, London, E17 £ 400,000BUY6 / 100.10 KM
Orford Road, Walthamstow £ 500,000BUY6 / 100.10 KM
West Avenue, LONDON, London, E17 £ 300,000BUY5 / 100.12 KM
Second Avenue, Walthamstow, London, E17 £ 525,000BUYUnknown0.13 KM

Nearby Properties

AddressPriceDistance
84 Orford Road £ 108,0000.04 KM
78 Orford Road £ 280,0000.04 KM
70 Orford Road £ 570,0000.04 KM
74 Orford Road £ 560,0000.04 KM
66 Orford Road £ 970,0000.04 KM