Bernard Street, St. Albans, Hertfordshire, AL3
By Frost's Estate Agents
£ 575,000
Reviews
4 out of 5 stars
Frost's Estate Agents says ..
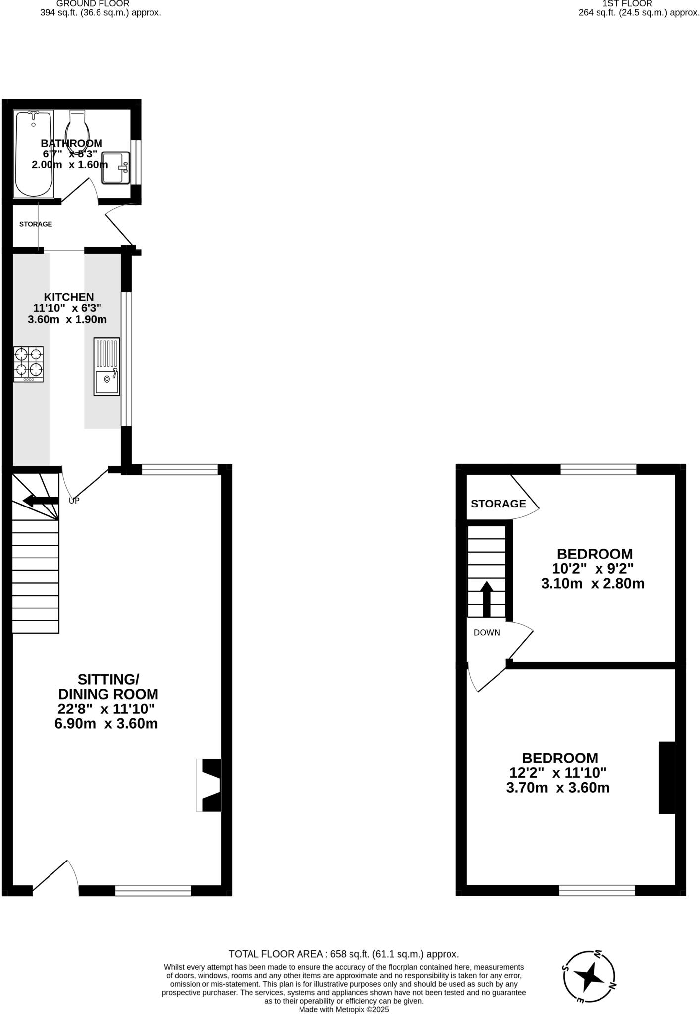
A two double bedroom end of terrace character cottage, which is ideally positioned within the heart of the city centre. The property is complemented by a lengthy private rear garden, off street parking and is conveniently located 0.2 miles to the high street and just 0.9 miles to the mainline tra...
Property Oracle says ..
This end of terrace property is located in the St Peters area of St Albans, Hertfordshire. The property is within walking distance of local schools and amenities and is conveniently located for access to St Albans City train station, providing links to London and beyond. The property itself is a two bedroom, one bathroom house that has been recently renovated to a high standard. The property benefits from a well maintained rear garden. The list price of £575,000 is slightly above the average price for the area, but considering the recent renovations and desirable location, it appears to be a reasonable price.
Therefore, we give this property 8 / 10. *Disclaimer: This is our option and does constitute a recommendation or financial advice. Do your own research. *
- Price
- 7
- Condition
- 9
- Location
- 9
- Land
- 7
- Bedrooms
- 2
- Bathrooms
- 1
- Sqft (est)
- 721.83
The heatmap indicates the level of crime in the area. The color of the heatmap indicates the crime severity and recency.
Metrics Year-on-Year
- Average area value
- 488,600.00 £Decreased by 6.01 %
- Est sale value
- 454,031.07 £Increased by 9.01 %
- Average area rental value
- 1,814.00 £/moIncreased by 6.02 %
- Est letting value
- 1,443.66 £/moIncreased by 100.00 %
- Est rental Yield
- 4.46 %Increased by 12.91 %
- Crime Rate
- 4.00 %Unchanged by 0.00 %
Agent Activity
Frost's Estate Agents created the listing.
Nearby Schools
| Name | Type | Ofsted | Distance |
|---|---|---|---|
| Aboyne Lodge Junior Mixed And Infant School | Community School | Good | 0.28 KM |
| Alban City School | Free Schools | Good | 0.54 KM |
| Sa6 St Albans Family Centre | Children's Centre | 0.61 KM | |
| St Albans High School For Girls | Other Independent School | 0.63 KM | |
| Muriel Green Nursery School | Local Authority Nursery School | Good | 0.65 KM |
Images
Nearby Streets
| Name | Average Price | Average Sqft | Distance |
|---|---|---|---|
| Cattle Walk | £ 0 | 0 | 0.00 KM |
| St Bernard's Road | £ 0 | 0 | 0.00 KM |
| Cross Street | £ 0 | 0 | 0.00 KM |
| Jubilee Square | £ 200,833 | 0 | 0.00 KM |
| Elm Lawn Close | £ 0 | 0 | 0.00 KM |
Nearby Transport
| Name | NLC | TLC | Distance |
|---|---|---|---|
| St Albans City | 1548 | SAC | 1.43 KM |
| St Albans Abbey | 1562 | SAA | 1.50 KM |
| Park Street | 1561 | PKT | 3.58 KM |
| How Wood (Hertfordshire) | 1563 | HWW | 4.49 KM |
| Bricket Wood | 1560 | BWO | 6.24 KM |
Nearby Listings
| Address | Price | Type | Score | Distance |
|---|---|---|---|---|
| Bernard Street, St. Albans, Hertfordshire, AL3 | £ 575,000 | BUY | 8 / 10 | 0.00 KM |
| Bernard Street, St. Albans, Hertfordshire, AL3 | £ 650,000 | BUY | 7 / 10 | 0.00 KM |
| Dalton Street, St. Albans | £ 680,000 | BUY | 7 / 10 | 0.02 KM |
| Bernard Street, St Albans | £ 780,000 | BUY | 7 / 10 | 0.04 KM |
| Bernard Street, St Albans, AL3 | £ 715,000 | BUY | 7 / 10 | 0.04 KM |
Nearby Properties
| Address | Price | Distance |
|---|---|---|
| 75 Bernard Street | £ 590,000 | 0.01 KM |
| 71 Bernard Street | £ 660,000 | 0.01 KM |
| 89 Bernard Street | £ 690,000 | 0.01 KM |
| 79 Bernard Street | £ 465,000 | 0.01 KM |
| 63 Bernard Street | £ 640,000 | 0.01 KM |