Romans says ..
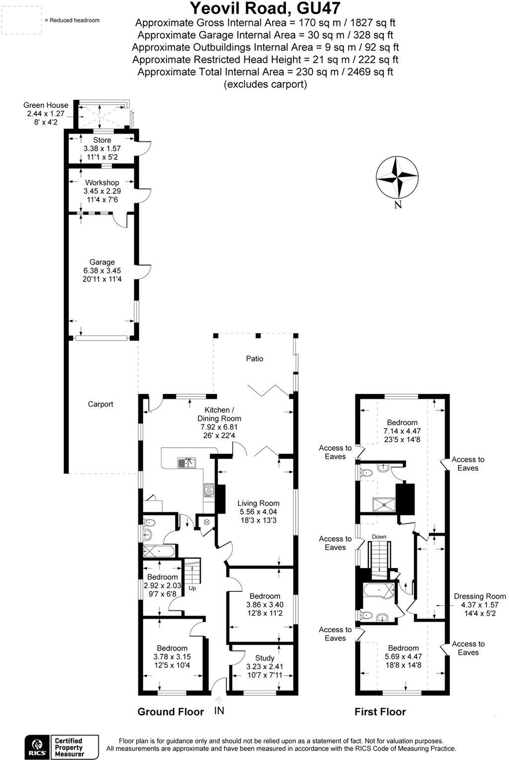
Offered to the market with no onward chain complications and set within a non-estate location is this well presented five bedroom detached chalet bungalow. The property boasts ample space throughout and comprises a generous study and double bedroom to the front. The large entrance hal...
Property Oracle says ..
Therefore, we give this property 6 / 10. *Disclaimer: This is our option and does constitute a recommendation or financial advice. Do your own research. *
- Price
- 6
- Condition
- 7
- Location
- 7
- Land
- 7
- Bedrooms
- 5
- Bathrooms
- 3
- Sqft (est)
- 1,540.59
The heatmap indicates the level of crime in the area. The color of the heatmap indicates the crime severity and recency.
Metrics Year-on-Year
- Average area value
- 217,143.00 £Decreased by 10.70 %
- Est sale value
- 378,985.14 £Decreased by 12.14 %
- Average area rental value
- 1,267.00 £/moIncreased by 25.57 %
- Est letting value
- 1,540.59 £/moUnchanged by 0.00 %
- Est rental Yield
- 7.00 %Increased by 40.56 %
- Crime Rate
- 38.00 %Unchanged by 0.00 %
from 243,173.00 £
from 431,365.20 £
from 1,009.00 £/mo
from 1,540.59 £/mo
from 4.98 %
from 38.00 %
Agent Activity
Romans created the listing.
Nearby Schools
| Name | Type | Ofsted | Distance |
|---|---|---|---|
| Owlsmoor Primary School | Community School | Good | 0.39 KM |
| College Town Primary School | Community School | Good | 0.58 KM |
| Alders And Chestnuts Children'S Centre | Children's Centre | 0.65 KM | |
| Wildmoor Heath School | Academy Converter | 1.54 KM | |
| Edgbarrow School | Academy Converter | 2.05 KM |
Images
Nearby Streets
| Name | Average Price | Average Sqft | Distance |
|---|---|---|---|
| The Greenway | £ 475,000 | 0 | 0.00 KM |
| Owlsmoor Road | £ 525,000 | 0 | 0.00 KM |
| The Greenway | £ 0 | 0 | 0.00 KM |
| Alexander Close | £ 275,000 | 0 | 0.00 KM |
| Faversham Road | £ 0 | 0 | 0.00 KM |
Nearby Transport
| Name | NLC | TLC | Distance |
|---|---|---|---|
| Blackwater | 5625 | BAW | 2.29 KM |
| Sandhurst (Berks) | 5646 | SND | 2.90 KM |
| Camberley | 5682 | CAM | 4.20 KM |
| Crowthorne | 5628 | CRN | 4.76 KM |
| Frimley | 5683 | FML | 5.69 KM |
Nearby Listings
| Address | Price | Type | Score | Distance |
|---|---|---|---|---|
| Yeovil Road, Owlsmoor, Sandhurst | £ 650,000 | BUY | 6 / 10 | 0.00 KM |
| Springmead Court, Cambridge Road, Sandhurst | £ 240,000 | BUY | 6 / 10 | 0.19 KM |
| Yeovil Road, Owlsmoor, Sandhurst, Berkshire, GU47 | £ 975,000 | BUY | 7 / 10 | 0.19 KM |
| Millins Close, Owlsmoor, Sandhurst, Berkshire, GU47 | £ 395,000 | BUY | 6 / 10 | 0.27 KM |
| Silver Hill, College Town, Sandhurst, Berkshire, GU47 | £ 375,000 | BUY | 6 / 10 | 0.28 KM |
Nearby Properties
| Address | Price | Distance |
|---|---|---|
| 64 Yeovil Road | £ 715,000 | 0.01 KM |
| 20 Yeovil Road | £ 195,000 | 0.01 KM |
| 66 Yeovil Road | £ 467,500 | 0.01 KM |
| 50 Yeovil Road | £ 440,000 | 0.02 KM |
| 62 Yeovil Road | £ 395,000 | 0.02 KM |