Northfields says ..
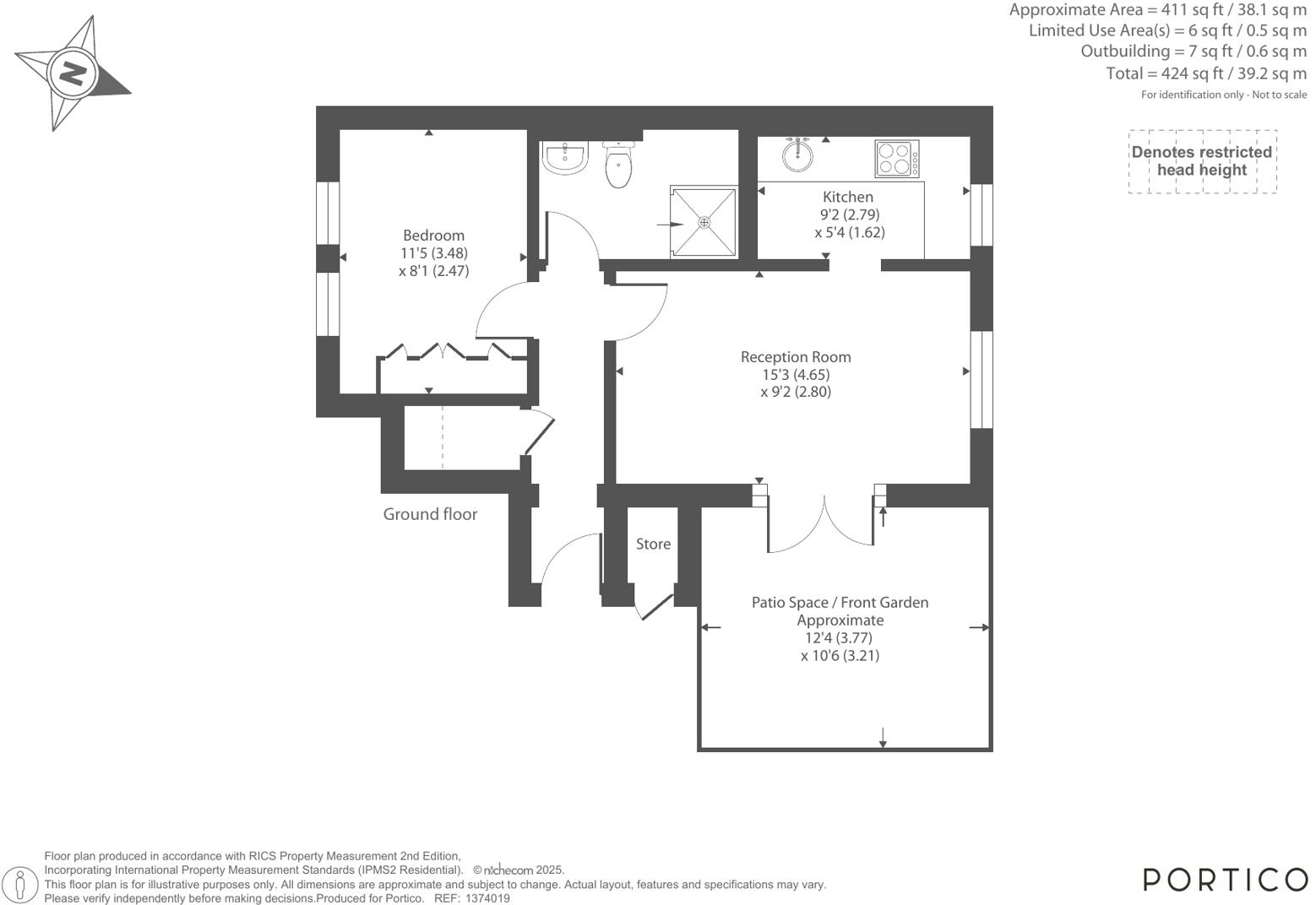
Set on the ground floor of a quiet, purpose-built development, this charming one-bedroom apartment features an extended lease and allocated parking. The accommodation is accessed via a welcoming entrance hallway with a versatile storage cupboard and doors leading to all rooms, includin...
Property Oracle says ..
This is a one-bedroom apartment located on Holley Road in Askew, London. The property is in reasonable condition and benefits from a garden. The location is good, with good transport links and nearby schools. The property is reasonably priced for the area.
Therefore, we give this property 7 / 10. *Disclaimer: This is our option and does constitute a recommendation or financial advice. Do your own research. *
- Price
- 8
- Condition
- 7
- Location
- 7
- Land
- 8
- Bedrooms
- 1
- Bathrooms
- 1
- Sqft (est)
- 412.98
The heatmap indicates the level of crime in the area. The color of the heatmap indicates the crime severity and recency.
Metrics Year-on-Year
- Average area value
- 841,000.00 £Increased by 16.53 %
- Est sale value
- 348,142.14 £Increased by 6.04 %
- Average area rental value
- 2,099.00 £/moIncreased by 10.71 %
- Est letting value
- 825.96 £/moUnchanged by 0.00 %
- Est rental Yield
- 3.00 %Decreased by 4.76 %
- Crime Rate
- 7.00 %Unchanged by 0.00 %
Agent Activity
Northfields created the listing.
Nearby Schools
| Name | Type | Ofsted | Distance |
|---|---|---|---|
| Wendell Park Primary School | Community School | Good | 0.26 KM |
| Good Shepherd Rc Primary School | Voluntary Aided School | Outstanding | 0.67 KM |
| Southfield Primary School | Community School | Good | 0.72 KM |
| Acton Park Children'S Centre | Children's Centre Linked Site | 0.81 KM | |
| King Fahad Academy | Other Independent School | 0.83 KM |
Images
Nearby Streets
| Name | Average Price | Average Sqft | Distance |
|---|---|---|---|
| Jeddo Mews | £ 0 | 0 | 0.00 KM |
| Larch Avenue | £ 0 | 0 | 0.00 KM |
| Uxbridge Road | £ 0 | 0 | 0.00 KM |
| The Vale/Uxbridge Road | £ 0 | 0 | 0.00 KM |
| Queen Anne's Grove | £ 599,500 | 0 | 0.00 KM |
Nearby Transport
| Name | NLC | TLC | Distance |
|---|---|---|---|
| Acton Central | 1404 | ACC | 1.40 KM |
| South Acton | 1452 | SAT | 2.17 KM |
| Acton Main Line | 3000 | AML | 2.24 KM |
| Gunnersbury | 5588 | GUN | 3.02 KM |
| Chiswick | 5583 | CHK | 3.18 KM |
Nearby Listings
| Address | Price | Type | Score | Distance |
|---|---|---|---|---|
| Holley Road, London | £ 330,000 | BUY | 7 / 10 | 0.00 KM |
| Holley Road, London, W3 | £ 335,000 | BUY | 7 / 10 | 0.00 KM |
| Holley Road, London | £ 345,000 | BUY | 6 / 10 | 0.00 KM |
| Holley Road, London, W3 | £ 350,000 | BUY | 8 / 10 | 0.00 KM |
| Holley Road, W3 | £ 335,000 | BUY | 6 / 10 | 0.02 KM |
Nearby Properties
| Address | Price | Distance |
|---|---|---|
| 57 Holley Road | £ 200,000 | 0.02 KM |
| 69 Holley Road | £ 299,000 | 0.02 KM |
| 37 Holley Road | £ 135,000 | 0.02 KM |
| 27 Holley Road | £ 201,500 | 0.02 KM |
| 51 Holley Road | £ 315,000 | 0.02 KM |