The Down, Alveston, BS35
By Lisa Costa Residential Sales & Lettings
£ 275,000
Reviews
2 out of 5 stars
Lisa Costa Residential Sales & Lettings says ..
This 2-bedroom detached bungalow, without an onward chain, presents a unique opportunity for individuals seeking a property with potential.
Property Oracle says ..
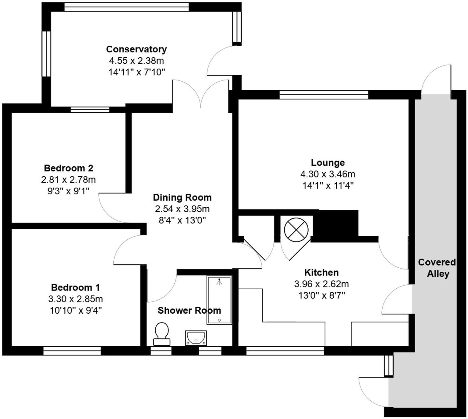
The property is a 2 bedroom, 1 bathroom detached house located in Alveston, South Gloucestershire. The list price is £275,000. The property benefits from a garden, however, it appears to be somewhat overgrown and in need of attention. The house itself is in need of modernisation and updating. The carpets and decor are dated, and some areas show signs of wear and tear. The kitchen and bathroom are particularly tired and would benefit from a full refurbishment. While the location in Alveston is pleasant and relatively quiet, the proximity to good schools like St Helen’s Church of England Primary School (Outstanding Ofsted rating) and Marlwood School is a positive. However, transport links may be a consideration, with the nearest train stations being several kilometers away. Considering the average house price in the area is significantly higher (£641,416) and the average price per square foot is £349, the list price of £275,000 for this property appears to reflect its condition and the need for substantial renovation. The property’s relatively small size (702.35 sqft) compared to the area average (1,835 sqft) also contributes to the lower price point. However, the need for modernisation should be factored into any potential buyer’s calculations.
Therefore, we give this property 5 / 10. *Disclaimer: This is our option and does constitute a recommendation or financial advice. Do your own research. *
- Price
- 6
- Condition
- 4
- Location
- 7
- Land
- 5
- Bedrooms
- 2
- Bathrooms
- 1
- Sqft (est)
- 702.35
The heatmap indicates the level of crime in the area. The color of the heatmap indicates the crime severity and recency.
Metrics Year-on-Year
- Average area value
- 697,500.00 £Increased by 25.15 %
- Est sale value
- 294,987.00 £Increased by 6.33 %
- Average area rental value
- 1,408.00 £/moDecreased by 13.35 %
- Est letting value
- 0.00 £/moDecreased by 100.00 %
- Est rental Yield
- 2.42 %Decreased by 30.86 %
- Crime Rate
- 14.00 %Unchanged by 0.00 %
Agent Activity
Lisa Costa Residential Sales & Lettings created the listing.
Nearby Schools
| Name | Type | Ofsted | Distance |
|---|---|---|---|
| Marlwood School | Academy Sponsor Led | Requires improvement | 0.41 KM |
| St Helen'S Church Of England Primary School | Voluntary Controlled School | Outstanding | 0.83 KM |
| Gillingstool Primary School | Community School | Requires improvement | 2.48 KM |
| Thornbury Children'S Centre | Children's Centre Linked Site | 2.54 KM | |
| St Mary'S Church Of England Primary School, Thornbury | Voluntary Aided School | Outstanding | 2.64 KM |
Images
Nearby Streets
| Name | Average Price | Average Sqft | Distance |
|---|---|---|---|
| Lime Grove | £ 0 | 0 | 0.00 KM |
| West View | £ 0 | 0 | 0.00 KM |
| Greenhill Lane | £ 1,015,000 | 0 | 0.00 KM |
| Barnwell Place | £ 442,500 | 0 | 0.00 KM |
| Locks Acre | £ 100,000 | 0 | 0.00 KM |
Nearby Transport
| Name | NLC | TLC | Distance |
|---|---|---|---|
| Patchway | 3213 | PWY | 7.74 KM |
| Bristol Parkway | 3230 | BPW | 8.55 KM |
| Filton Abbey Wood | 3235 | FIT | 9.94 KM |
Nearby Listings
| Address | Price | Type | Score | Distance |
|---|---|---|---|---|
| The Down, Alveston, BS35 | £ 275,000 | BUY | 5 / 10 | 0.00 KM |
| Bush Court, Alveston, BS35 | £ 225,000 | BUY | 5 / 10 | 0.13 KM |
| 13 The Square, Alveston, South Gloucestershire, BS35 | £ 495,000 | BUY | 7 / 10 | 0.14 KM |
| The Square, Alveston, Bristol | £ 250,000 | BUY | 5 / 10 | 0.14 KM |
| Vattingstone Lane, Alveston, BS35 | £ 450,000 | BUY | 7 / 10 | 0.20 KM |
Nearby Properties
| Address | Price | Distance |
|---|---|---|
| 6 The Down | £ 450,000 | 0.01 KM |
| 13 The Down | £ 550,000 | 0.01 KM |
| 7 The Down | £ 475,000 | 0.01 KM |
| 5 The Down | £ 520,250 | 0.01 KM |
| 17 The Down | £ 141,500 | 0.01 KM |