Pond Lane, Greetham, Oakham, LE15 7NW
By Richardson Estate Agents
£ 175,000
Reviews
2 out of 5 stars
Richardson Estate Agents says ..
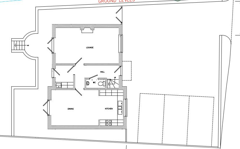
A rare opportunity to acquire an individual building plot within the conservation area of this Rutland village with Full Planning Permission for a cottage style detached home. Ideal for those looking to develop a comfortable modern detached home for themselves or for a developer to build out.
Property Oracle says ..
This listing is for a building plot in Greetham, Rutland, with full planning permission for a new detached cottage-style house. The plot is located on Pond Lane and benefits from what appears to be a reasonably large area of land, partially landscaped, and including a shed. The location in Greetham is advantageous, offering a rural setting while remaining relatively close to amenities in Oakham and Stamford. Nearby schools are present but may require car transportation. The lack of immediate public transport is a factor to consider. The absence of details such as exact plot dimensions and specifics on the planning permission limits the accuracy of a comprehensive evaluation. The nearby property sales indicate a range of prices, reflecting the variability of property sizes and conditions. The price listed for the plot is within the anticipated range given the area and planning permission but potential buyers should be aware of the costs involved in building a house on it.
Therefore, we give this property 5 / 10. *Disclaimer: This is our option and does constitute a recommendation or financial advice. Do your own research. *
- Price
- 7
- Condition
- 3
- Location
- 7
- Land
- 6
- Bedrooms
- 0
- Bathrooms
- 0
- Sqft (est)
- 1,000.00
The heatmap indicates the level of crime in the area. The color of the heatmap indicates the crime severity and recency.
Metrics Year-on-Year
- Average area value
- 415,800.00 £Decreased by 18.02 %
- Est sale value
- 346,000.00 £Increased by 45.38 %
- Average area rental value
- 1,950.00 £/moIncreased by 44.44 %
- Est letting value
- 1,000.00 £/mo
- Est rental Yield
- 5.63 %Increased by 76.49 %
- Crime Rate
- 45.00 %Unchanged by 0.00 %
Agent Activity
Richardson Estate Agents created the listing.
Nearby Schools
| Name | Type | Ofsted | Distance |
|---|---|---|---|
| Cottesmore Academy | Academy Sponsor Led | Requires improvement | 2.73 KM |
| Exton And Greetham Cofe Primary School | Academy Converter | 3.46 KM | |
| The Shires | Other Independent Special School | Good | 3.73 KM |
| St Nicholas Church Of England Primary School | Academy Converter | Good | 4.22 KM |
| South Witham Academy | Academy Sponsor Led | Requires improvement | 4.82 KM |
Images
Nearby Listings
| Address | Price | Type | Score | Distance |
|---|---|---|---|---|
| Pond Lane, Greetham, Oakham, LE15 7NW | £ 175,000 | BUY | 5 / 10 | 0.00 KM |
| Pond Lane, Greetham, Oakham | £ 420,000 | BUY | 6 / 10 | 0.05 KM |
| Oak House Court, Main Street, Greetham, LE15 7NL | £ 675,000 | BUY | 8 / 10 | 0.07 KM |
| Main Street, Greetham, Oakham, LE15 7NL | £ 635,000 | BUY | 6 / 10 | 0.07 KM |
| Development Opportunity, Greetham, Oakham, Rutland LE15 7NL | £ 675,000 | BUY | 5 / 10 | 0.10 KM |
Nearby Properties
| Address | Price | Distance |
|---|---|---|
| 6 Pond Lane | £ 180,000 | 0.02 KM |
| 8 Pond Lane | £ 208,000 | 0.02 KM |
| The Gables | £ 520,000 | 0.02 KM |
| 12 Pond Lane | £ 155,000 | 0.02 KM |
| 10 Pond Lane | £ 227,000 | 0.05 KM |