Chesterton Road, South Shields
By NGU HOMESALES
£ 90,000
Reviews
3 out of 5 stars
NGU HOMESALES says ..
Investment Opportunity | Tenant in Situ | Rent from Day One | 8% Yield | Great Location | Close to Simonside Metro Station | Enclosed Garden | Keen Seller
Property Oracle says ..
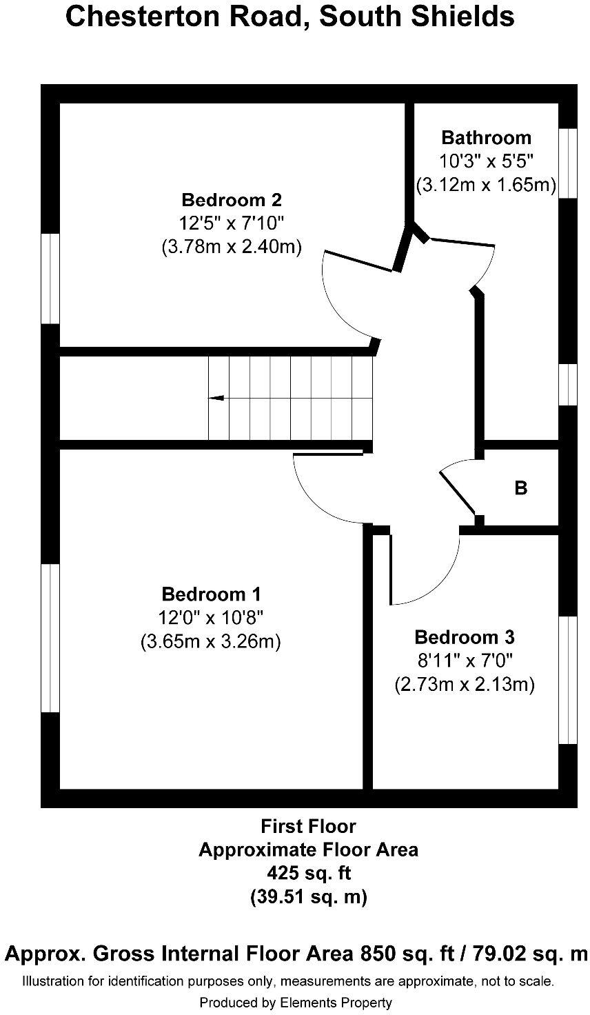
This three-bedroom terraced house in South Shields, Tyne and Wear is listed at £90,000. The property benefits from a small garden and is located close to several schools and transport links. The average price per square foot in the area is £342, while this property is listed at approximately £254 per square foot. The interior appears to be in reasonable condition, though some minor cosmetic updates may be desirable. The property is in need of some modernisation, but is not in need of any major structural repairs.
Therefore, we give this property 6 / 10. *Disclaimer: This is our option and does constitute a recommendation or financial advice. Do your own research. *
- Price
- 6
- Condition
- 6
- Location
- 7
- Land
- 5
- Bedrooms
- 3
- Bathrooms
- 1
- Sqft (est)
- 353.04
- Lot (est)
- 850.00
The heatmap indicates the level of crime in the area. The color of the heatmap indicates the crime severity and recency.
Metrics Year-on-Year
- Average area value
- 410,714.00 £Increased by 0.52 %
- Est sale value
- 148,276.80 £Increased by 4.48 %
- Average area rental value
- 1,363.00 £/moDecreased by 8.52 %
- Est letting value
- 353.04 £/moUnchanged by 0.00 %
- Est rental Yield
- 3.98 %Decreased by 9.13 %
- Crime Rate
- 12.00 %Unchanged by 0.00 %
Agent Activity
NGU HOMESALES created the listing.
Nearby Schools
| Name | Type | Ofsted | Distance |
|---|---|---|---|
| Biddick Hall Junior School | Community School | Good | 0.12 KM |
| Holy Trinity Church Of England Academy (South Shields) | Academy Converter | Good | 0.43 KM |
| Biddick Hall And Whietleas | Children's Centre | 0.46 KM | |
| Biddick Hall Infants' School | Community School | Good | 0.51 KM |
| Monkton Infants' School | Academy Converter | Good | 0.91 KM |
Images
Nearby Streets
| Name | Average Price | Average Sqft | Distance |
|---|---|---|---|
| Ruskin Crescent | £ 0 | 0 | 0.00 KM |
| Dryden Close | £ 109,995 | 0 | 0.00 KM |
| Douglas Close | £ 0 | 0 | 0.00 KM |
| Strathmore Gardens | £ 249,995 | 0 | 0.00 KM |
| Hartford Road | £ 90,000 | 0 | 0.00 KM |
Nearby Transport
| Name | NLC | TLC | Distance |
|---|---|---|---|
| Sunderland | 7640 | SUN | 9.53 KM |
Nearby Listings
| Address | Price | Type | Score | Distance |
|---|---|---|---|---|
| Chesterton Road, South Shields | £ 90,000 | BUY | 6 / 10 | 0.00 KM |
| South Shields, Tyne and Wear, NE34 | £ 120,000 | BUY | 6 / 10 | 0.17 KM |
| Belloc Avenue, South Shields | £ 114,995 | BUY | 7 / 10 | 0.18 KM |
| Bunyan Avenue, South Shields | £ 110,000 | BUY | 7 / 10 | 0.29 KM |
| Sheridan Road, South Shields | £ 120,000 | BUY | 6 / 10 | 0.37 KM |
Nearby Properties
| Address | Price | Distance |
|---|---|---|
| 10 Boswell Avenue | £ 87,000 | 0.16 KM |
| 96 Belloc Avenue | £ 125,000 | 0.21 KM |
| 65 Belloc Avenue | £ 80,000 | 0.21 KM |
| 74 Belloc Avenue | £ 65,000 | 0.21 KM |
| 7 Belloc Avenue | £ 85,000 | 0.21 KM |