Westerlands, Stapleford, NG9
By Towns & Crawford Sales & Letting Agent
£ 185,000
Reviews
3 out of 5 stars
Towns & Crawford Sales & Letting Agent says ..
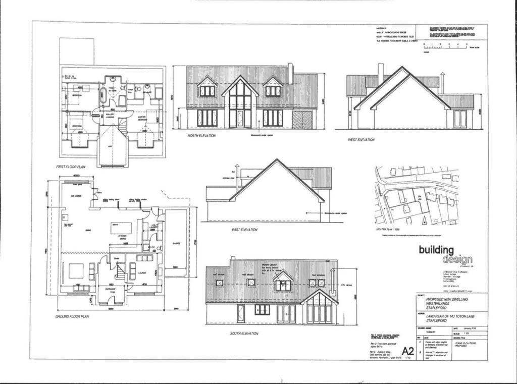
Calling all Self Builders... this is a rare and exciting opportunity to purchase a spectacular parcel of prime residential development land with planning permission granted for the construction of your four double bedroom GRAND DESIGN Dormer Bungalow.
Property Oracle says ..
This listing presents a self-build opportunity on a plot of land in Stapleford, Nottinghamshire, with planning permission already secured for a four-bedroom, three-bathroom dormer bungalow. The architectural plans show a spacious, modern design. The location is advantageous, being close to well-regarded schools, including the Outstanding George Spencer Academy. The proximity to transportation links and Stapleford’s town center offers further convenience. However, the absence of the actual square footage of the build and plot of land hinders a precise evaluation of the price per square foot and therefore a precise value for money assessment. The images showcase a promising design, but the final quality will hinge on the construction process. The existing garden area is of a reasonable size, although it appears in need of some landscaping to reach its full potential. Overall, this property presents a compelling option for those seeking to build a bespoke home in a convenient location, providing they are aware of the need for further assessment. The price, while seemingly competitive based on comparable properties nearby, requires more precise information to give an exact determination of value.
Therefore, we give this property 6 / 10. *Disclaimer: This is our option and does constitute a recommendation or financial advice. Do your own research. *
- Price
- 7
- Condition
- 6
- Location
- 7
- Land
- 6
- Bedrooms
- 4
- Bathrooms
- 3
The heatmap indicates the level of crime in the area. The color of the heatmap indicates the crime severity and recency.
Metrics Year-on-Year
- Average area value
- 246,667.00 £Decreased by 1.29 %
- Average area rental value
- 968.00 £/moIncreased by 35.76 %
- Est rental Yield
- 4.71 %Increased by 37.72 %
- Crime Rate
- 9.00 %Unchanged by 0.00 %
Agent Activity
Towns & Crawford Sales & Letting Agent marked this listing as sold.
Towns & Crawford Sales & Letting Agent created the listing.
Nearby Schools
| Name | Type | Ofsted | Distance |
|---|---|---|---|
| George Spencer Academy | Academy Converter | Outstanding | 0.33 KM |
| Fairfield Spencer Academy | Academy Converter | Good | 0.65 KM |
| St John'S Cofe Primary School | Voluntary Controlled School | Good | 0.91 KM |
| William Lilley Infant And Nursery School | Community School | Good | 1.23 KM |
| Wadsworth Fields Primary School | Community School | Good | 1.37 KM |
Images
Nearby Streets
| Name | Average Price | Average Sqft | Distance |
|---|---|---|---|
| Dalton Close | £ 0 | 0 | 0.00 KM |
| The Mount | £ 170,000 | 0 | 0.00 KM |
| Wesley Place | £ 172,500 | 0 | 0.00 KM |
| Charles Avenue | £ 0 | 0 | 0.00 KM |
| Wadsworth Road | £ 375,000 | 0 | 0.00 KM |
Nearby Transport
| Name | NLC | TLC | Distance |
|---|---|---|---|
| Attenborough | 1624 | ATB | 4.40 KM |
| Long Eaton | 1829 | LGE | 4.87 KM |
| Beeston | 1625 | BEE | 6.57 KM |
| East Midlands Parkway | 1901 | EMD | 6.83 KM |
| Ilkeston | 7783 | ILN | 6.94 KM |
Nearby Listings
| Address | Price | Type | Score | Distance |
|---|---|---|---|---|
| Westerlands, Stapleford, NG9 | £ 185,000 | BUY | 6 / 10 | 0.00 KM |
| Toton Lane, Stapleford, Nottingham | £ 440,000 | BUY | Unknown | 0.12 KM |
| Clarehaven, Stapleford, Nottingham | £ 190,000 | BUY | 6 / 10 | 0.13 KM |
| Borlace Crescent, Stapleford, Nottingham | £ 295,000 | BUY | Unknown | 0.23 KM |
| Toton Lane, Stapleford, Nottingham | £ 265,000 | BUY | 7 / 10 | 0.23 KM |
Nearby Properties
| Address | Price | Distance |
|---|---|---|
| 14 Walker Grove | £ 269,950 | 0.03 KM |
| 6 Walker Grove | £ 340,000 | 0.03 KM |
| 1 Walker Grove | £ 242,000 | 0.03 KM |
| 9 Walker Grove | £ 193,000 | 0.03 KM |
| 3 Walker Grove | £ 270,000 | 0.03 KM |