Oakes Lane, Brockholes, Holmfirth, HD9
By WM. Sykes & Son
£ 625,000
Reviews
3 out of 5 stars
WM. Sykes & Son says ..
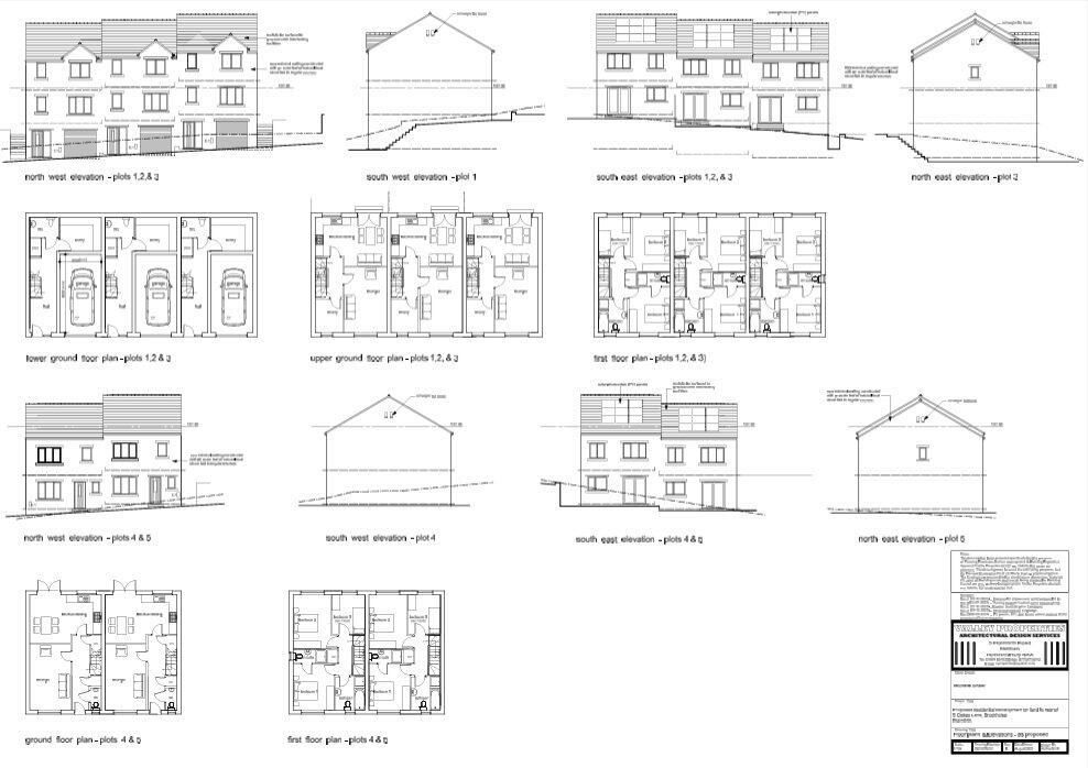
We are pleased to offer for sale this superb development opportunity located in a sought after village location. It comprises of an individual stone built detached house set within the corner of a plot of land which extends to approximately 0.71 acre. The existing 3 bedroom dwelling would benef...
Property Oracle says ..
This property is a 3-bedroom detached house located in Oakes Lane, Brockholes, Holmfirth. The location benefits from being close to Brockholes train station and well-regarded schools such as Brockholes Church of England Voluntary Controlled Junior and Infant School (Outstanding Ofsted rating) and Holmfirth High School (Good Ofsted rating). The house itself requires modernisation and updating. The property includes a garden and a garage. While the list price is below the average price for the area, the need for significant renovations should be considered when assessing value.
Therefore, we give this property 6 / 10. *Disclaimer: This is our option and does constitute a recommendation or financial advice. Do your own research. *
- Price
- 6
- Condition
- 4
- Location
- 8
- Land
- 6
- Bedrooms
- 3
- Bathrooms
- 0
- Sqft (est)
- 727.33
The heatmap indicates the level of crime in the area. The color of the heatmap indicates the crime severity and recency.
Metrics Year-on-Year
- Average area value
- 398,889.00 £Increased by 13.84 %
- Est sale value
- 104,735.52 £Decreased by 46.86 %
- Average area rental value
- 2,250.00 £/moIncreased by 153.09 %
- Est letting value
- 0.00 £/mo
- Est rental Yield
- 6.77 %Increased by 122.70 %
- Crime Rate
- 14.00 %Unchanged by 0.00 %
Agent Activity
WM. Sykes & Son created the listing.
Nearby Schools
| Name | Type | Ofsted | Distance |
|---|---|---|---|
| Brockholes Church Of England Voluntary Controlled Junior And Infant School | Voluntary Controlled School | Outstanding | 0.20 KM |
| Holmfirth High School | Community School | Good | 1.31 KM |
| New Mill Infant School | Academy Sponsor Led | 1.79 KM | |
| New Mill Junior School | Academy Converter | 2.03 KM | |
| Thurstonland Endowed Voluntary Controlled First School | Voluntary Controlled School | Outstanding | 2.10 KM |
Images
Nearby Streets
| Name | Average Price | Average Sqft | Distance |
|---|---|---|---|
| Lancaster Lane | £ 0 | 0 | 0.00 KM |
| Rock Terrace | £ 0 | 0 | 0.00 KM |
| Elm Avenue | £ 0 | 0 | 0.00 KM |
| Hall Ing Road | £ 0 | 0 | 0.00 KM |
| Woodlands Avenue | £ 0 | 0 | 0.00 KM |
Nearby Transport
| Name | NLC | TLC | Distance |
|---|---|---|---|
| Brockholes | 8429 | BHS | 0.33 KM |
| Honley | 8436 | HOY | 2.08 KM |
| Berry Brow | 8431 | BBW | 4.06 KM |
| Stocksmoor | 8451 | SSM | 5.01 KM |
| Lockwood | 8443 | LCK | 5.75 KM |
Nearby Listings
| Address | Price | Type | Score | Distance |
|---|---|---|---|---|
| Oakes Lane, Brockholes, Holmfirth, HD9 | £ 625,000 | BUY | 6 / 10 | 0.00 KM |
| Quarry Close, Brockholes, HD9 | £ 190,000 | BUY | 6 / 10 | 0.12 KM |
| New Mill Road, Brockholes, Holmfirth, West Yorkshire, HD9 | £ 375,000 | BUY | 7 / 10 | 0.15 KM |
| Brockholes Lane, Brockholes, Holmfirth, HD9 | £ 475,000 | BUY | Unknown | 0.19 KM |
| Brockholes Lane, Brockholes, Holmfirth, HD9 | £ 1,200,000 | BUY | 7 / 10 | 0.20 KM |
Nearby Properties
| Address | Price | Distance |
|---|---|---|
| 15 Oakes Lane | £ 79,000 | 0.07 KM |
| 40 Oakes Lane | £ 145,000 | 0.07 KM |
| 16 Oakes Lane | £ 153,000 | 0.07 KM |
| 1 Oakes Lane | £ 142,000 | 0.07 KM |
| 3 Oakes Lane | £ 185,000 | 0.07 KM |