Hortons says ..
This beautiful three-bedroom semi-detached home offers a perfect blend of comfort and convenience. Situated on a quiet cul-de-sac at a great guide price £215,000 to £220,000. Book now!
Property Oracle says ..
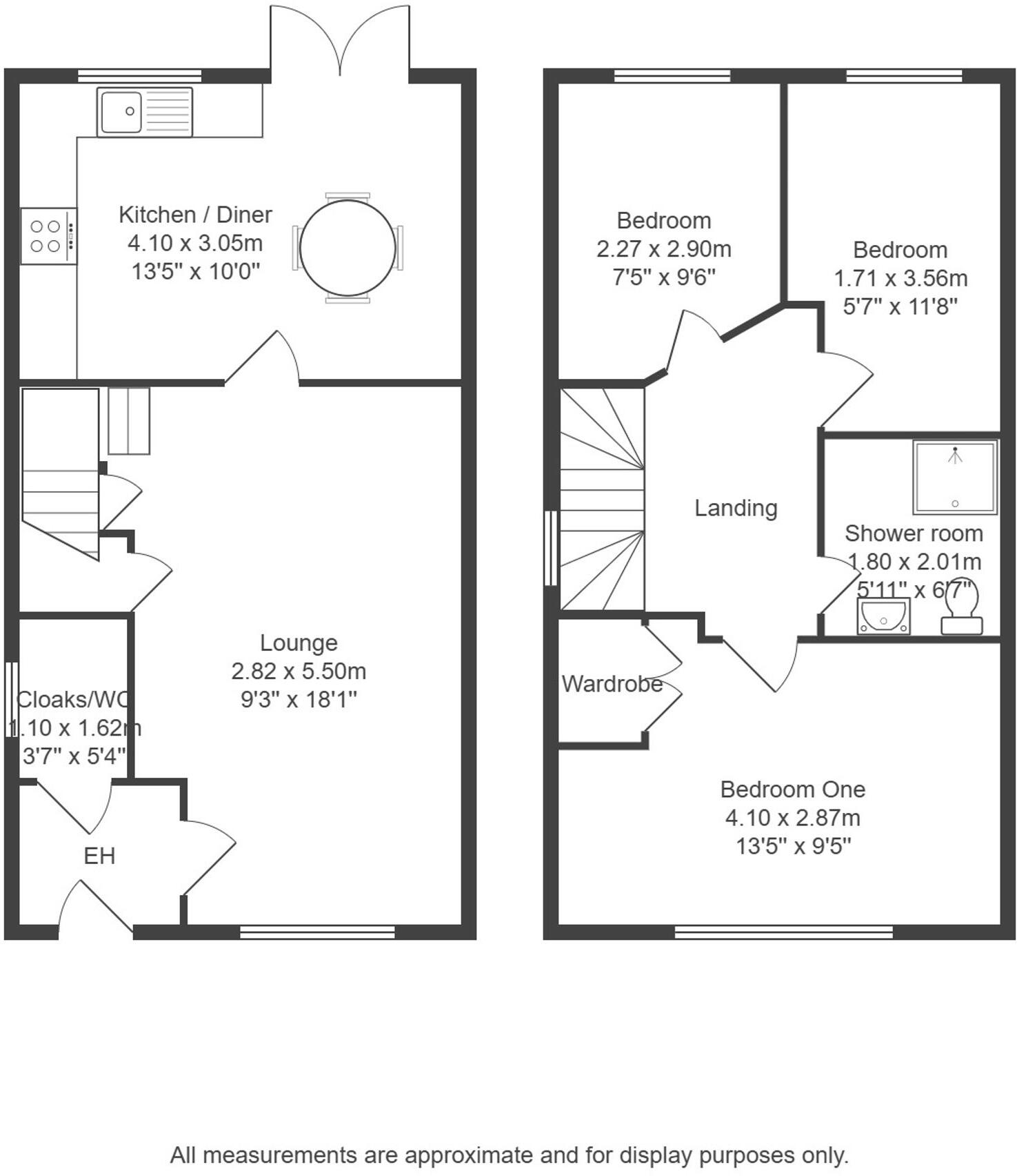
This is a modern semi-detached property located in a residential area of Ilkeston. The property benefits from a garden, off-street parking, and is within walking distance of local schools. The interior is well-presented and appears to be in good condition. The property is located 2.11 KM from Ilkeston train station. Overall, this property would make a suitable family home or investment.
Therefore, we give this property 7 / 10. *Disclaimer: This is our option and does constitute a recommendation or financial advice. Do your own research. *
- Price
- 7
- Condition
- 8
- Location
- 7
- Land
- 6
- Bedrooms
- 3
- Bathrooms
- 2
- Sqft (est)
- 622.61
The heatmap indicates the level of crime in the area. The color of the heatmap indicates the crime severity and recency.
Metrics Year-on-Year
- Average area value
- 136,167.00 £Decreased by 27.49 %
- Est sale value
- 103,353.26 £Decreased by 12.63 %
- Average area rental value
- 790.00 £/moDecreased by 4.13 %
- Est letting value
- 0.00 £/mo
- Est rental Yield
- 6.96 %Increased by 32.07 %
- Crime Rate
- 3.00 %Unchanged by 0.00 %
Agent Activity
Hortons created the listing.
Nearby Schools
| Name | Type | Ofsted | Distance |
|---|---|---|---|
| Field House Infant School | Academy Converter | 0.09 KM | |
| Hallam Fields Junior School | Community School | Good | 0.68 KM |
| Kensington Junior Academy | Academy Converter | 0.68 KM | |
| St Thomas Catholic Voluntary Academy | Academy Converter | 0.70 KM | |
| Chaucer Infant School | Academy Converter | 0.91 KM |
Images
Nearby Streets
| Name | Average Price | Average Sqft | Distance |
|---|---|---|---|
| Pedley Street | £ 425,000 | 0 | 0.00 KM |
| Church View | £ 260,000 | 0 | 0.00 KM |
| Chalons Way | £ 210,000 | 0 | 0.00 KM |
| Caroline Court | £ 230,000 | 0 | 0.00 KM |
| Queen's Drive | £ 220,000 | 0 | 0.00 KM |
Nearby Transport
| Name | NLC | TLC | Distance |
|---|---|---|---|
| Ilkeston | 7783 | ILN | 2.11 KM |
| Langley Mill | 1761 | LGM | 6.70 KM |
| Long Eaton | 1829 | LGE | 8.97 KM |
Nearby Listings
| Address | Price | Type | Score | Distance |
|---|---|---|---|---|
| Field Road, Ilkeston, DE7 | £ 215,000 | BUY | 7 / 10 | 0.00 KM |
| Field Road, Ilkeston | £ 210,000 | BUY | 6 / 10 | 0.01 KM |
| Field Road, ILKESTON | £ 240,000 | BUY | 7 / 10 | 0.01 KM |
| Field Road, Ilkeston, DE7 | £ 215,000 | BUY | 8 / 10 | 0.04 KM |
| Field Road, Ilkeston, DE7 | £ 215,000 | BUY | 8 / 10 | 0.05 KM |
Nearby Properties
| Address | Price | Distance |
|---|---|---|
| 69 Cavendish Road | £ 205,000 | 0.16 KM |
| 39 Cavendish Road | £ 90,000 | 0.16 KM |
| 6 Field Road | £ 228,000 | 0.23 KM |
| 14 Field Road | £ 400,000 | 0.23 KM |
| 1 Field Road | £ 157,000 | 0.23 KM |