Pearson Street, Bury
KE

Pearson Street, Bury

By Keenans Estate Agents

£ 210,000

Reviews

3 out of 5 stars

Keenans Estate Agents says ..

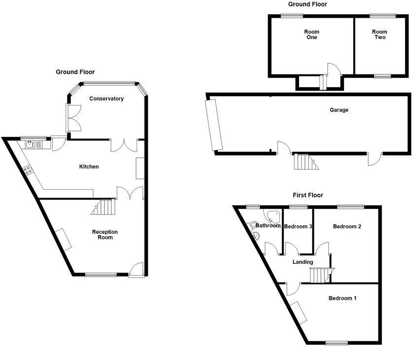
A SPACIOUS THREE BEDROOM END TERRACE WITH A DETACHED TWO STOREY GARAGE/WORKSHOP Situated on Pearson Street in the charming town of Bury, this deceptively spacious end-terraced house presents an excellent opportunity for those seeking a home with potential. Boasting three well-proportione...

Property Oracle says ..

Therefore, we give this property 6 / 10. *Disclaimer: This is our option and does constitute a recommendation or financial advice. Do your own research. *

Price
8
Condition
4
Location
7
Land
5
Bedrooms
3
Bathrooms
1
Sqft (est)
1,442.00

The heatmap indicates the level of crime in the area. The color of the heatmap indicates the crime severity and recency.

Metrics Year-on-Year

Average area value
242,492.00 £
Increased by 37.58 %
from 176,256.00 £
Est sale value
431,158.00 £
Increased by 59.04 %
from 271,096.00 £
Average area rental value
903.00 £/mo
Increased by 4.51 %
from 864.00 £/mo
Est letting value
1,442.00 £/mo
from 0.00 £/mo
Est rental Yield
4.47 %
Decreased by 23.98 %
from 5.88 %
Crime Rate
0.00 %
from 0.00 %

Agent Activity

  • Keenans Estate Agents created the listing.

Nearby Schools

NameTypeOfstedDistance
St Paul'S Church Of England Primary School, BuryVoluntary Aided SchoolRequires improvement0.26 KM
Cambian Chesham House SchoolOther Independent Special SchoolGood0.45 KM
St Joseph And St Bede Rc Primary SchoolVoluntary Aided SchoolGood0.54 KM
Hoyle Nursery SchoolLocal Authority Nursery SchoolOutstanding0.54 KM
East Ward Community Primary SchoolAcademy Converter0.56 KM

Images

DSC06808.jpg DSC06811.jpg DSC06796.jpg DSC06795.jpg DSC06804.jpg DSC06802.jpg DJI_0377.jpg DSC06789.jpg DJI_0368.jpg DSC06782.jpg DSC06787.jpg DSC06800.jpg DSC06777.jpg DSC06784.jpg DSC06792.jpg DSC06805.jpg DSC06799.jpg DSC06803.jpg DSC06786.jpg DSC06785.jpg DSC06780.jpg DSC06779.jpg DSC06769.jpg DJI_0369.jpg DJI_0370.jpg DJI_0371.jpg DJI_0372.jpg DJI_0373.jpg DJI_0374.jpg DJI_0378.jpg DSC06765.jpg DSC06767.jpg DSC06771.jpg DSC06772.jpg DSC06773.jpg DSC06774.jpg DSC06775.jpg DSC06813.jpg DSC06814.jpg DJI_0376.jpg DSC06766.jpg

Nearby Streets

NameAverage PriceAverage SqftDistance
Gladstone Street £ 000.00 KM
Back Lucas Street £ 000.00 KM
Hawk Close £ 000.00 KM
Back Cedar Street £ 000.00 KM
Rowan Drive £ 175,00000.00 KM

Nearby Transport

NameNLCTLCDistance
Clifton (Manchester)2795CLI9.32 KM

Nearby Listings

AddressPriceTypeScoreDistance
Pearson Street, Bury £ 210,000BUY6 / 100.00 KM
Pearson Street, Bury, BL9 £ 160,000BUY5 / 100.01 KM
Pearson Street, Bury, BL9 | 2-Bedroom Terraced with Dining Room, Spacious Bathroom & Convenient Location £ 150,000BUY7 / 100.03 KM
Brighton Street, Bury £ 170,000BUY7 / 100.07 KM
Bell Lane, Bury, Greater Manchester, BL9 6DG £ 170,000BUY5 / 100.12 KM

Nearby Properties

AddressPriceDistance
24 Pearson Street £ 112,0000.03 KM
13 Pearson Street £ 60,5000.03 KM
12 Pearson Street £ 75,0000.03 KM
20 Pearson Street £ 100,0000.03 KM
15 Pearson Street £ 69,5000.03 KM