ER
South Furzeham Road, Brixham
By Eric Lloyd & Co
£ 495,000
Eric Lloyd & Co says ..
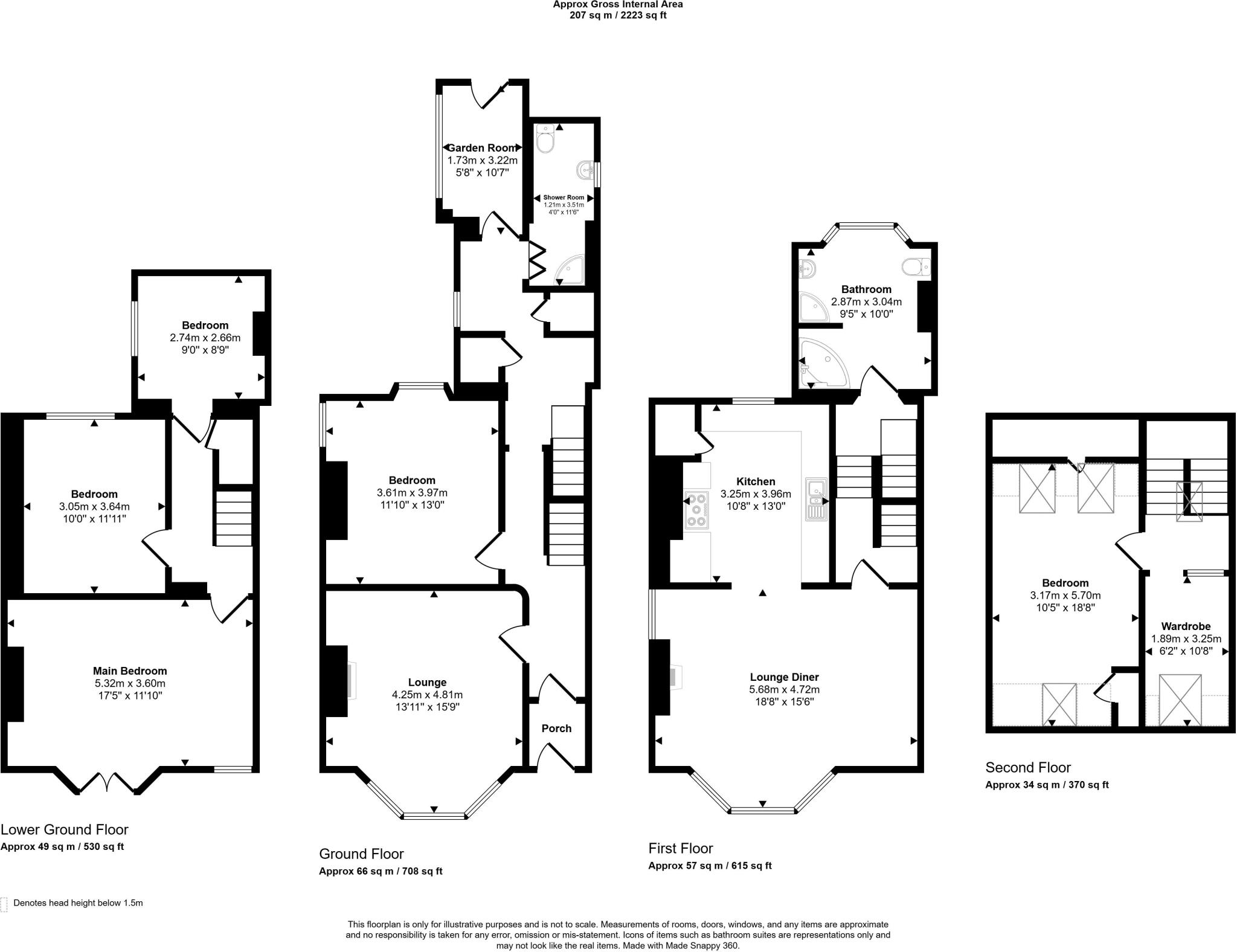
Welcome to this charming FIVE BEDROOM SEMI-DETACHED FAMILY HOME, nestled in the sought-after South Furzeham Road within the picturesque town of Brixham. Owned by the same family for over 50 years, this property exudes love and care throughout. Arranged across four floors and spanning roughly 200 ...
- Bedrooms
- 5
- Bathrooms
- 2
The heatmap indicates the level of crime in the area. The color of the heatmap indicates the crime severity and recency.
Metrics Year-on-Year
- Average area value
- 350,241.00 £Increased by 0.25 %
- Average area rental value
- 1,100.00 £/moIncreased by 8.70 %
- Est rental Yield
- 3.77 %Increased by 8.33 %
- Crime Rate
- 11.00 %Unchanged by 0.00 %
from 349,375.00 £
from 1,012.00 £/mo
from 3.48 %
from 11.00 %
Agent Activity
Eric Lloyd & Co created the listing.
Nearby Schools
| Name | Type | Ofsted | Distance |
|---|---|---|---|
| Furzeham Primary School | Community School | Good | 0.32 KM |
| Furzeham Children'S Centre | Children's Centre Linked Site | 0.69 KM | |
| Eden Park Primary & Nursery School | Academy Converter | Good | 0.95 KM |
| Brixham Church Of England Primary School | Academy Converter | 1.09 KM | |
| Brixham College | Academy Converter | Good | 1.15 KM |
Images
Nearby Streets
| Name | Average Price | Average Sqft | Distance |
|---|---|---|---|
| Market Street | £ 0 | 0 | 0.00 KM |
| Bank Lane | £ 0 | 0 | 0.00 KM |
| Kingswater Court | £ 0 | 0 | 0.00 KM |
| Cobden Steps | £ 0 | 0 | 0.00 KM |
| Cavern Road | £ 270,000 | 0 | 0.00 KM |
Nearby Transport
| Name | NLC | TLC | Distance |
|---|---|---|---|
| Paignton | 3427 | PGN | 6.75 KM |
| Torquay | 3434 | TQY | 7.82 KM |
| Torre | 3432 | TRR | 9.19 KM |
Nearby Listings
| Address | Price | Type | Score | Distance |
|---|---|---|---|---|
| South Furzeham Road, Brixham | £ 495,000 | BUY | Unknown | 0.00 KM |
| South Furzeham Road, Brixham | £ 299,950 | BUY | 8 / 10 | 0.02 KM |
| HIGHER MANOR ROAD, BRIXHAM | £ 195,000 | BUY | 7 / 10 | 0.08 KM |
| Higher Manor Road, Brixham | £ 195,000 | BUY | 7 / 10 | 0.08 KM |
| South Furzeham Road, Furzeham, Brixham | £ 625,000 | BUY | 7 / 10 | 0.08 KM |
Nearby Properties
| Address | Price | Distance |
|---|---|---|
| 47 South Furzeham Road | £ 57,000 | 0.03 KM |
| 65 South Furzeham Road | £ 152,500 | 0.03 KM |
| 87 South Furzeham Road | £ 440,000 | 0.03 KM |
| Sundown | £ 365,000 | 0.03 KM |
| 55 South Furzeham Road | £ 44,000 | 0.03 KM |